
家的定义因人而生,因人而暖,装修无需复杂装饰,简单实用才是最好的装修。本期分享一套120㎡新房装修,整体采用现代欧式自然风,干净利落的硬装设计,没有繁杂的造型和装饰,搭配温柔低饱和度色彩,筑起温馨舒适居家氛围。
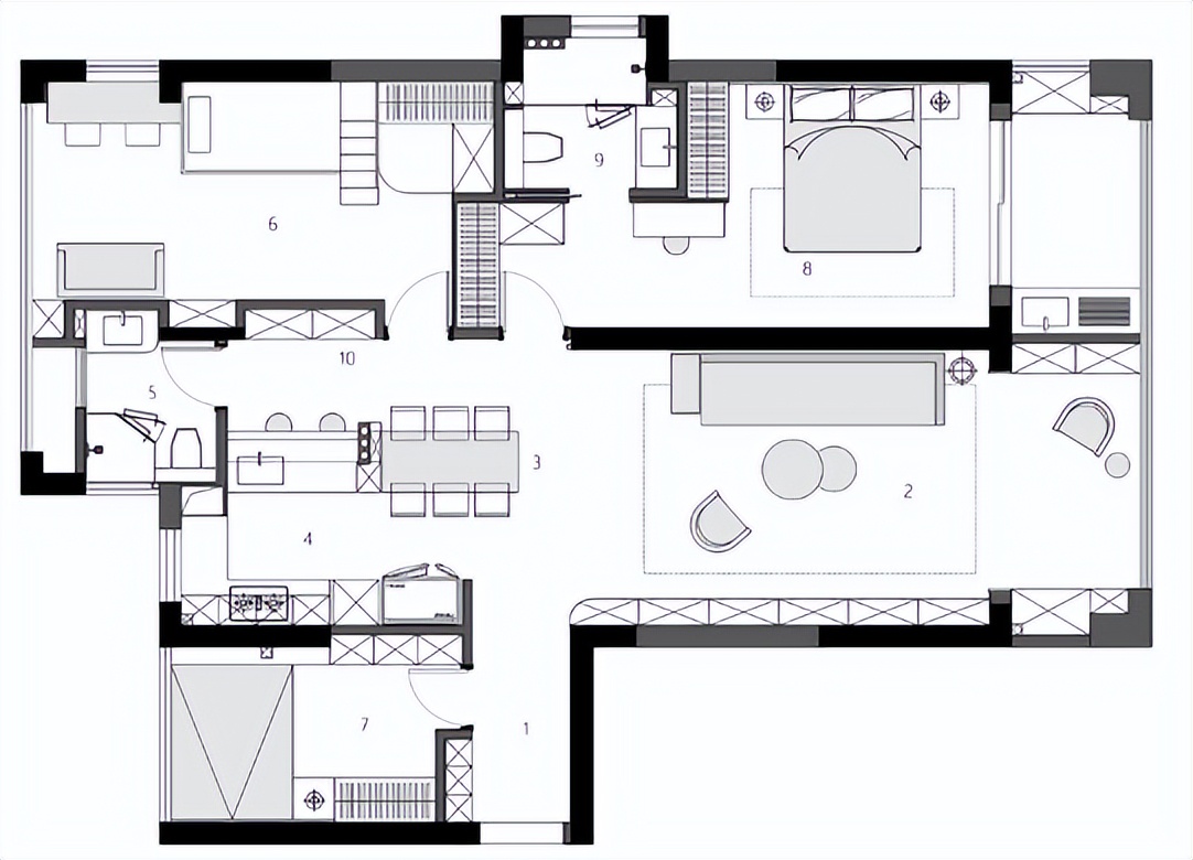
装修布置图

120㎡三居室格局,设计将空间打破,重组,通过墙体的阻隔,地板材质的区分,作为空间区隔的界限。开敞且自由,消除了心理上空间的概念,从而得到完整一体的视觉表达。
玄关

玄关设计很简洁,人字拼木地板设计,活跃空间同时营造出温馨回家序幕。鞋柜采用嵌入式设计,减少视觉上的阻挡,动线也更加流畅。
客厅

客厅简洁舒适通透,设计上避免了太过复杂的造型设计。“悬浮式”吊顶,搭配隐藏灯带和无主灯设计,拉伸空间层高,改善视觉空间体验。

阳台与客厅打通,加深空间深度,更显宽敞。局部加入弧形元素设计,降低直角锐利感,让空间更加柔和。左侧做了壁龛设计,摆放一些装饰品和书籍,右侧到顶储物柜设计,提升收纳。
餐厅

餐厅简洁实用,餐桌采用岛台+大理石桌面的形式,搭配木制椅子,简洁自然中带有大气质感。开放式的空间结构,提高了采光和通风效果。
厨房


开放式的厨房,小小的U型布局,提高了厨房空间利用率和储物水平。原木储物柜设计,搭配白色石英石台面,自然大气。电器柜设计将大件厨房电器收拢其中,空间更整洁有序。
过道

过道并无太复杂设计,木地板由玄关一直铺叙公共空间及卧室,取消了过门石,整体效果更统一。
主卧

主卧舒适为主,复古绿与焦糖橙的碰撞,带来有趣新奇的体验。向内向外的双向空间,由风格相同色彩软装,达到整体性的感知。床头采用不对称设计,视觉效果更活泼。采用多种灯具结合,给予更灵活的照明需求。局部弧形处理,多了几分柔和感。

以衣柜作为轴线筑起隔断,提升主卧收纳,同时围塑出主卫空间,避免卫生间门对着床头的尴尬。一门到顶无明装门把手设计,干净利落又显大方。

简约复古梳妆台,轻巧实用又为空间增添了几分沉稳气息。镂空的外观设计降低了体量,占用面积少,视觉显通透。

转角就是主卫,依旧是简洁设计,整体以白色为主,提亮空间。盥洗区做了壁龛设计,让紧凑的洗手台空间得以释放,各种洗漱用品可以摆放在壁龛内。

地面和左侧墙面选择水磨石瓷砖,搭配白色条形砖,效果别具一格。壁挂式马桶设计,墙排上方恰好可以充当置物平台,无需额外安装置物架,空间更规整。淋浴采用黑框玻璃门隔断,通透的玻璃材质,让空间不那么紧凑。淋浴依旧是壁龛收纳,整体空间更规整。
儿童房

儿童房简约现代风,白色与原木色的搭配,局部明黄色的线条修饰,让空间更有活力。上下床设计,日常更方便。床头设计了开放式展示架,可以摆放小朋友喜欢的玩偶。