项目地址:都景公寓
作品风格:现代简约
户型结构:两室一厅
建筑面积:150m2
全案设计:杭州易尚空间设计
摩尔国际设计
软装实现:杭州易尚空间设计
摩尔意尚整体软装
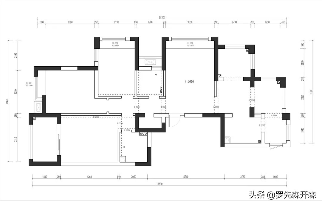
|原始结构图|

|平面布局图|

| 客 厅 |
以高级灰为基调, 爱马仕橙牵引着整个空间的视觉动线。一个是冬日旷野的颜色,氤氲冷冽,一个是热烈似火的颜色,热情奔放。小面积的爱马仕单品,如抱枕、单椅或装饰画,打破了空间原本质朴的氛围,还增添了一丝明快活泼的调性。定制茶几采用了拼色设计,内里中空设计了置物格,茶几可以向两边拉开,储物后再闭合。电视背景墙选取了大面积的后退色灰白色,空间显得更为敞亮。






| 餐 厅 | 餐桌的白色基底、灰色纹理的大理石台面与客厅的背景墙相互呼应,干净明快,桌脚不同于传统垂直型桌角,略微倾斜聚合成连结的Y字型,美观性与稳固性兼备。


| 厨 房 |
厨房延续了客厅与餐厅的灰白底色,设计了木色的门套和扁桃色的墙纸,使人在纯粹自然中感受到一种因简约而极致的美好。

| 主 卧 |
主卧的衣柜和上层的储藏柜化繁为简,设计了无把手的按压式隐形柜门,线条利落简洁。深浅交错纵横的拼木地板,冬暖夏凉,在视觉效果上能有效扩大卧室的空间。花灰蓝与卡其色拼色窗帘点缀一丝铜色的镶边,清爽怡人,为卧室带来清凉感。


| 儿童房 | 儿童房配色更为跳脱,绿色系、粉色系与橙黄色系毫无违和感,反而平添了俏皮的意味。格纹拼色窗帘也运用了绿色系作为点缀色,与床品彼此烘托。

