"轻复式"户型成为时下的热门选择,顾名思义,不是纯粹的复式,而是局部复式。这样的户型非常适合三胎或者三代家庭,因为家庭成员如果居多,每个人的生活习惯肯定会不同,那么局部二层的空间可以保证隐私性,彼此不受干扰。所以非常人性化,并且面积可以保证在一百多平米的范围。让我们详细来感受一下这样的户型。
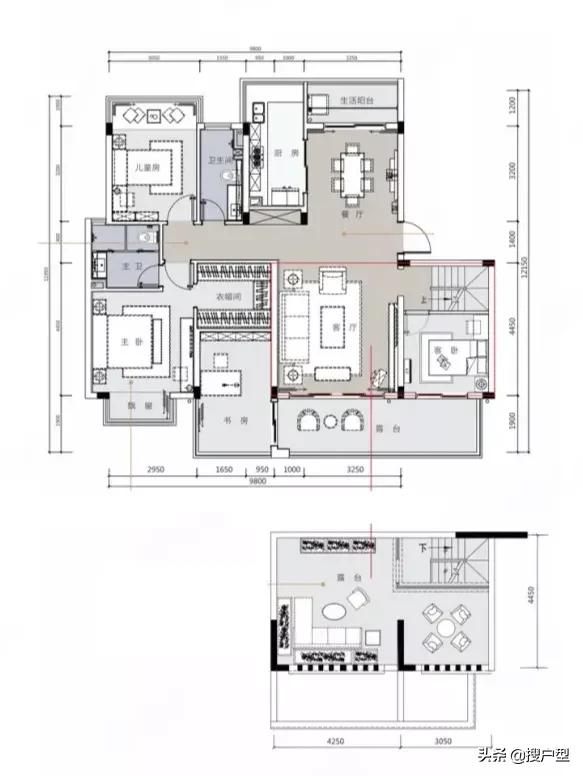
▼图一:108平米
入户之后,有一个半敞开的玄关。客餐厅南北通透。入户附近南向有一个卧室。休息区还有两个卧室,豪横的搭配了两个明窗卫生间。
通过楼梯可以到达二层,是一个私密的空间,可以当做私人会客厅或者独立的书房,氛围非常静谧。

108平米
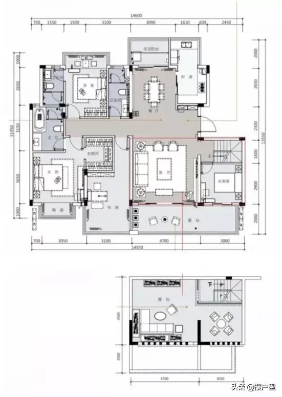
▼图二:127平米
户型整体方方正正,一共搭配了四个房间,其中南向有三个房间,并且还有南北通透的活动厅。
从楼梯到达二层以后,同样是一个非常私密的房间,开间之大可以满足各种功能的需求,即使是在这边打乒乓球也不会干扰到邻居。

127平米
▼图三:143平米
具有更加阔绰的空间,内部搭配了四个卧室,三个明窗卫生间。南北双主卧的设计方式搭配在143平米的面积区间之内,可谓凤毛麟角。

143平米
总体来讲,您觉得这样的户型怎么样呢?