农村建房不仅要美观大方,而且要经济实用,很多农村房子设计的很豪华,但实际使用起来却很多不方便,面积太空旷,卫生难打理。今天小编给大家推荐10套经济实用的二层农村房屋设计图,需要建房的朋友可以看看。
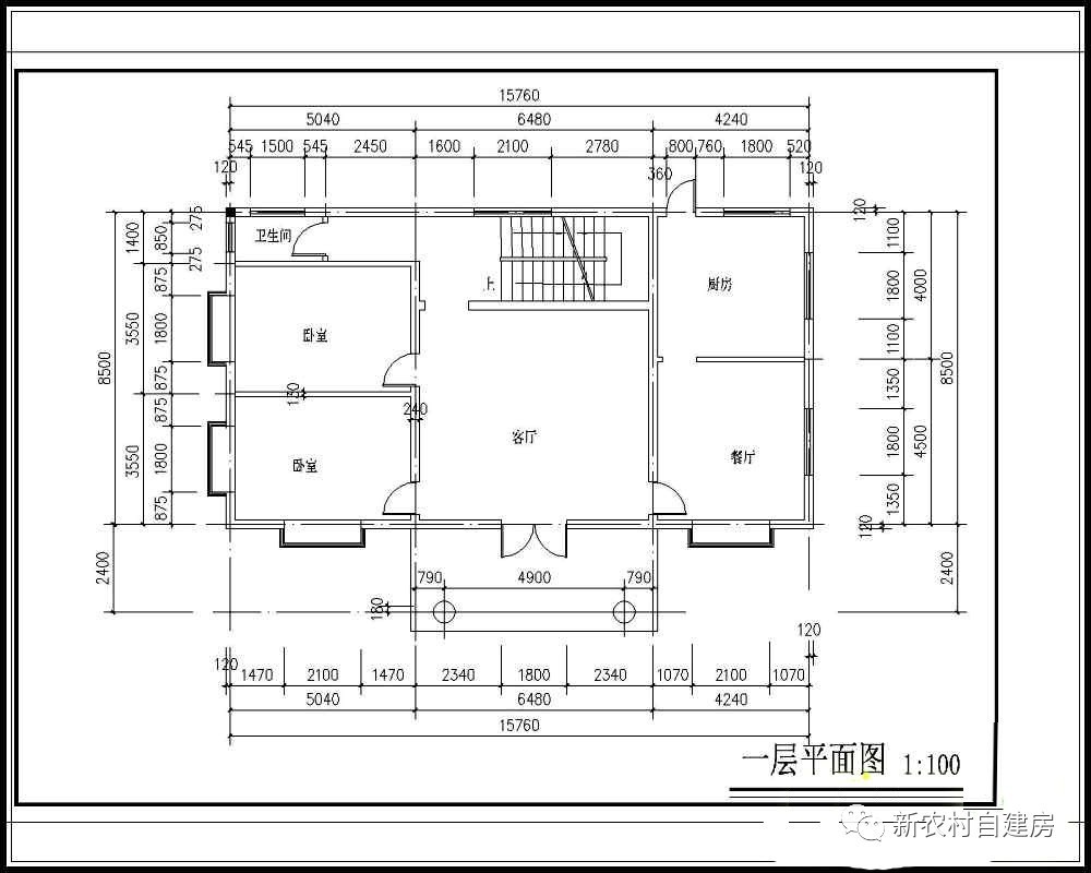
户型一
建筑层数:二层;
建筑占地面积为:10.7m*7.9m=90平方米;
预算造价:13万;
建筑高度:10.5m(含屋顶);坡屋顶;
建筑结构:砖混结构;


▲效果图


▲平面图
设计功能:
一层:门廊、客厅、卧室两间、卫生间、餐厅;
二层:阳台、客厅、儿童房/书房、卧室两间、卫生间、棋牌室。
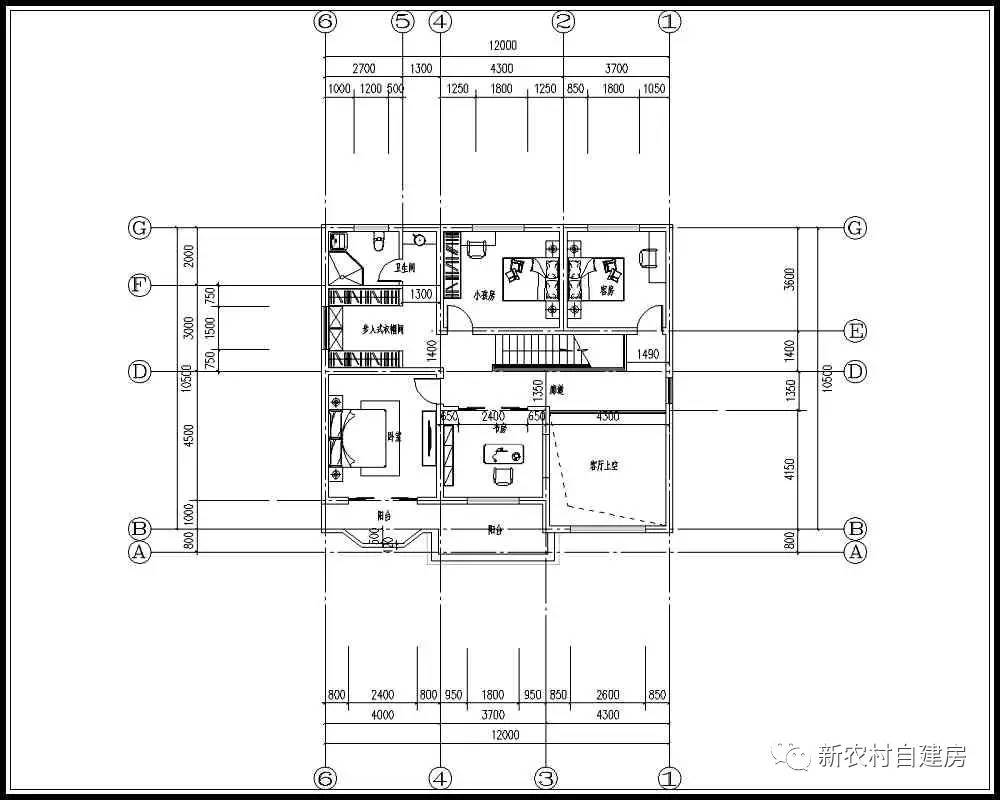
户型二
建筑层数:二层;
占地尺寸:面宽12米x进深10.5米;
占地面积:128.7平方;
预算造价:18万;
建筑总面积:251.7平米(不含入户平台、阳台、露台);
建筑总层高:总高9.38米,屋檐口高6.7米;
建筑结构:砖混结构;


▲效果图


▲平面图
设计功能:
一层:堂屋、老人房、复式客厅、卫生间、厨房、餐厅、麻将室;
二层:主卧室、衣帽间、儿童房、客房、卫生间、书房。
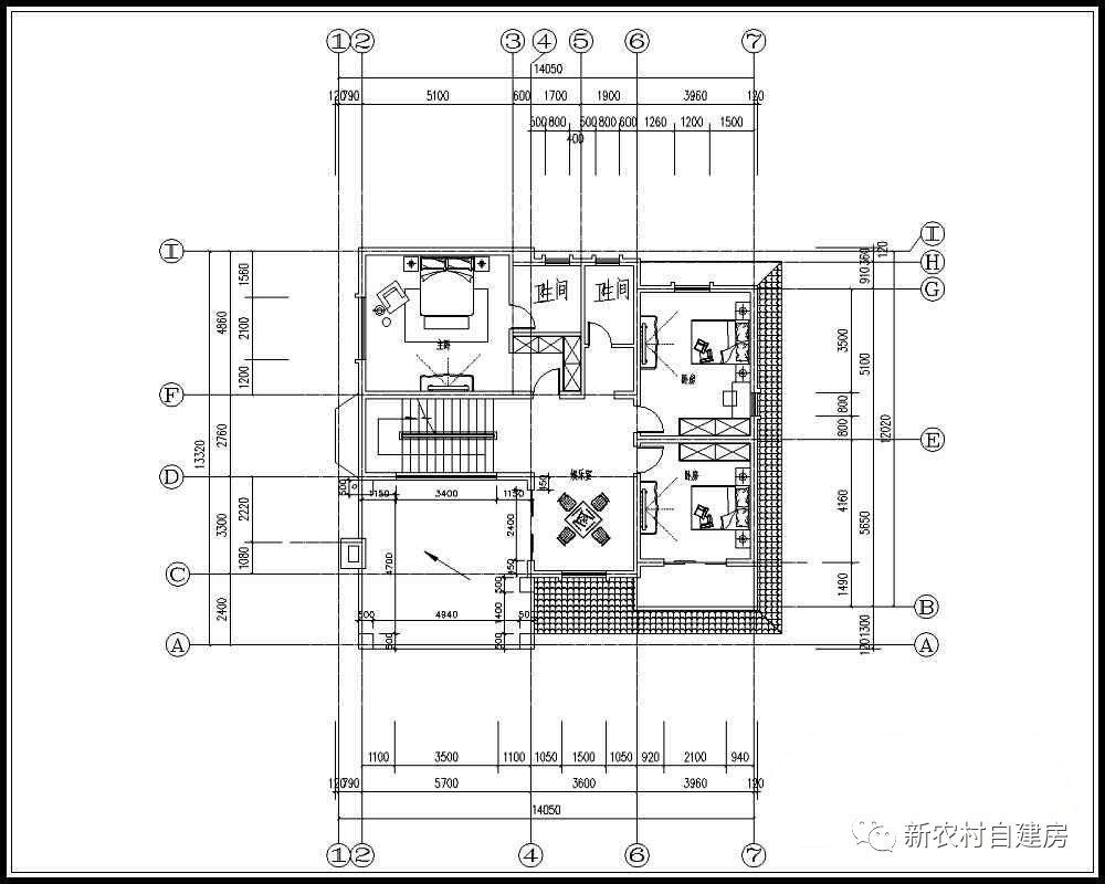
户型三
建筑占地面积:10.8米×9.3米;
建筑层数:二层半;
屋顶形式:坡屋顶;
总高度:7.94米(含屋顶);
预算造价:16万;

▲效果图


▲平面图
设计功能:
一层:大堂、厨房、餐厅、储物室、卫生间、卧室;
二层:起居室、卧室、卫生间、储物室、主卧室(附阳台和书房)。
户型四
占地尺寸:面宽14.5米x进深12.2米;
占地面积:165.1平方;
建筑总面积:288,.9平米;
建筑总层高:总高9.07米,屋檐口高7.17米;
建筑结构:砖混结构;
预算造价:20万;

▲效果图


▲平面图
设计功能:
一层:客厅、门厅、卧室、餐厅、厨房、卫生间;
二层:主卧室(附卫生间)、客厅、2卧室、卫生间。
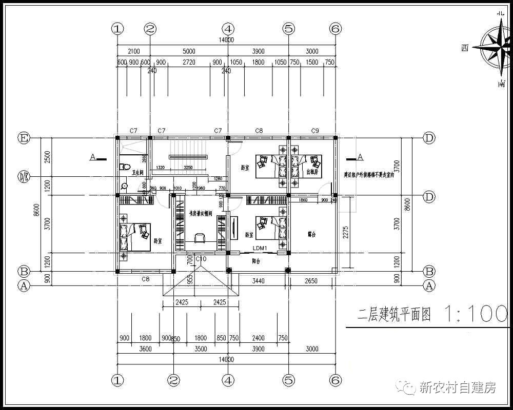
户型五
占地尺寸:面宽14米x进深8.6米
占地面积:121.9平方
建筑总面积:224.2平米(不含入户平台、阳台、露台)
建筑总层高:总高8.4米,屋檐口高6.4米
建筑结构:砖混结构;
预算造价:18万;


▲效果图


▲平面图
设计功能:
一层:玄关、客厅、2卧室、卫生间、厨房、餐厅、杂屋间;
二层:3卧室、卫生间、书房、露台、出租房。
户型六
开间: 15米
进深: 8米
占地面积: 133平方米
建筑面积: 267平方米
层数: 2层
结构形式: 砖混结构
主体造价: 18万

▲效果图


▲平面图
设计功能:
一 层:2个卧室、客厅、卫生间、餐厅、厨房、楼梯
二 层:卧室2间、卫生间1间、1个大露台。
户型七
开间:13.14米;
进深:12.84米;
占地面积:155平方米;
建筑面积:239平方米;
建筑层数:二层;
预算造价:16万;

▲效果图


▲平面图
设计功能:
一层:客厅、3卧室、厨房、餐厅、杂物间、卫生间;
二层:卧室(附露台)、卧室、储藏间、卫生间、露台。
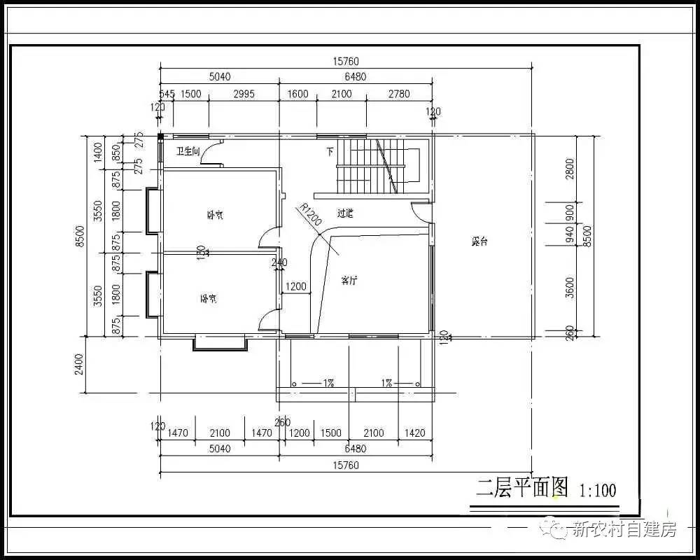
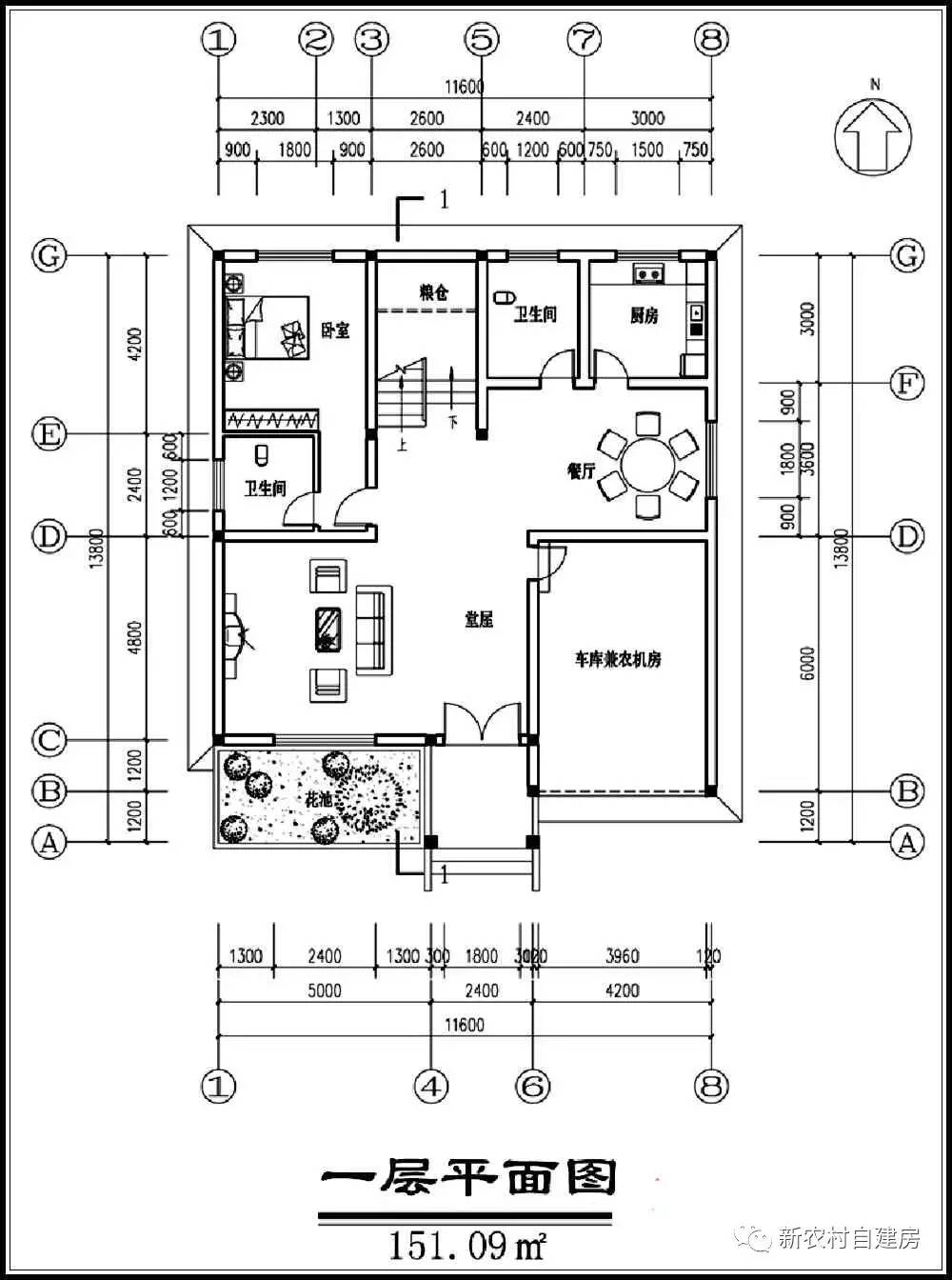
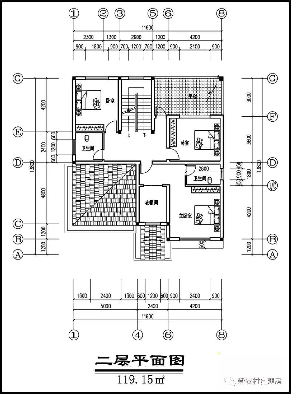
户型八
建筑层数:二层;
占地尺寸:面宽11.6米x进深13.8米;
占地面积:151.09平方;
造价预算:19万;
建筑总面积:270.24平米(不含入户平台、阳台、露台)
建筑总层高:一层3.6米,二层3.2米高;
建筑结构:砖混结构;

▲效果图


▲平面图
设计功能:
一层:堂屋、车库、卧室(附卫生间)、厨房、餐厅、卫生间、粮仓;
二层:主卧室(附衣帽间、卫生间)、2卧室、卫生间。
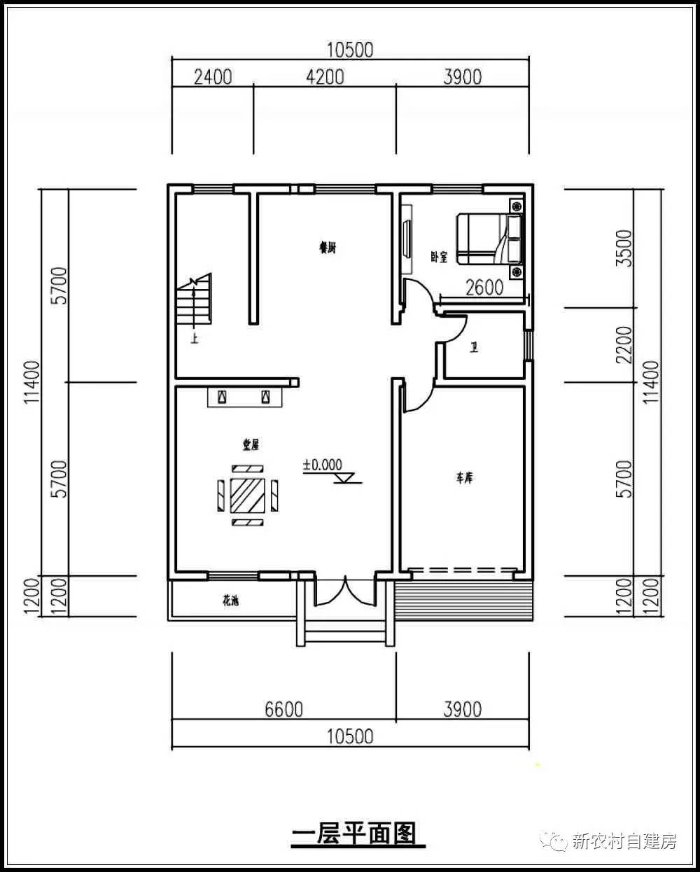
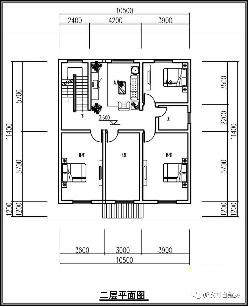
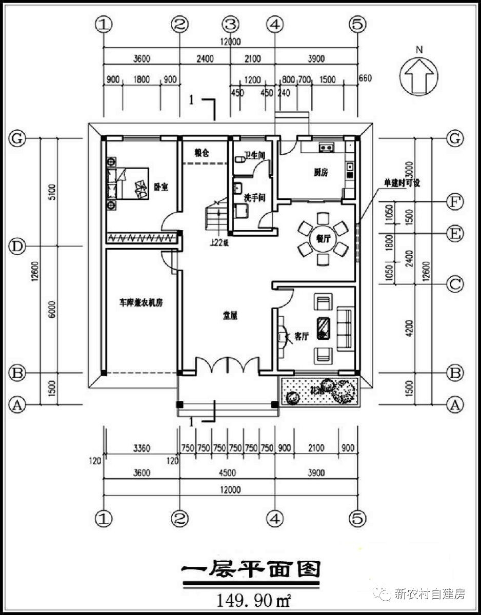
户型九
建筑占地面积:10.5m*11.4m;
建筑层数:二层;
建筑高度:10.4米(含屋顶)坡屋顶;
建筑结构:砖混结构;
造价预算:19万;

▲效果图


▲平面图
设计功能:
一层:堂屋、车库、卫生间、餐厨、卧室;
二层:卧室、书房、卧室、起居室、卧室、卫生间;
阁楼层:露台、阁楼;
户型十
建筑层数:二层;
占地尺寸:面宽12米x进深12.6米;
占地面积:150平方;
造价预算:20万;
建筑总面积/层高:289.63平米;
建筑高度:一层3.6米,二层3.2米高;
建筑结构:砖混结构;

▲效果图


▲平面图
设计功能:
一层:堂屋、卧室、卫生间、客厅、餐厅、粮仓、车库、厨房;
二层:主卧室(卫生间)、3卧室、卫生间、露台。