一直觉得日式和北欧,以及白墙配原木的效果,只要做到简洁大方,那么就有种温馨治愈的氛围,特别适合居家过日子。直到后来看了本案位于上海,建面175㎡的复式住宅,才发现根本不需要讲究什么风格,因为简装就是最好的治愈效果,不需要你堆砌造型,也不需要刻意搭配,哪怕背景墙刮白,只要采光好,经由漫反射,照样能做到全屋窗明几净,且羡煞旁人,不信我们一起来看看她家这套,以实用主义至上为理念的装修效果吧。
平面图

一楼原始结构图

一楼平面布置图
一楼为四室两厅、南北通透的格局。改动的话不多,但还是有的,比如位于客厅的楼梯实在太碍事,就挪到了老人房的左侧;其次,儿童房为了提高利用率,向左挤出了一个衣帽间;最后便是客卫,为了满足三代同堂的使用需求提高效率,就布局为三分离的结构,且坐拥洗漱、如厕、沐浴、更衣(室),和清洗贴身衣物的壁挂式洗衣机,共五大功能区。

二楼原始结构图

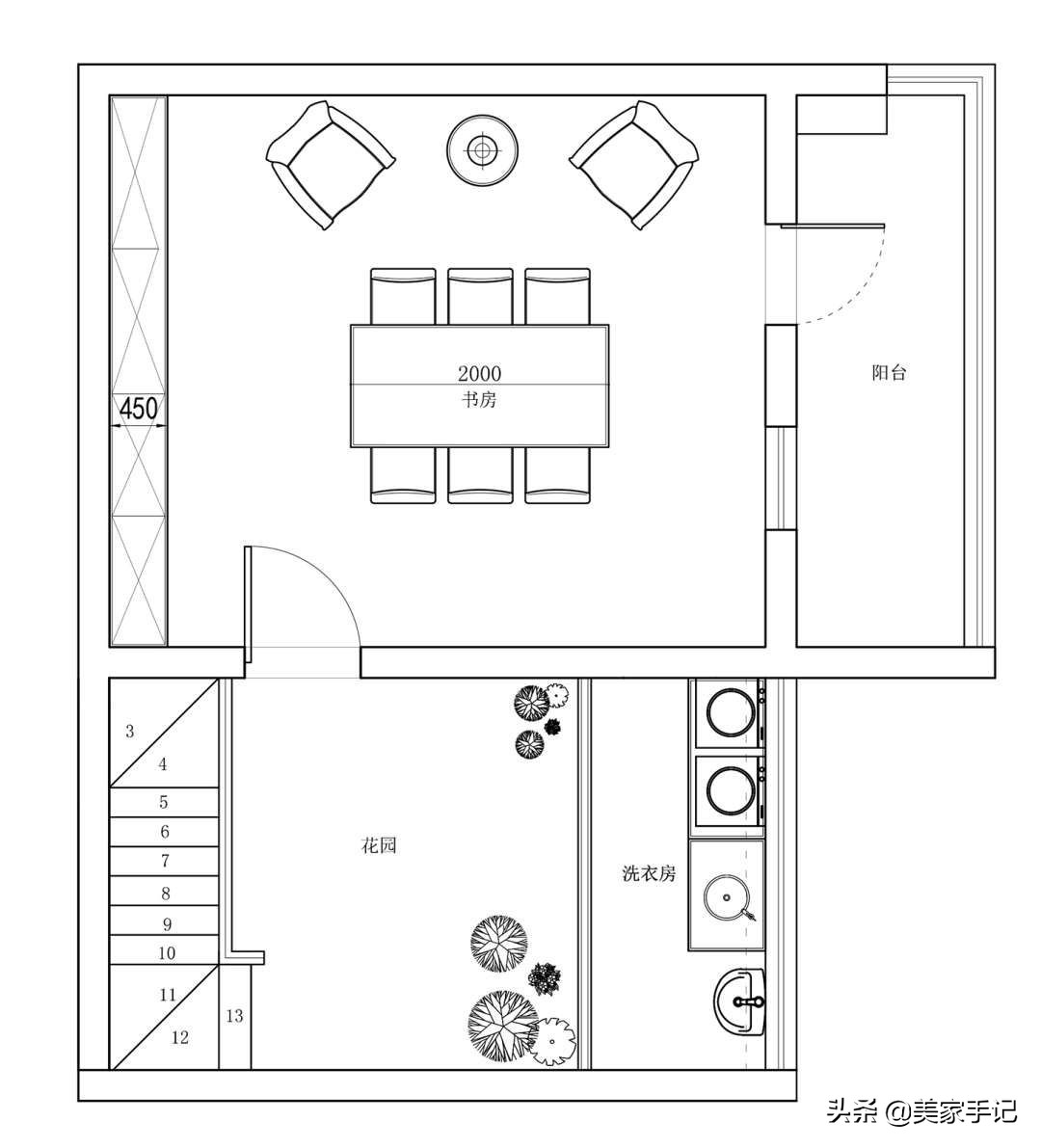
二楼平面布置图
二楼作为书房主要用于休闲办公,另外附带了一个露台作为花园和洗衣房。
入户

屋主家没有独立玄关,就在进门右侧,也就是图左,定制了一款兼具换鞋凳和挂钩区功能的多功能白色鞋柜。储物空间虽然不大,但收纳一些常用的鞋子,以及进出门需要用到的杂物还是没有问题的。

鞋柜侧面,还做了一排开放式的储物区,无论收纳饰品摆件用于展示,还是放置孩子的玩具以及生活中的杂物都可以。
客厅

客厅完完全全的简装效果,虽然不豪华,但还是一进门就把我迷住,无它,优渥的采光经由阳台洒向室内,再通过木地板以及白色背景墙的漫反射,使得整个家充斥着一股温馨治愈的氛围,令人感觉到特别的放松与解压。

电视墙的话,屋主直接舍弃,改定制整墙的柜子,一方面,白色的免拉手柜门并不会显得压抑,反而美观大方,另一方面可以为客厅增添更多的收纳机能,毕竟家有小孩,屋主希望客厅可以作为其活动的地方,那么书籍读物以及玩具这些东西都是必不可少的,而只有做好收纳,才能保持干净整洁的居家效果。

柜子内部结构示意图

看到这,有些人纳闷,影音方面的需求该如何解决?答案是顶部的投影仪幕布,需要时,降下来,全家人聚坐在一起观影,家的感情能得到无限升温,不需要时收起,看着也干净利落。

补充一下沙发墙,如前所述,直接刷白,并在光线的映衬下,柔和温馨,看着非常舒适,搭配原木骨架的布艺沙发和座椅,就更是如此了。其它是隔板上的照片,用来保存记录过去的美好瞬间,加上右侧的圣诞树,以及搁板上的儿童绘本和读物,简单装修的效果也能温情满满,羡煞旁人。
餐厅

餐厅进门左转就到了,为了预留充足过道,屋主将左侧的餐柜,挪到了对面窗户处的两侧,这样实用且空间不显压抑。功能方面,右侧柜子嵌入了蒸烤机之类的家电,结合紧挨餐桌椅设置的岛台,整体勾连,既可以作为西厨区烹制一些简单糕点,也能作为水吧台烧水泡茶,或者是研磨咖啡等等。

家具方面,这里选用了结构轻巧的原木餐桌椅,显得空间灵活大方的同时,配上白墙也属于经典的搭配。至于其它主要右侧的餐厅墙,安装了壁挂式的电视机,除了吃饭的时候用来煲剧,也能弥补客厅投影仪,在光线环境以及收看实时节目上的缺陷。
厨房

厨房并不是开放式结构,两侧安装了细黑框的玻璃推拉门,隔绝油烟不外溢,这点从餐厅图可知。至于装修本身,以白色免拉手的吊柜和木色地柜为主,搭配白色的墙砖和灰色的地砖,效果干净整洁,而且实用性一点也不差,比如墙砖上的挂架以及地柜右侧的夹缝柜等等,都是如此。需要补充的是,厨房门洞左侧做了一个兼具书架作用的半高隔断,平时下班回家,父母和老人陪伴孩子,在这边学习阅读啥的,都不是问题。
主卧

一楼一共四间房,其中主卧没有多余的装饰,基本延续之前白墙原木的简装风格,不过在光线的映衬下,氛围温馨柔和,置身其中令人极度解压。
儿童房


儿童房比较有意思的地方就在于,并排紧挨着摆放了两张尺寸不大的单人床,对于二胎家庭来说,让两个小孩在小的时候住一起,能够培养彼此之间的感情。至于其它主要是右侧的学习区和部分衣柜。

细节。学习区目前一方小巧的书桌椅就已经足够。其它是右侧的收纳小推车,自带万向轮,移动灵活方便,无论放卧室还是厨卫都可以提高空间的利用率。
客卫

如前所述,为了满足三代同堂的使用需求,并提高效率,设置了三分离的结构,即右侧是设计为双台盆结构的洗漱台,对面是带有更衣室的沐浴区,而左侧是如厕区,加上同方位隐约可见安装在干区背景墙上的壁挂式洗衣机,功能真的超级强大。

从平面图来看,客卫的沐浴区不仅带有淋浴花洒,还设置了浴缸,目前这个角度是站在淋浴的位置往更衣室看,其中左侧收纳,右侧是壁挂式的折叠坐凳,方便老人和小孩更衣。
楼梯

通往二楼的楼梯采用木质踏板配白墙,看着简洁温馨的同时可以提亮空间,而扶手的安装对于老人和小孩来说更安全。
储物间


为了提高利用率,盘活楼梯下的空间,屋主把它做成了储物间,收纳各种杂物、背包,以及临时衣物和鞋子,毕竟位置上距离入户不远,就在鞋柜左侧,因而还可以补足后者收纳不足的问题。
二楼书房

主要用于办公学习。
客厅阳台

客厅阳台采光视野俱佳,闲暇时分,拿把椅子坐在这放松观景,或是阅读发呆,都是一种不可多得的享受。
至此本案就分享到了这里,由于次卧、老人房、露台花园、洗衣房和主卫,设计师没有提供相应的实景图,这里就无法分享了,不过这种实用主义至上的简装效果确实令人着迷,因而感兴趣的不妨参考一下。(注:本案文字原创,图片来源于设计师@程雷,如有侵权,请联系删除)
想了解更多精彩内容,快来关注@美家手记