后浇带的留置
在后浇带施工中通常有时候我们不清楚具体设置的范围。今天结合图纸跟大家分享下后浇带设置范围。

后浇带留置范围
在基础施工图说明中通常会注明后浇带的类型(沉降后浇带或伸缩后浇带)及设置范围,由此可以看出后浇带设置范围为地下室底板~车库顶板。通常伸缩后浇带布置在一个较大的单体之间来释放由于热胀冷缩所产生的应力,而沉降后浇带通常布置在主楼与车库之间,因主楼跟车库设计高度不同所承受荷载的不均匀性的不同,因而在主楼跟车库之间通常设置的是沉降后浇带。

后浇带留置范围
另外在主楼长度较长的时候也会设置伸缩后浇带,设置后浇带范围一般都是基础~首层相同位置留置后浇带,在图纸上一般也都会注明。也就是说图纸上标记的后浇带范围是从筏板到正负0的墙柱梁板梯都要留置 有 后浇带。

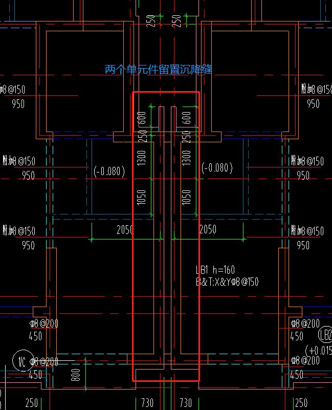
单元之间变形缝

单元件变形缝
至于正负0以上通常设计的时候会分成单独的单元,单元与单元之间设计的有变形缝;因而正负0以上通常都是变形缝而不设置后浇带。
关于止水钢板的留置问题

另外在后浇带部位通常采用预埋止水钢板的构造进行防水。那么止水构造措施(例如止水钢板)并不是在所有需要留置后浇带的地方都需要预留的,止水钢板只需要留置在底板后浇带、外墙后浇带、以及地下室顶盖的 室外部分 需要留置止水钢板。像室内部分的后浇带因没有水渗透因而只需要留置后浇带而不用设置止水钢板。

施工缝防水构造
在预埋止水钢板的时候一定要注意止水钢板的朝向问题,止水钢板呈C字形,在预埋的时候开口对准迎水面进行预埋,以及止水钢板之间连接要严密不能有缝隙;以便于增大水的渗透路径从而起到防水的效果。
后浇带属于施工缝的一种,在设计以及施工留置的时候一定要注意留置到内力及作用力较小的地方。后期浇筑的混凝土通常也是采用比两侧混凝土高一个标高的膨胀混凝土在低于两侧混凝土浇筑时的温度下浇筑为宜。至于后浇带什么时候才能浇筑,通常在设计的时候进行说明,施工的时候根据设计要求进行施工即可(本工程伸缩后浇带设计为后浇带两侧混凝土浇筑完成后45天方可浇筑;沉降后浇带在主体结构顶板浇筑14天后,并且提供沉降观测数据,根据沉降观测情况可进行浇筑)。后浇带养护时间一般不得少于28天。模板拆除时间通常为混凝土强度得到100%方可拆除。
后浇带处的支模架施工
因后浇带部位的特殊性,后浇带处模板不能急于拆除,假如拆除的话可能造成安全及质量隐患。因而在支模的时候需要进行单独直设不与其他地方的架体相连。因此在其他架体拆除时后浇带处的架体也能不受影响。
1.后浇带模板施工应在模板工程施工方案中专项阐述。
2.后浇带两侧木枋顺着后浇带方向设置,按照方案要求设置木枋间距。
3.后浇带竖向剪刀撑应在后浇带两侧连续到项设置,5m以下层高在扫地杆处设置--道水平剪刀撑,5m以上层高水平剪刀撑间距不超过4.8m。
4.后浇带架体搭设基本参数按照施工方案搭设,扫地杆、立杆自由端等按照规范要求执行。
5.后浇带架体过人通道处需进行单独加固处理。
6.后浇带架体施工前应进行专项交底,过程中严格监督搭设情况。

后浇带搭设架体示意图