富力盛悦居预计首开2#,3#,4#楼,2#楼户型面积均为125㎡,3#,4#楼户型面积均为99㎡,经济三居和阔约三居。社区内规划了1556个车位,超过1:1.3的高车位配比,整个小区共设置6个人行出入口,东西区各三个,其中东西区的北侧各一个次入口,中间支路各有两个主次出入口。
【99㎡户型】

99㎡户型
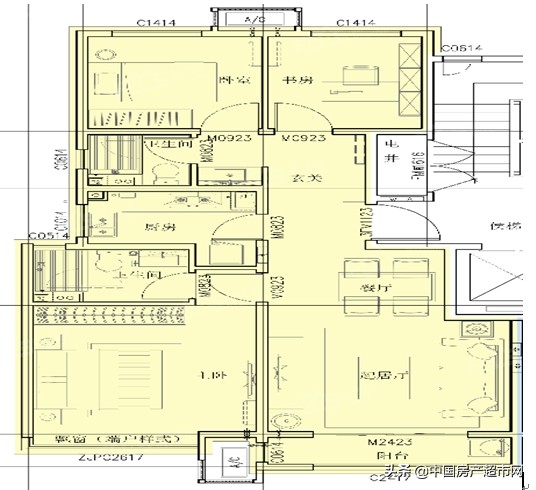
【115㎡户型】

115㎡户型
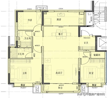
【125㎡户型】

125㎡户型
【135㎡户型】

135㎡户型
户型方正、全面户型,动静分区合理
客厅近3.95米超大开间,视野开阔,阳光美景悉数收纳
用餐区、客厅、阳台形成1字型起居空间设计:呈现出开敞、方正、通透的大起居空间,尺度感极强,无形间增大了实际使用空间和视觉效果
明厨明卫干湿分离,动线设计人性化,生活互不干扰
主卧室270°转角观景飘窗,空间尺度延伸,丰富区域功能空间
99㎡舒适性两卫小三居,珍藏产品,首 次置业首 选。