疫情当下,商办楼宇租赁行业正在经历一轮残酷的洗牌,在这样的市场环境下,敏捷办公服务平台MaxOffice堂堂办公紧密协同堂堂加集团资源,在半年时间内,平台覆盖的办伴直营店完成了新签约项目9个,代理招商业务承揽2个项目, 数字哨兵产品得以研发并在多处楼宇得以应用......敏捷办公的需求持续在增长,全链条的平台式服务将呈现更多元的发展空间。
招商代理再签约
敏捷型代理大有可为
近期,MaxOffice堂堂办公旗下招商代理事业部签约“东方蓝海·e通世界”项目,这是继云汇天地项目之后,又一次与业主间突破性的合作尝试。

MaxOffice堂堂办公以线上平台作为客户流量入口,依托线下自营门店与企业服务顾问,以数据驱动为核心,提供办公资产去化服务。
合作伙伴“e通世界”则凭借多年特色化的产业园区运营经验,强大专业的政策扶持服务,吸引行业内企业的关注。双方此次组合打法,将发挥各自优势,完美的融合互补。
堂堂办公将利用在五角场商圈已经积累的渠道资源和客户资源,帮助项目快速实现区域曝光,提升关注度。 e通世界则可以通过产业孵化及服务体系,实现高效的客户转化及留存。
敏捷型代理区别于以往传统的代理招商服务,敏捷型代理的合作模式涵盖项目升级、定向招商、租户延伸服务,而传统型代理,仅为业主进行项目操盘、整体招商和租户服务,敏捷型代理能够更加精准拓客,双方各自发挥优势,与自身业务团队进行分工合作,实现1+1>2的效果。

东方蓝海·e通世界
-
项目优势: 五A甲级节能写字楼,全明玻璃幕墙; e通专业产业运作,助推中小企业快速成长
-
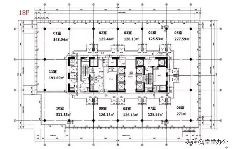
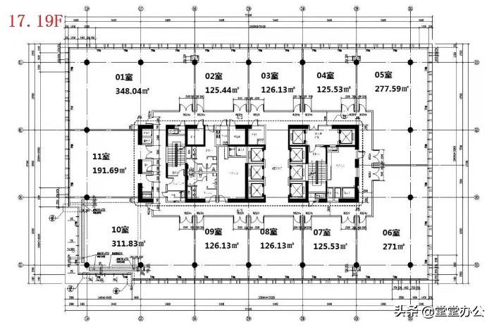
项目基本信息: 办公总建筑面积(e通世界)约10,759.5 m²
-
楼层数: 12F、16-19F
-
标准层建筑面积(平方米): 2100-2310m²
-
主力面积段(平方米): 125.53㎡、126.13㎡、271㎡、277.59㎡、278.18㎡、348.04㎡、2100-4300㎡


交付标准:标交
吊顶净高(米): 约3.2米
架空地板(毫米):约100毫米
天花吊顶:铝扣板吊顶
得房率:单套72%、整层约85%
电梯系统:客梯12部;货梯2部;穿梭梯2部
空调系统:约克中央空调+新风系统
报价:4.6-5.6元/㎡/天(含税9%)
停车位:1000个(停车费 800元/月)
物业费:30.8(或者33)元/㎡/月(含税)
交通:地铁10号线(五角场)站步行约10分钟,地铁10号线(国权路)1.1公里步行约12分钟 ,地铁18号线(抚顺路)步行约10分钟 ,中/内环高架&轨道公共交通&过江隧道
商业配套:星巴克、全家、中信银行、麦当劳、一兆韦德等

项目大堂&公区
标准交付
