
广州琶洲西区酒店式公寓位于广州市琶洲,位于猎德大桥视线通廊上,城市界面重要,基地西北侧及北侧均无遮挡,位于珠江一线城市,比邻广州塔小蛮腰,远眺珠江新城周大福中心。项目建成后,将提供25层酒店服务公寓一栋及裙房商业,总建筑高度99米,占地面积4368.3平方米,总建筑面积37128平方米。建成后的酒店服务公寓将成为融合城市商业,文化宣传和特色江景的新型城市地标。


▲总平面图

▲首层平面

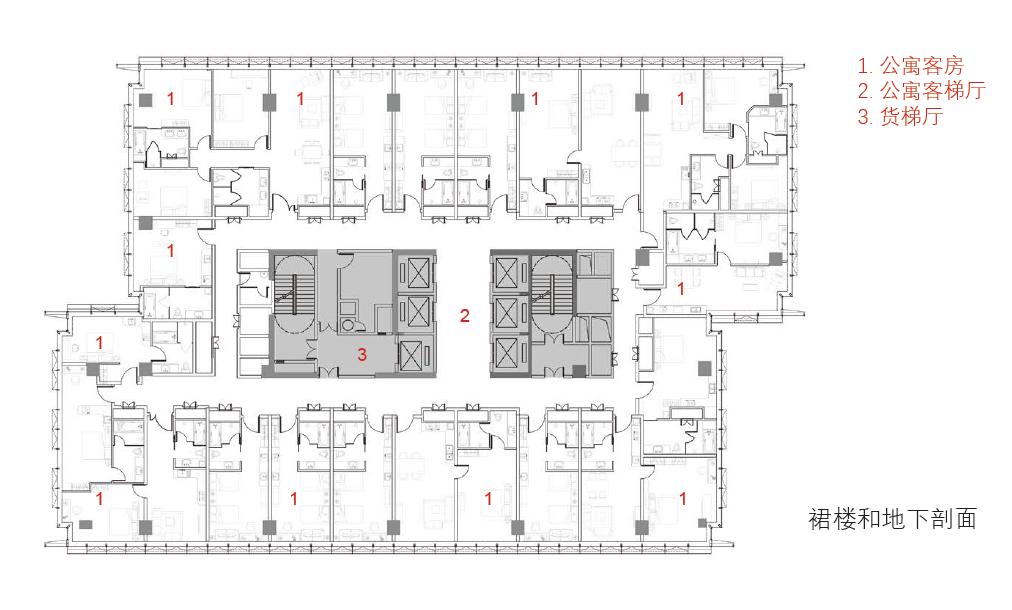
▲标准层平面图

▲首层立面效果&雨棚断面效果

▲酒店公寓主入口剖透视

▲标准层转角飞片玻璃幕墙节点效果

▲标准层典型幕墙飞片效果&塔楼标准段幕墙及飞片
项目信息
项目名称:广州琶洲西区酒店式公寓
项目地点:广州
建设业主:广州海珠区珠江租赁有限公司
设计时间:2020年
建筑面积:37,128m²
建筑设计:上海都设营造建筑设计事务所有限公司
建筑合作设计:广州珠江外资建筑设计研究院
幕墙顾问:弗思特建筑科技有限公司
资料来源、版权所有:上海都设营造建筑设计事务所有限公司