大家好,我是造价小点滴,今天又和大家见面了。今天和大家分享一下梁配筋图的相关识别

某项目首层梁配筋图
首先,前面章节分享过柱和墙,那么大家可以想象一下,柱与墙竖向构件建立起来以后,紧接着下一步就该进行梁板等水平构件的建立了。以墙体或柱子为支座,然后支撑起梁和板。那么下面就分析一下梁配筋图

KL3/L6配筋图
以上图中KL3(1)与L6(1)进行分析
大家首先观察这个图纸,绿色实体线段为墙体线段,蓝色虚线表示的为梁线段。然后单独拿出KL3(1)进行分析

KL3(1)
我们能看到图中梁标注信息KL3(1) 200*500 ∅8@100/200(2) 2∅14;2∅14。那么我们来分析一下这个标注信息:首先KL3(1) 200*500表示梁编号为3的框架梁,梁截面为200*500mm,梁跨数为1跨;∅8@100/200(2)表示为梁箍筋为三级圆8箍筋,加密区间距为100,非加密区间距为200,箍筋肢数为两肢箍;2∅14;2∅14表示梁上部钢筋为2根三级圆14的钢筋,下部钢筋为2根三级圆14的钢筋;
通过读取图纸,大家还发现与L6相交处还有一些标注信息

与L6相交处标注
此处标注信息即为梁右支座钢筋为3根三级圆14钢筋,与次梁相交处每侧增加三道箍筋,此处增加箍筋信息可在说明中找到,一般为与梁相同的钢筋。
然后在分析一下L6(1)

L6(1)
我们能看到图中梁标注信息L6(1) 150*400 ∅8@100/200(2) 2∅14;3∅14。那么我们来分析一下这个标注信息:首先L6(1) 150*400表示梁编号为6的非框架梁,梁截面为150*400mm,梁跨数为1跨;∅8@100/200(2)表示为梁箍筋为三级圆8箍筋,加密区间距为100,非加密区间距为200,箍筋肢数为两肢箍;2∅14;3∅14表示梁上部钢筋为2根三级圆14的钢筋,下部钢筋为3根三级圆14的钢筋;
通过KL3与L6分析,大家应该发现一些问题:
首先:这两个梁分为了框架梁与非框架梁,既然此处分了框架梁与非框架梁的,那么区别有何不同呢?以预算的角度来讲呢,小点滴主要觉得有这两点:(1)受力不同(2)配筋不同
其次:跨数的问题,何为跨数呢,跨数大家可以这样理解,梁所在位置下,有竖向结构构件承载梁,那么此处即可看做是一个支座,两个支座之间的梁为一跨,以此类推。若所在端部无竖向承载构件,那么此处定义为悬挑跨,即为悬挑梁。下面给大家看一些不同跨数如何区分

三个支座,跨数两跨
上图为三个支座,跨数量为2

两个支座,一端悬挑
上图为两个支座,一端悬挑,即为悬挑梁,跨数为1跨半单悬挑梁
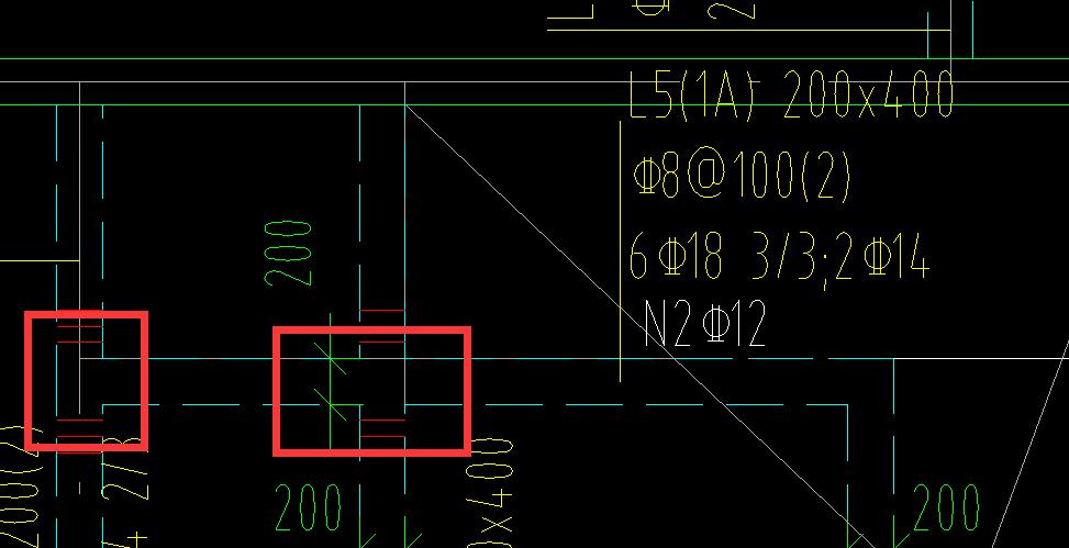
通过这几个图的对比分析,大家也会发现一个简单的确定梁跨数的方法,即为梁标注信息中所带信息,比如KL3(1),此处括号里的1即为1跨;KL6(2),此处括号里的2即为2跨;L5(1A),此处括号里的1A即为1跨单侧悬挑;
梁的基本识图知识今天与大家分享到这里,不明白的小伙伴可以私信小点滴。