家,是归宿,是一份情感的归处。家,是我们疲惫后的寄托,是岁月沉淀后的浓浓情意,是最难割舍的羁绊。生活只有经历过时间的沉淀,才会显得弥足可贵。本案业主夫妇本身也是从事建筑行业,对此次装修也寄予厚望,和设计师的沟通中也能引发更深刻的共鸣。在这个400多方的空间里,不仅体现着设计师的设计思路和理念,更是承载着一家人的情感和岁月的归处。
项目:保利林语山庄
风格:现代简约风格
面积:410㎡
户型:别墅
设计师:华浔·广州·袁红霞

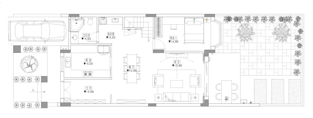
△一层平面布置方案

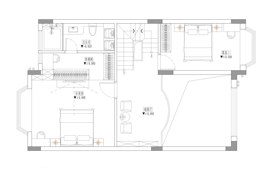
△二层平面布置方案

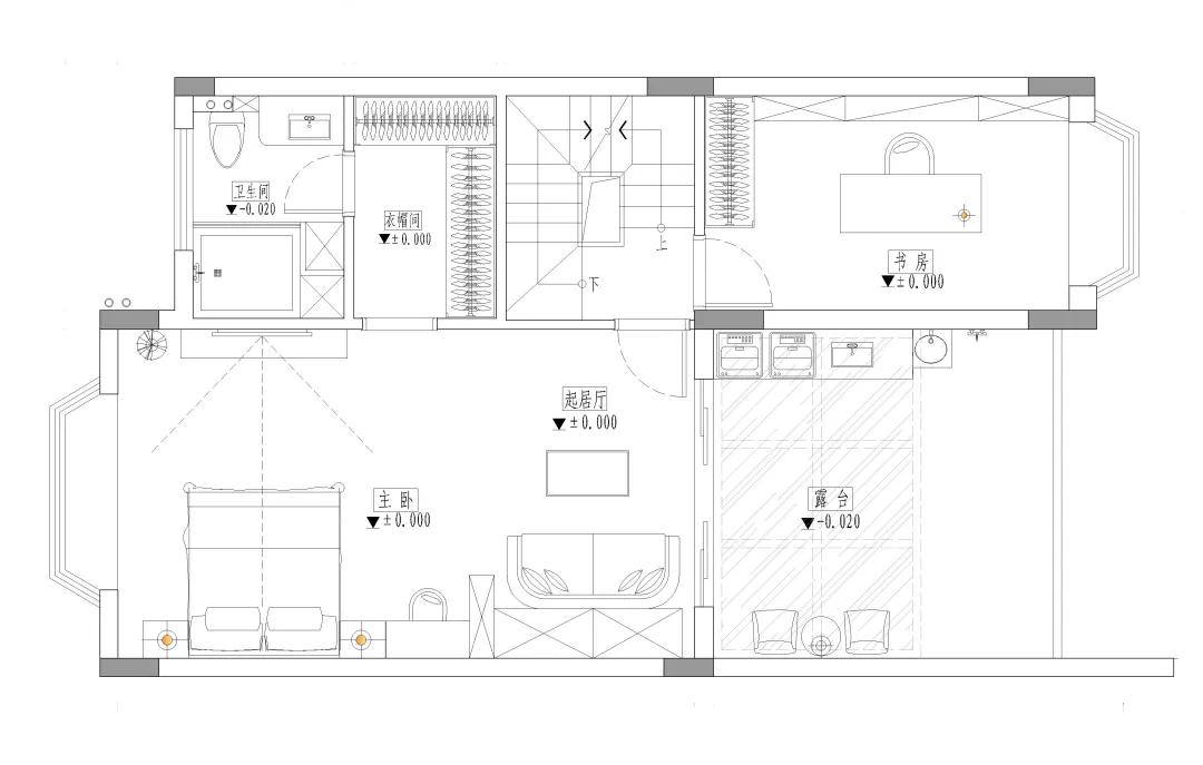
△三层平面布置方案

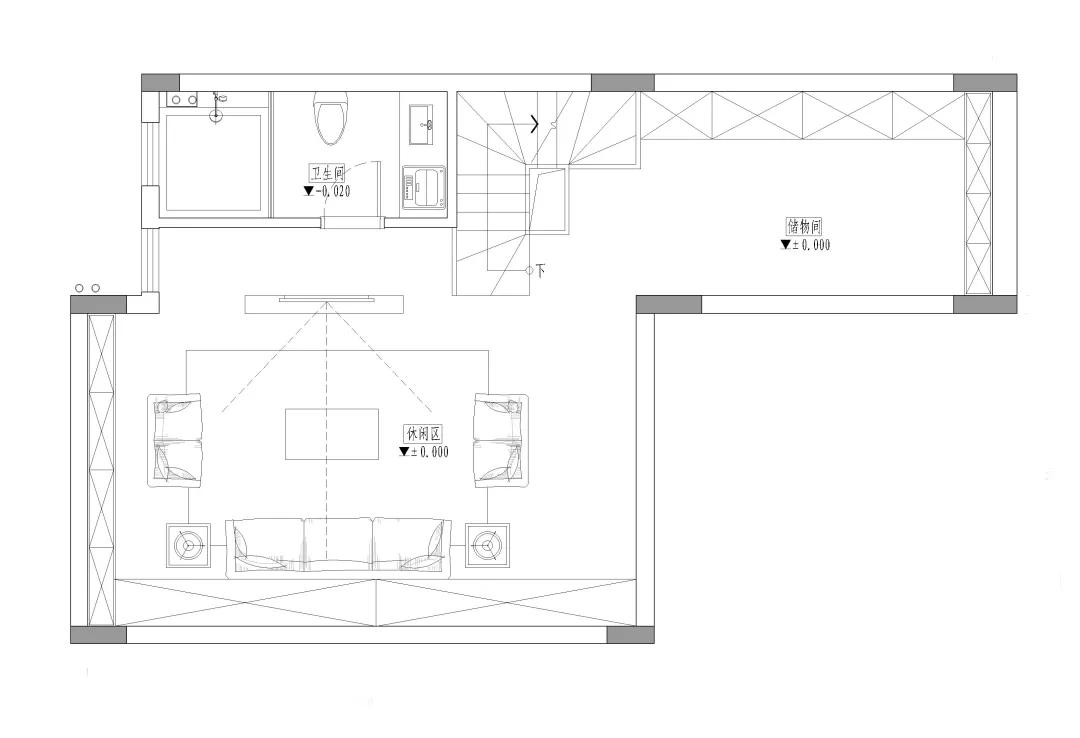
△阁楼平面布置方案
本身这套别墅是只有三层,由于室内户型结构不够合理,所以在和业主多次沟通后,决定加建部分面积。同时,把楼顶也加多了一层阁楼,一个是增加了室内使用面积,另外一个也是考虑做一个隔热的处理。整体风格以简约、现代、轻奢为主,意在打造一处舒适、自在、柔和的生活居所。
01#客餐厅
业主家庭结构为,在项目整体规划上,我们以安享三代同堂之乐为基础设计理念,从尺度、比例、再到布局,希望营造一个可以使家庭每个成员都相对惬意的空间,这中间牵扯到每一位家庭成员的喜好,生活习惯等等,我们将所有需求筛选并最终融合。
在空间规划上,一层设置了会客厅、餐厅、厨房,一个卫生间和一个客房。最为出彩的是挑空的会客厅,接近五米的挑高让视野更为开阔,高大的落地窗让室内光线充足,整个客餐厅空间明亮,柔和。花园的景致也被引入到客厅,大自然是最好的装饰。
简约的吊灯装饰,将两层空间串联在一起,整面的大理石电视背景墙,气势恢宏,质感强烈,将别墅独有的气质展现的淋漓尽致。空间感恰到好处的家私摆放,简单的线条勾勒,没有过多的装饰,只用柔和的色彩和材质的变换来凸显空间现代、简约、轻奢的设计效果。


02#餐厅
餐厅视角的全景,从宽敞的门厅进入室内,整面墙的定制柜体一直到顶,视觉上有整体性,这是家里的收纳担当,留出的部分展示柜区域,可以放置主人喜爱的收藏品。在设计时,我们也一直试图将业主的气质融入到整个空间当中。
具备开放性功能的长桌,既可以是家人就餐的餐台,插花休闲,阅读会友,都可以在这里进行。个性化的灯饰,让柔和的光线从不同角度折射,营造出纯净、高级的氛围。

03#休闲区
顺着楼梯上行,就来到二层,这里设置了男孩房套间和一个客卧。楼梯左手边,是一处休闲区域,这里光线充足,陈列柜展示着一家人的喜好,在这里也可以同一层客厅的家人有一个互动。

04#男孩房
一套房子一次装修,起码是规划未来十年的生活方式,要充分考虑到未来人员结构可能的变化,生活习惯和方式的改变。二楼利用大部分面积做了一个套间,包括卧室、卫生间和衣帽间。前期可以作为儿子的卧室,后期也可以当做婚房来使用。
人是视觉动物,室内空间合理的色彩与环境搭配,会形成愉悦的感官过渡。原木色调和浅灰色床品,营造出简约温馨的氛围,在这样的休憩空间,人的心态也会变得越来越温和吧。

05#客房
客房设计上主要以现代简约为主,满足基本的功能需求,所有的卧室延续无主灯的设计,只采用最简单的筒灯来照明。鱼骨型的木地板铺贴方式,让空间瞬间充满立体感。

06#主卧
三层则是主人夫妇独立的生活区域,包括卧室、衣帽间、卫生间和一个书房。生活功能齐备,现代自然的格调,温柔居室的情怀,设计师以最简单的方式创造出温馨和舒适。在这里看不到外界蔓延的焦虑情绪,只有岁月静好。
起居室的推拉门出去是一处露台,通透的玻璃能很好的引光入室,让起居室沉浸在阳光的沐浴中,这里自然也成了业主最合适的休憩场所。露台同时也承担了部分洗衣晾晒的功能。

07#阁楼
最上面一层的阁楼属于加建出来的,考虑到三楼主卧是顶层,广州日晒充足,阁楼能起到一个隔热层的作用。另外加多出来的面积也是作为家里空间的扩充。设计师将这里变身为一个书吧,两扇大天窗,让这里光线充足,斜顶的设计尽管层高不够,但是也足够正常使用,不会觉得压抑。原木色和浅灰色家具,营造出宁静温馨的氛围,在这里读书学习亦可,同时也可以作为未来小朋友玩耍的一个区域。

在本案设计过程中,设计师和本身从事建筑行业的业主都达成共识,过度的装饰堆砌,无论对空间设计本身还是房主的使用感受上,都是一种无形的压力。时间最终会筛除掉那些繁杂冗长的装饰,简洁自然才是设计的最终归宿。一如我们对恬静生活的渴望,愿我们多数时候,都能沉浸在自己的小确幸里,忘却时光流逝,享受岁月沉淀带来的美好。
【本案设计师】

袁红霞
代表作品:金地荔湖城、清华坊别墅、南湖半岛、碧桂园别墅、南国花园等
设计理念: 设计源于生活,生活因设计而改变!成就空间和谐,让设计物有所值,让细节缔造完美!