前期准备:CAD,dwg结构图,测距仪
平面制图工具避不开的一定是CAD,当然,可用的版本还是很多的,不一定非要找AutoCAD,毕竟正版的价格实在是太吓人了,可以考虑一些试用版,免费版,如果是国产软件建议大家支持一下。

至于入门,其实是很简单的,你只要会画直线,知道怎么画直线和删除就可以了,实际上本人当初也是十多年前学过的,当年可是连机械齿轮都能画的,现在也基本上忘干净了。

实际上CAD能做的可不只是2D,3D也是可以的,不过我们的目的只是最简单的对室内进行布局设计,把控和确定最重要的几个点,例如,放不放的下,局不局促,过道能不能通过局促与否,当然,最优解,你需要一张原始的dwg图,这样你才可以最快速度进入改图的阶段。
那么CAD入门可以多简单?你掐几个点,就足够你初步使用了。
直线,多段线
由于默认横平竖直,所以画直线你不用担心画斜了,你也可以直接输入距离,单位是mm。

按DEL键可以删除,但是如果你想删除的只是一部分,而非全部,但删除项目是一个整体,那你可以选择项目,点X打散,回车即可。
而CADmini画图直接把相关命令都给罗列了,极大地简化了操作流程。

这个时候,你就可以单独选择删除一边了。

如果你想多线段组成块,移动调整更为方便,可以复制,再年粘贴成“块”,也可以输入命令B,跳出块定义后再操作。

其实到这里,最基础的部分就已经足够你使用了,你没听错,实际上就平面设计来说,你只要做最基础的直线就可以了,但是本人也发现国产软件的优势,除了给你免费试用以外,其功能性都是要好过常规软件的,简单来说就是易上手,一年198RMB也相对合适,但是使用次数比较少,单次成本就显得比较高了。
测距仪,卷尺
想方便一个人量尺,那就测距仪,如果想精度高一些,那就卷尺,实际上你需要高精度吗?答案自然是否定的,所以量尺差的那个一厘米,一毫米,最终并不会大幅影响最终结果,如果你买了房,室内施工基本上结束的话,就可以考虑去量一下尺寸了。
小米有品HOTO小猴智能激光测距仪红外线测量工具手持高精度电子尺
¥199
购买
(往期拍摄,非本人家中)

而布局的目的是为了检查你究竟可以放下多少尺寸的家居,例如沙发,例如电视,床,衣柜等等,如果你和我一样,拿到了厂家的dwg图,那就不用重画了,如果不是,建议你将室内的净尺寸画下来,每个房间可以独立,不用刻意链接到一起。
闹,我家的全部实测尺寸,例如主卧净尺寸是4.582×3.586,重点是门的精确位置,宽度。

有尺寸后就可以尝试摆入家具,看看你可以放多少尺寸的柜子和床,床头柜,小细节如柜体垂角不要对着门,各地说法不一样,自行注意。
自行标注尺寸,也可以随时查看,根据实际尺寸来排布,连投影面积你自己都是可以计算的。

其他区域的情况类似,就不一一展示了,我们看最终的一些方案吧。
落地方案解析,千年舟·柏菲伦提供效果图验证
感谢千年舟·柏菲伦和邢工给予的极大帮助,业主和商家共同努力才能实现所想。

前前后后真的是改了一大堆的方案,每个房间的方案都是反复打磨,别小看平面设计,可以说一切的基础就是平面设计,根据平面设计你可以知道你的脚踩区域是宽敞,还是逼仄,这样你就可以有大把的时间来犹豫设计,而不会因为时间不够而草草结案。
其中还有帮业主邻居做了好几个方案,对方也是相当满意,其中给自己做的全开放书房是真的喜欢。

这个方案唯一可惜的是会丧失玄关属性,实用性虽然也不算很差,但是总觉的差点意思,所以你懂的,虽然门外的鞋柜也可以作为玄关使用,但是老婆说外面总归是公共区域。

最终方案的总体先看下,然后我来详细解读,下图的方案属于保留玄关的极端实用,相较于之前一篇的部分展示,这次我们好好详细解读下各个房间的落地规划。

1.进门玄关
由于原有玄关柜被移至公共区域,重做玄关柜则可以很好的统一室内设计,而原本书房门直接放弃,连同原有墙体全部拆除。

从这里入户,正对的就是玄关柜,玄关柜由带抽屉的换鞋凳和一个高柜组成,而左侧整面墙体同样由柏菲伦提供整块板材作为墙板。

至于挂画,偏现代且有透视感的立体图即可,有空间延伸感,同时配合射灯效果更好。
基本上类似这样,图纸选于此店家的店铺用图。

从玄关柜延伸至客厅的悬空电视柜,一体感更强,这也是全屋定制的意义所在,一致性!柏菲伦在用料上给予了极大地帮助,提供了多种板材和颜色的选择。
最终效果如下

小贴士:不同厂家对于异形设计的支持度是不同的,如柏菲伦提供的方案相对较多,但仍无法随心所欲,如PET肤感膜就无法实现弯折效果,如漆板需要密度板才可实现都是类似的原因和原理。
2.够用主义的客厅
客厅开间3.88m实测,不算小,但也不是很大。

悬空电视柜的总长从3m延伸到了3.35m,好在墙体本身有较大面积的剪力墙部分,配合托架钢材和慧鱼膨胀螺丝,也可以很好的实现支撑。

支架层托架
【19.9元50个送100个】不锈钢角码加厚固定L型连接件三角支架板托
¥19.9
购买
慧鱼膨胀螺丝
德国慧鱼膨胀螺丝空心砖墙加气块尼龙膨胀管配沉头钉专用螺栓锚栓
¥20.25
购买
沙发部分我还在继续头疼,因为需求是豆腐块沙发且带两个功能位,京东有一款但是品牌并不了解,有知道的希望大家帮一下。
凯顺庭轩真皮电动功能沙发
头层牛皮豆腐块轻奢创意真皮电动功能沙发意式极简组合头等舱客厅
¥2999
购买
由于房屋结构的缘故,也是不得不考虑了风管机,而且考虑到厚度,也是考虑了超薄的卡萨帝风管机,可以基本保证现有吊顶的平整度。
由于卡萨帝的风管机仅有一个型号,也不存在搞错的情况,所以很快就下单了,但需要注意的是,卡萨帝机型的溢价是比较高的,各家给的价格并不一样,建议大家除了在线查看相关信息外,一定要去实体店去看看,反正我是得了个大惊喜。

为了延长原本3m的悬空电视柜,,玄关和电视背景墙被*绑捆**成了一个整体,并用板材做了包墙处理,配合灯带衔接墙体。

柏菲伦给做了整面LG肤感膜的背景墙,配合木纹板,线条分割,铝合金条配合,实现了不错的背景效果。

小贴士:是否想做满墙电视柜?个人并不是太推荐,客厅空间够,建议再沙发背后做满墙收纳柜更舒适一些,而悬空电视柜一定要尽可能的长,尽可能的长,尽可能的长,我真的是看到过非常多的设计,明明很舍得花钱,全屋定制十五万,但是悬空电视柜仅仅2m长的,一旦挂了电视,整体非常的不协调。
3.带储藏室的书房
放弃了书房门,封闭后实现了两个好处,一个是获得了尺寸更大的书柜,透明玻璃柜总长达到了1.9m,第二是获得了一个近2㎡的储藏室,有人要问了,为什么入口是阳台位置?因为书房的用途本就是专属使用,门在哪里确实不是很重要,而原本门的位置相对于做了一个柜体,隐藏起来了,愿意加把锁也是可以的。至于本人刚需超长电脑桌也是达到了2.43m,哪怕是32寸4K三屏显示也是妥妥的。

而放弃移门的原因也是非常简单,省钱。

作为本人的工作区域,要求自然是很高的,但是本人又不是很喜欢太繁琐的设计,所以就有了现在的成果,总长接近2.8m的悬空电脑桌,右侧可以考虑摆放打印机。
收纳,开放格数量控制的不错,不过也需要定期清洁,灯带给足。

右侧通顶书柜,展示柜,固定在层板上的灯带,兼顾了照明,果然面积达到了,可以不需要更特殊的设计,就可以获得不错的效果,右侧是储藏室入口,同样的通顶柜门。

另一侧洞洞板,用于工具收纳,考虑入一个小尺寸的升降桌,用于和儿子拼装积木,也可能会考虑入一套乐高收纳盒,对家中的乐高配件进行收纳。

小贴士:动线设计一直是此类户型的硬伤,门口区域作为卧室其实是非常不理想的,阳台电器太吵,进出门太吵,所以将其设定为书房则一切迎刃而解,如果你愿意舍弃玄关柜,将书房和客厅融为一体,实现全开放设计效果更好,但是实用性确实有所下降。
还是想聊几句,有人质疑储藏室门为什么不开在朝玄关的区域,因为储藏室是属于家庭常去区域最末端的,而且本人使用储藏室的概率要比家人多得多,所以有一定专属性是本人储藏室的特点,另外有人将储藏室作为多品类储藏,甚至是饮料,零食,我想问,你没有其他收纳空间了?你的餐边柜在哪里?厨房在哪里?储藏室就是存放季节性的如风扇,加热器,加湿器;本人常用工具的如补光灯,干燥箱,甚至是保险箱,也是有了可去之处,何乐不为?
4.半开放式厨房
硬伤是整体偏小,优点是开口还比较大,可惜利用率太低,移门一次只能通过一个人,必须改。

厨房从本人决定购买旭辉开始,就已经定下了结构方案,原因是开发商原有设计并不实用,而且原有位置(标注电器)只能放小冰箱,而且只能买深度60cm厚度的冰箱才能保证不突出,所以决定冰箱外移至餐厅,而标注电器位置则是洗碗机和蒸烤箱位置。

洗碗机当然还是考虑美的RX600S
美的H60S洗碗机 rx600s升级款 独嵌两用15套 全自动家用 骄阳系列
¥4799
购买
而蒸烤箱考虑凯度ZD Pro二代
【全新升级】凯度ZDpro二代蒸烤一体机嵌入式彩屏蒸烤箱电动开门
¥6299
购买
至于餐桌还在考虑,老婆不喜欢岩板,而个人超爱岛台,可惜的有柜子后仅2.5m的空间,放岛台是肯定放不下了,功能性考虑带电磁炉的餐桌。
椅腿的设计个人比较喜欢,有一定的设计感,加上自带电磁炉,实用性也有了。

可以说,厨房从本人决定买房开始,就已经做好了准备,包括0嵌冰箱,包括餐桌的摆放,包括厨房的开口,实际上户型是本人的重中之重,不需要非常大的厨房,但一定要规整。


上半部分选择玻璃门板,薄柜不臃肿,下半部分60cm,收纳拉满,这里有两个抽屉的,可以进一步增加收纳便利性。收边是本人的创意,通过灯带收口,LG肤感膜柜板也做了一定延伸。
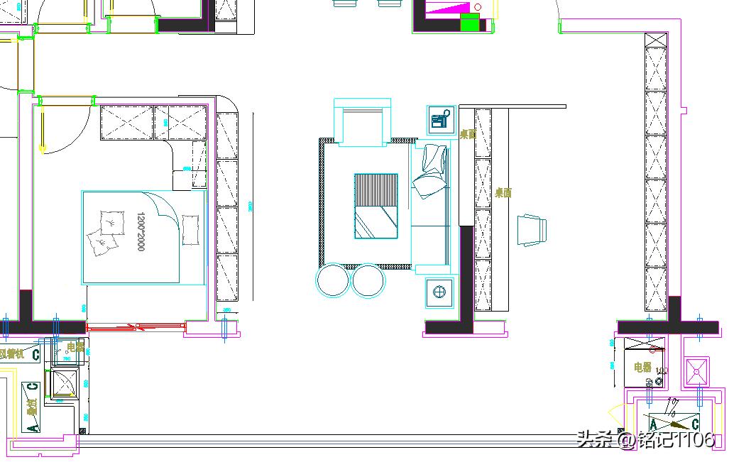
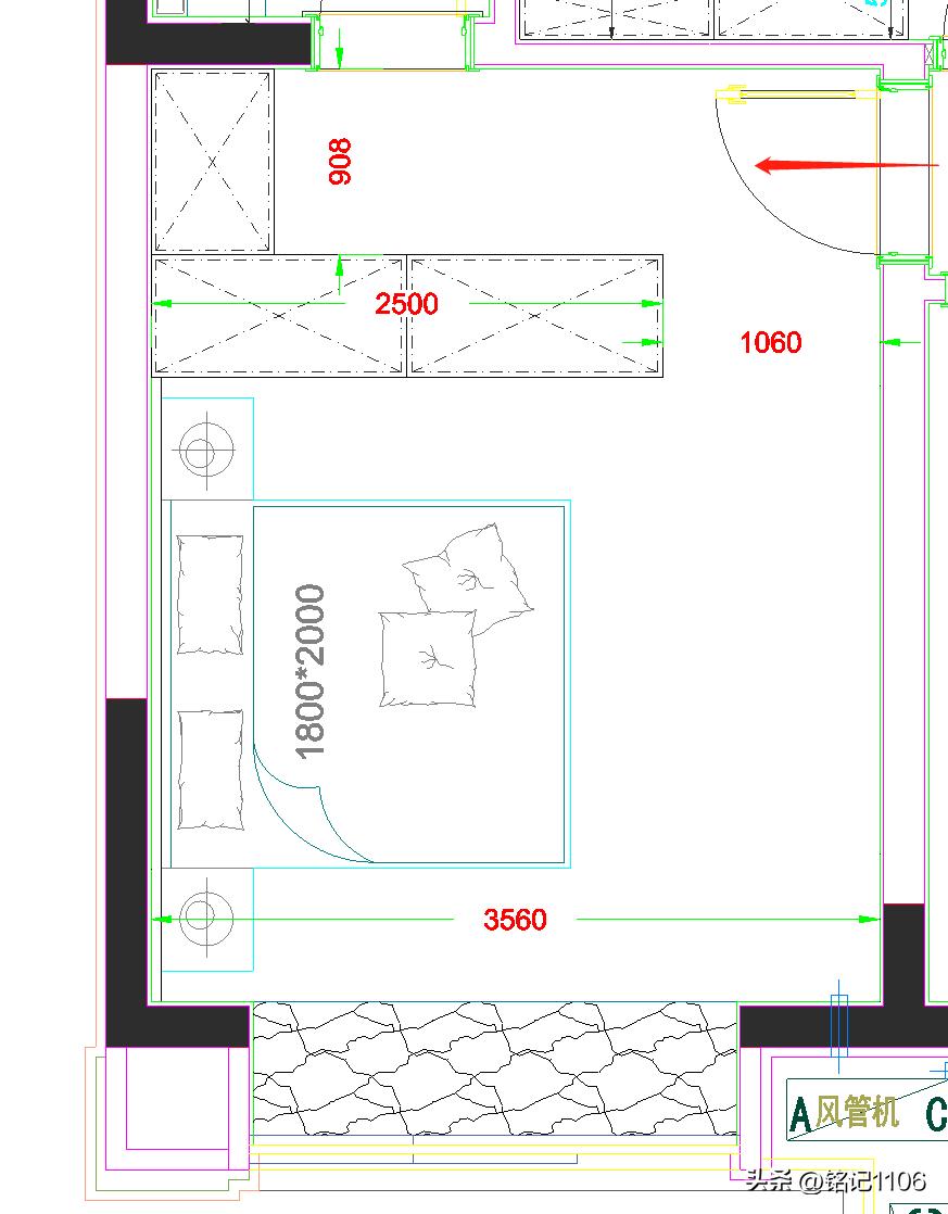
5.常规主卧,个人的思路
值得高兴的是尺寸,小高143我最满意的恰恰是主卧尺寸,原因就是最开始说的,其面积达到了4.582×3.586,为16.4㎡,不管是长,亦或是宽,都是可以刚好满足所有需求,最终方案如下,进门避开了柜角,宽度达到了90.8cm的过道,柜子深度60cm,总长达到了2.5m,且通道也能保证1.06m而保证不逼仄,可以说空间感满满。

实际上也正是因为空间足够,让各种设计成为了可能,如柜子放于床尾,实现整墙柜,收纳更佳,脑洞更大一些,红标的非剪力墙也去掉一部分?

说干就干,大概就是如此,横向空间有一定压缩,柜体也有缩减,但是纵向空间更大,墙体保留部分是为了保护两侧的门,不然支撑不够。如果想要个梳妆台,不管是现成的,还是全屋定制定做,皆可。

卧室的效果没有完全表达,但是设计师确实太辛苦了,帮我画了太多东西,就不折腾他了,整体设计本人准备就保留两种颜色,上半部分的暖色系肤感,下半部分的皮质感双饰面,扔掉了假门板的设计让设计感更自然,床的颜色同样是采用类似上墙板的颜色,可以让全屋的颜色更轻快一些,现有的设计颜色太重了。
护墙板的大面积使用,也建议大家使用优质板材,最好是enf级或者F4星板材。

小贴士:买房确实是一个兼顾的选择,即使是相同的143㎡,其面积分配依然有很大的不同,例如同为143㎡的小高和高层,高层主卧纵向空间还是不太够,导致L型衣柜并非家家适用,但如果确定需要摆放电视,又要保证衣柜数量,L型衣柜似乎是最有效的解决办法。
例如柏菲伦老板自家就是143㎡的高层,他们的解决办法就是压缩柜体体积,仅40cm宽度也是压缩了衣柜容积,衣服只能平挂,优点是依然好用。
6.老大房间(南次卧)
这个是到手就马上要用的儿童房,也是多次复尺确定尺寸,不算大,但也是完全够用。

老大已经十岁了,当然是马上就要用的, 所以直接放在南面,实际上南次卧是客厅划出来的一块空间,好在面积也不小,仅次于主卧,达到了9.4㎡,所以规划了一个55cm厚度的小衣柜,宽度86cm的学习桌,还能保证1.5m的床,同时人通过去阳台也完全没问题。
噪音点来源于扫地机和洗地机,由于洗地机是放在立柜中的,噪音隔绝较好。而扫地机噪音则大一些,不过只要不是做基座集尘动作,也基本上没有问题。

南次卧偏狭长,宽度不够,而且这个房间是老大马上就要用的,所以本着减少板材用量的思路,就不做独立的书柜了,学习桌空间较为宽敞,一侧做了延伸,整体长度超过1m,非常舒适。整体用色简单轻快的,

小贴士:为什么柜子那么少?考虑孩子居住环境,尽可能的减少柜子可以进一步降低甲醛等有害气体释放,虽然全屋ENF也不至于太担心,但是考虑空间感还是做了很大程度的留白,不靠移门也不担心进出不便。
7.老二房间(北次卧)
全尺寸飘窗好评,虽然不是假飘窗,需要注意的是千万别砸真飘窗,不然一定会让你欲哭无泪。

北次卧算是最特别的,不算飘窗尺寸是尺寸最小的房间之一(和不改墙的书房比大了0.1㎡),算了飘窗超过了10㎡,可惜的是这个飘窗是实打实的真飘窗,拆是不可能拆的,但好在横向更宽,也是让我冒出了书柜放在床尾的设计思路,唯一可惜的是收纳空间依然不是很够,仅有一个衣柜,而书柜的收纳空间还是不错的。

那为什么这间房又要做那么多柜子呢?我说了,这个房间是给老二的,而老二现在还是跟孩子他妈妈睡,起码也是要2年后上小学才考虑分开睡,所以柜子给足了,慢慢透气吧。
黑白配色也很舒服,个人来说也喜欢这类纯色,学习桌是类似设计,也有一些开放格。

30cm的书柜做了aba的搭配,开放格和等待,门板的搭配也是较为合理,右侧考虑用钢琴键挂衣钩,嵌于墙上即可。

最头疼的,大概就是这个飘窗了,全飘确实很好,但是空间利用率总觉得差点意思,但是不做榻榻米依然是好评的。

小贴士:一说到北卧就是各种吐槽,什么冬季温度太低咯,梅雨季太潮湿容易发霉咯,其实真的不用太纠结,就家里老房子的情况一点儿问题都没有,除了空调,关键还有地暖,到季节可以开空调或者地暖来除湿。
其他的空调也基本上是选择卡萨帝1.5P银河,后续安装评测,也会一起发出来,至于成交价格,有兴趣的可以问我,实际上本人是卡萨帝全套冰箱空调。
阳台阳改的一些思路和想法
大阳台是超爱的,整体要8.7m的开间,如果装中央空调两侧和邻居协商敲掉,那全场应该可以突破10m,不过我就算了。

大阳台真的很喜欢,大阳台真的很舒服,但是这个阳台也并非完美。最主要的问题就是要放电器,很多东西都会凸出来,但是我又不希望侵占移门空间,怎么办呢?改。
由于本人是西边户,所以西面都是完美自己的阳台,而西面非承重墙,是陶粒板墙且连保温层厚度达到了26cm(实测)决定拆除后重砌,这样就让出了空间。



如上图,左侧放水池,扫拖一体机,洗地机放树柜里面,树柜里留了检修门让安柏瑞来做,右侧则是洗衣机和烘干机,不过因为考虑评测石头H1,之后在考虑入手一台热泵干衣机,刚好做一下对比横评。
随着时间的推移,个人又在考虑新风机,原因是新房新风虽然可以用,但是实际风量表示担忧,即使换主机也可能存在风管过细,达不到实际要求的问题,所以决定在阳改过程中,预留吊顶管道新风的空间,也是得益于四开间朝南,主卧,南次卧,客厅,书房都是在一侧,让新风机安装变得异常便利。
由于书房和客厅都是开放式的,所以管路只要管老二房和主卧,至于北面的次卧就让开发商安装的新风机解决吧。

全景如下,一台管道新风可以管南面四个房间,相当不错。

最后,再聊一下封窗,因为有过往期原创,这里就不赘述,有兴趣的可以自行观看,这里提到封窗是因为优秀的系统窗可以很好的做到隔音,隔热,气密性极佳,那么新风机放在阳台区域,开放商用的工装窗户就可以直接将空气排出室外,而不用再纠结给系统窗留多少缝隙,是否可以形成正压等等。
同理,如果你能将主卧的封窗也换成密封性能极佳的如安柏瑞系统窗,也是一样的。
总结:记住,最爱这套房子的,是你自己
时常看到一些朋友吐槽,说装修哪里踩坑哪里踩坑,其中踩坑最严重的,恰恰是重要性最大的两个项目,一个是封窗,另一个则是全屋定制,放心,没有一个人能脱得开,也别想着偷懒,你也必须走市场,不断走才能对市场有所了解,一次不够?两次,三次,如果第四次你对品牌选择依然如此,我相信你的眼光。
举个最简单的例子,同样是PTE肤感膜,为什么质感有好有差,质感好的丝般顺滑,而不好的呢?你不去摸一下,你是不知道的。优秀品牌的全屋定制厂家,如柏菲伦用的全都是进口LG肤感膜,在我摸过的里面不算最最顶尖的,但是确实是我体验过的,性价比最高的。
扯得有点远了,就简单说下这自己的这套房子的规划经历,原本有的CAD制图基础确实是帮了我很大的忙,但也正是因为有基础,所以从个人角度来说,更知道CAD入门的难度其实是非常低的,当然如果你没有时间,还是要找一家靠谱的全屋定制厂家来设计,怎么找,找谁,我不敢全盘推荐,除了本人江阴本地的一些全屋定制厂家,个人来说是敢推荐的,当然最终落地是什么效果,本人也还在考虑全盘细节规划,为什么不在文中提及,除了方案特别细节之外,最终效果我也要实际落地后,才敢聊,至少,等等我的效果图出来吧。
关于房子的第三篇,我算是写完了,后面的规划都会跟着一起发布,安心,还有大把的内容等这写,以上皆是本人的实际经历,也算是避坑指南,有需要的也可以咨询我相关事宜,感谢关注。
铭说:文章发布之日,房屋到手之时。