现在很多人家里装修都没请设计师,也没请装修公司,在自己的不懈努力之下,装出的效果不比设计师的差,真的还蛮不错的。
这次给大家分享来自福建泉州这套105平的新房,屋主她家装修不请设计师,也不请装修公司,找了一个清包的施工队,装出了一个简约又实用的家。屋主她参考了很多邻居家的装修,最终选择现代简约风格,她家不要踢脚线,真的非常羡慕,而且设计的客厅电视背景墙很实用,整个空间装修的效果太服气了,不得不羡慕啊!觉得很有参考价值,忍不住给大家分享一下,也希望这样的装修能给大家带来好的装修灵感!(图片原创屋主:往小猫/文字编辑:新家小能手)
户型图

原始户型图
这是宣传的户型图,看着户型非常完美,但是在交房实际测量过程中,发现宣传的户型图有些压缩了尺寸,空间格局是一样的,但是有些面积对不上。基本都是承重墙为主,限制了大改动。

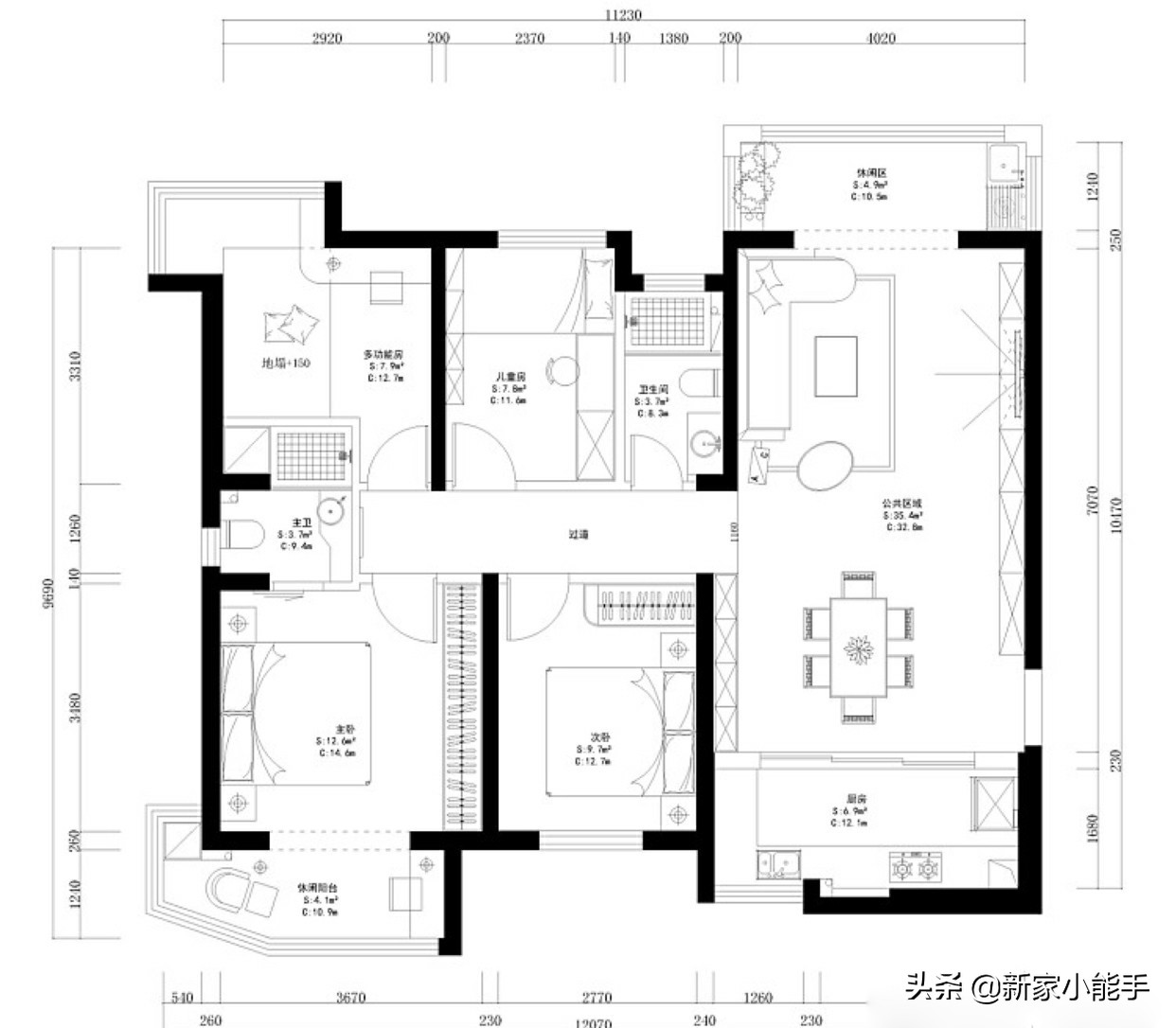
实际测量的户型图
交房后,工人实际测量做出来的户型图,而且一些家具布局的朝向重新安排了位置,相对比较合理。新房套内面积110平,预算本来是要25万,可是实际装修完工全屋加起来一共花了27万多。

灯具的位置
由于没有请设计师,一些灯具的位置只能根据户型图,用手写的方式,标出哪些位置需要安装什么样的灯光,比方说感应灯需要安装在哪里,哪些地方要安装筒灯或者灯带等等,这些都需要考虑清楚。

开关控制面板布置图
根据灯具,也根据以后生活需求,全屋有序安排了开关插座等控制面板,插座宁愿多那么几个,也不要等待以后使用了,才发现插座安排少了。

最后大致的灯具与开关插座等位置都布置好了,她家没请设计师,单单是考虑这些都让屋主她感到头疼,不过很有耐心,尽量把每一步都做好。
入户门口

严格意义来说,进门即是客餐厅,并没有真正意义的玄关。屋主考虑到生活需求,以后一些室内常穿的拖鞋可以有个空间可以收纳,所以大门右边位置,也就是厨房门的左侧位置,设计了一个翻斗鞋柜,宽度只有17公分而已,可以专门放一些室内常穿的鞋子。
厨房

厨房门安装了比较细边框的透明玻璃推拉门,可以站在餐厅的角度看到厨房里面,可以通过厨房给餐厅带来一些采光,觉得还不错。

厨房空间不大,定制了“L”字型白色橱柜,布局比较合理,形成了“洗、切、炒”的顺序。白色的橱柜显得非常干净,漂亮。顶面安装了吊柜,可以提供更充足的储物空间。干净清爽的台面,连厨房都非常舒适。

定制橱柜的时候预留了刚好可以放冰箱的位置,使用非常方便。双开门的大冰箱,可以冷冻很多食品。冰箱与橱柜中间的缝隙,可以收纳放平时炒菜使用的钢挡板,减少台面喷溅的油点。

厨房安装了洗碗机,对于屋主他们家来说,洗碗机非常重要,可以非常方便生活。

为了更多储物空间,方便收纳一些调料,可以看到墙上安装了置物架,都分类收纳起来,使用到的时候非常方便,一目了然。

厨房这边位置可以方便摆放一些小家电,墙上安装了两块隔断,可以摆放一些东西,看着非常整齐,太喜欢了,可以看出来屋主特别喜欢这个家,能把厨房收拾那么干干净净,而且非常实用。
餐厅

定制了上下两层净深有30公分的柜子,中间留空60公分的高度作为饮水区,实用非常方便。空间有限,布置一张黑色大理石方形餐桌,搭配棕色的餐椅,非常漂亮,色调简洁,与整个空间搭配非常协调,她家没请设计师,能装出这样的效果,让人都羡慕。顶面安装的长条吊灯,离地面有两米的高度,不会让人觉得压抑,头顶也没有碰到。

餐边柜中间安装了轨道插座,平时使用的时候可以挪动位置,非常方便。屋主家所有柜子都是定制的,使用白色与黑色搭配,非常耐看,简洁明亮的感觉。
客厅

整个区域非常简洁明亮,顶面放弃了无主灯的设计,两边安装了射灯,晚上可以很方便照明。不过,放弃了以装饰为作用的电视墙,电视墙打满了柜子很实用,没请设计师,能装出这样的效果很服气。

电视背景墙长度为5米,储物空间非常强大,黑色的柜体,搭配白色的柜门,使用一些原木色点缀,美观又实用。电视机中间刚好预留了位置,可以挂电视机,非常有设计感。侧面的角度看着凹凸有致,不会让人觉得压抑。顶面打开射灯,更好衬托美感,晚上照明亮度足够。

电视墙顶面没有打开灯光的效果,类似一面墙的感觉,太舒适了,以后生活过程中,东西再多都能装。

电视墙上可以摆放一些摆件,可以起到很好的装饰,也可以提供蛮不错的储物空间。

安装了灰色窗帘,透光不透人的灰纱,与灰色的布艺沙发相互呼应,加上一盆绿植足够点亮空间。
阳台

阳台这边定制了柜子,烘干机上面留空20公分的位置,可以方便装洗衣球等,拿取的时候不需开柜门非常方便。

左侧竖柜后面其实是水管的管道,空着其实非常影响美观,所以屋主她做了一个小格子可以方便挡住,可以提供一些收纳空间,清洁用品,太实用了。洗手柜下面位置还可以收纳洗衣液等。
过道

我们很多人在新房装修的时候,踢脚线永远是不可缺少的一部分,但是屋主她家新房,不要踢脚线,直接刷了白色的乳胶漆,大白墙的效果非常洁白干净。实在话的,第一次见到她家新房不要踢脚线,装出这样的效果特别服气。墙上挂着黑白挂画,顶面是挖了凹槽,刚好可以安装灯带,足够照明亮度。
老人房

屋主家长辈比较喜欢黑色,选择了实木双人大床,两边床头不对称的灯具设计,恰到好处。墙面是灰色的,灯具选择了金色灯罩,搭配起来更好看。

白色顶天立地的衣柜与黑色大床,加上灰色的墙面与床上四件套,刚好形成了“黑、白、灰”的层次关系。
主卧

放弃了梳妆台,可以有更多位置摆放1.2米的双床,大家请不要误会,选择布置双人床不是感情不好,而是这样更有利于俩人的感情,也更咯与睡眠。

床对面定制了一排白色大衣柜,尺寸为长2.75米*宽3.4米,一眼望去非常喜人,安装了比较短的拉手,效果更好看。其实房间门是挪动了位置,更合适。
主卧卫生间

浴室柜非常喜欢,搭配黑色的水龙头,出水量非常强!

浴淋区,花洒也是黑色的,效果非常抢眼。
公共卫生间

卫生间空间足够,色调也是黑白,做了比较标准的干湿分离,使用非常方便,而且布局特别合理。

安装了柜式镜子,牙膏牙刷等都非常方便收纳起来,白色的卫浴太喜欢了,非常干净,简洁。
次卧

空间非常小,定制了非常实用的榻榻米,榻榻米也是白色的,非常好看。

安装了百叶窗,遮阳效果还不错,显得非常时尚,漂亮。
书房

平时这间房方便在家办公的时候,也方便教家里孩子学习与看书。刚好可以布置一黑一白的椅子。墙上安装了白色轨道的插座,基本家里都是安装这种,特方便使用。
分享到这里就结束了,屋主她家新房不请设计师,也能装出非常让人服气的效果,真心让人羡慕。如果大家能喜欢这样的装修,尤其是不要踢脚线,也跟着装哈。在这里,祝愿屋主一家生活越来越幸福,也希望大家能装出自己满意的家!
#生活日记#