阳光
Sunshine
像一束火苗
It's like a flame
开启了生命之光
Opened the light of life
项目概况
Project overview
项目位置:安徽省
项目名称:阳光幼儿园(原名:亚东幼儿园)
项目类型:幼儿园设计(室内+室外)
设计单位:一格良创儿童空间设计中心
项目范围:幼儿园整体设计(大厅/教室/走廊/教室/多功能室/绘本区/建构室/科学发现室/美工室/木工坊/卫生间/园长办公室/会议室)
建筑面积:1800m²+3000m²
项目概况:幼儿园位于安徽省地区,是一所公办幼儿园,一共有三层,此项目是对该新建的幼儿园进行室内外设计。这个区域属于全国绿化模范区,其绿化率非常之高,因此整所幼儿园设计选用清新简约的风格,与当地自然环境融为一体,活泼清新的色彩让幼儿园如坠落森林之中的一颗明珠,光彩夺目。室内设计主要用原木色、清新绿和温馨蓝,给孩子带来温馨的同时,渲染不同主题的教育功能取。
原始建筑

初期洽谈与后期回访

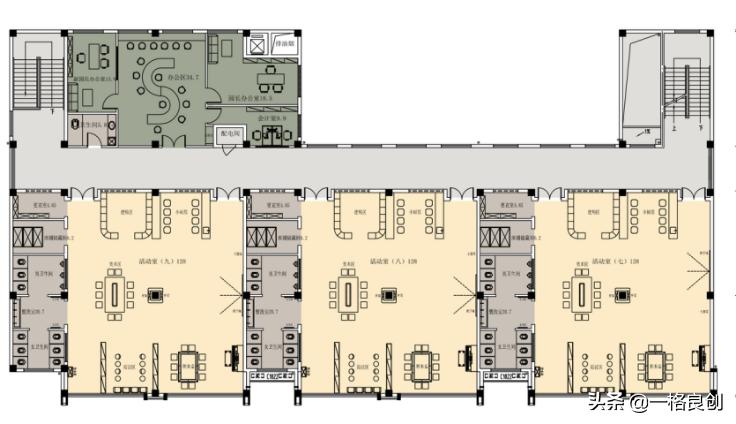
#平面布置图#

#建筑外观#

设计师将温柔的红色在点缀在绿色海洋之中,犹如一朵绽放的生命之花,撩拨着孩子心中那份对生活的热情。
The designer embellishes the gentle red in the green ocean, like a blooming flower of life, titillating the enthusiasm for life in the child's heart.
在室外,孩子们可以进一步了解自然、热爱自然、探索自然,最后学会保护自然。
Outside, children can further understand nature, love nature, explore nature, and finally learn to protect nature.
塑胶跑道与石板路相连接,拥抱着整个教学楼;在草地上放置石桌石凳,可以让孩子随时休息;还有藏在树丛中的小丘,在上面架起一个大型玩具设备,让孩子在自然中畅玩。
The plastic runway is connected to the slate road, hugging the whole teaching building; placing stone tables and stools on the grass to allow children to rest at any time; and small hills hidden in the trees to set up a large toy equipment on it. Let the child play in nature.
#大厅#

扑面而来的绿色,如沐春风;原木色的渲染,让人如置身在自然之中。
The green, like a spring breeze; the rendering of the original wood color, let people in nature.
从室外到室内,衔接的毫无违和感。
From outdoor to indoor, the connection is not contrary to the feeling.
#绘本区#

设计师将门洞造型应用于绘本架,一个正向,一个反向,意在打破惯有思维,让孩子从环境中得到更多启发;弧形地面,让空间充满童趣,中间的绿色圆形排座,吸引孩子拿着绘本前来入座,圆圆的造型,让孩子们感受团结合作的力量。
The designer applies the door shape to the picture frame, a forward, a reverse, intended to break the habit of thinking, let the child get more inspiration from the environment; arc the ground, let the space full of childlike fun, the middle of the green round seat, Attract children with picture books.
#美工室#

将天花板做成格子间,在每一个格子里面放置一种艺术,抬头间即可获取灵感。墙面上的圆圈、门洞、屋顶造型都是孩子们开启艺术之旅的第一步。
Make the ceiling into a cubicle, place an art in each lattice, and look up to get inspiration. The circles, doors and roofs on the walls are the first steps for children to start their art journey.
#教室#

温馨的绿色与原木色搭配,可以让充满活力的孩子平缓激动的情绪,专心跟着老师的引导进入学习时光。教室中央设计一根顶天立地的置物柱,用来放置水杯和物品,也能让空间更加立体化。
Warm green and log color match, can let the energetic child put away the excited mood, attentively follow the teacher's step into the study time. The classroom is designed to place water cups and objects to make the space more three-dimensional.
#科发室#

睿智的蓝色与干净的白色让科学发现室充满了该有的冷静与智慧,造型丰富的桌面都是让孩子接近科学的“领路人”,将整个天空放在头顶,仰望星河,就是梦开始的地方。
The wise blue and clean white make the scientific discovery room full of calm and wisdom. The rich tabletop is the "guide" that keeps the child close to science, puts the whole sky overhead, looks up at the stars, and is the place where the dream begins.
#建构室#

原木色的地板,清新绿的墙面,房屋形状的造型,大大的视觉之窗,都将是孩子建构的动力源泉,因为最好的创意来源于生活,源于自然。
The original wood floor, the fresh green wall, the shape of the house, the big visual window, will be the motive source of the child's construction, because the best creativity comes from life.
环境,可以帮助孩子成为天才,也能让孩子错失发展的机会。专业的儿童空间设计,会把利于孩子成长的元素放在身边,让其触目可及,也可以把它藏在空间,循循善诱,让其主动探索其中的奥秘。
声明:设计思路、图片、文字版权均为一格良创儿童空间设计中心所有,未经授权,不得转载、修改、使用,一经发现,追究相关法律责任。