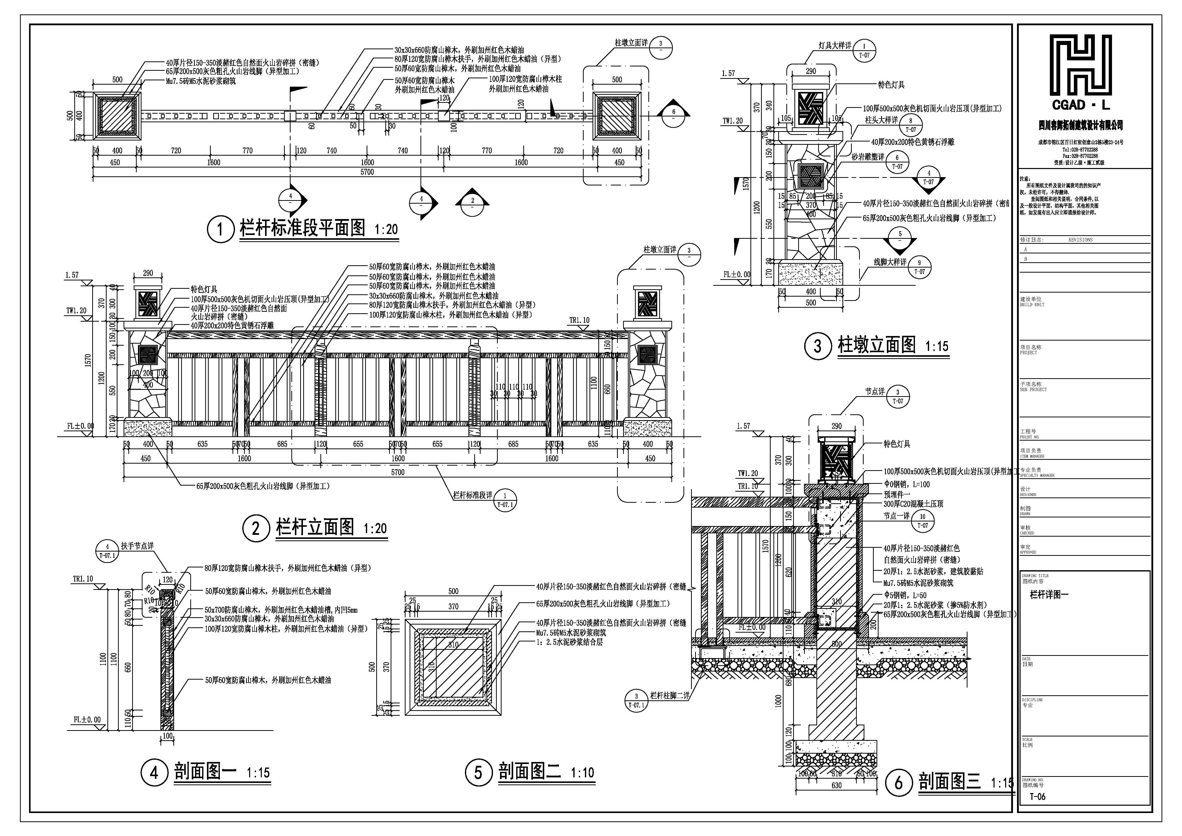
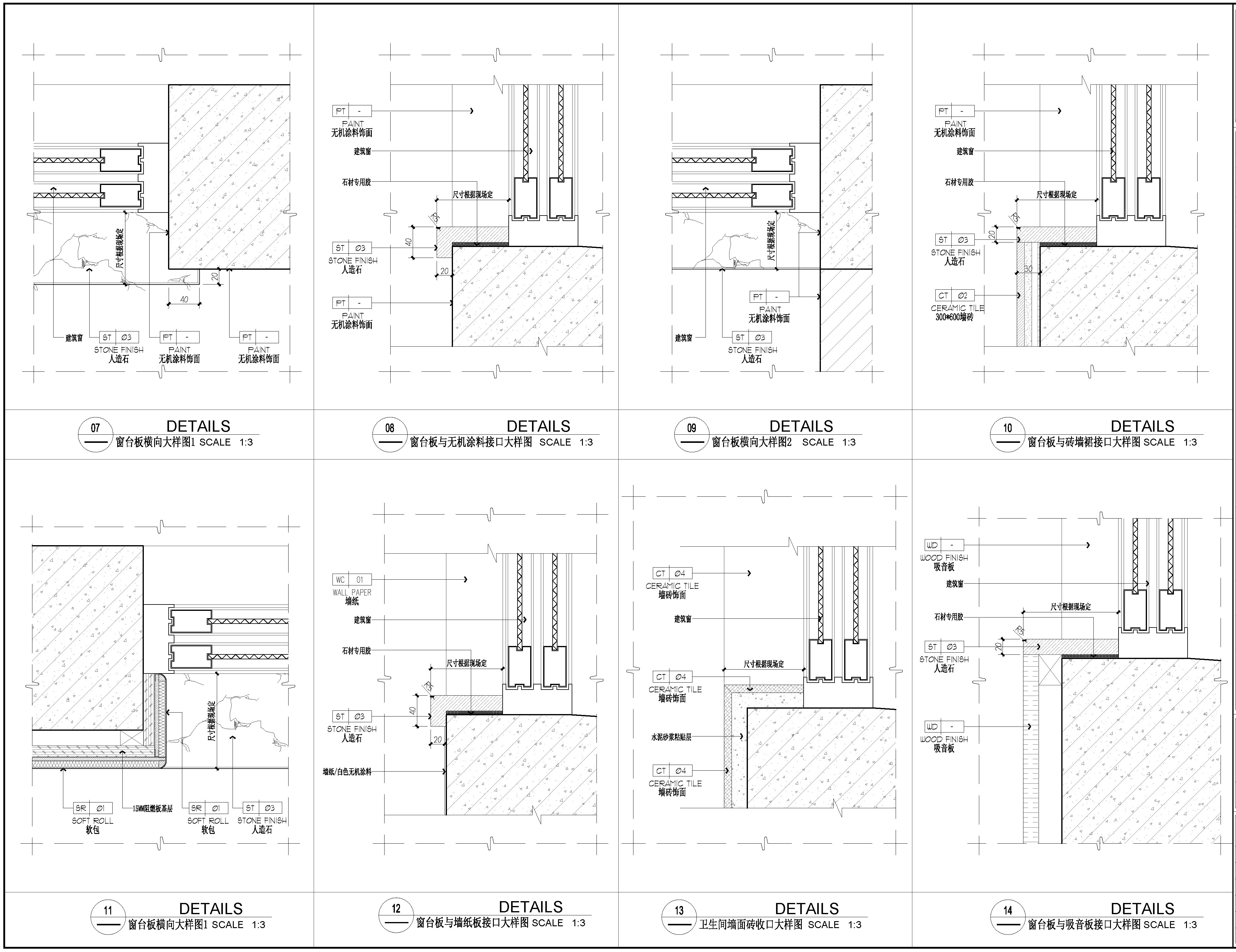
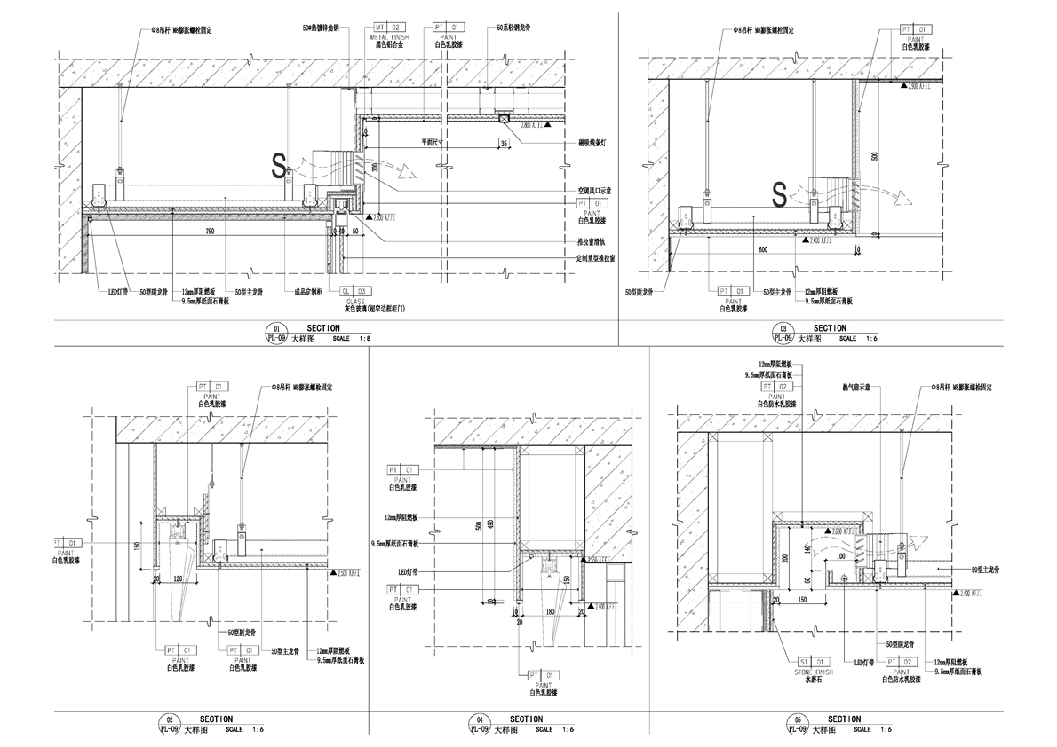
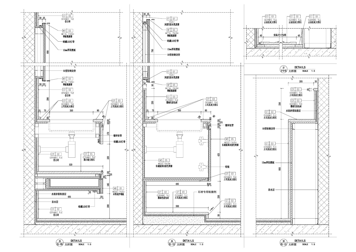
我们是专业施工图深化设计公司,承接各类施工图深化设计,提供设计资质签章,设计投标,业务范围:装饰施工图、建筑施工图、景观施工图、消防设计、暖通设计、系统图设计、钢结构设计
施工图的要点包括以下几个方面:
1. 准确性:施工图应该准确地反映设计意图和细节,包括尺寸、比例、位置、材料等方面的信息。

2. 可读性:施工图应该清晰、简洁、易懂,以便施工人员能够准确理解和执行。

3. 完整性:施工图应该包括所有必要的信息,如建筑结构、电气、给排水、暖通空调等方面的设计。

4. 一致性:施工图应该与其他设计文件(如方案设计、初步设计)保持一致,以确保整个项目的设计一致性。

5. 可操作性:施工图应该考虑施工的实际情况,包括施工工艺、施工顺序、安全措施等,以确保施工的顺利进行。

6. 审核和批准:施工图应该经过专业人士的审核和批准,以确保其符合相关的法规和标准。

7. 更新和修改:在施工过程中,如果需要对施工图进行更新或修改,应该及时进行,并确保施工人员得到最新的图纸。
这些要点是保证施工图质量的关键,也是保证施工质量和进度的重要因素。
