房产君这两天,给一位中介疯狂轰炸。
“番禺大学城70年产权公寓”,“首付5万起”,“收租3500+”...
这每一个字眼,那叫一个热血沸腾!

项目背景
该公寓项目叫做”学畔公馆“,所在地块为市头村暨南大学留用地,是番禺区首个村留用地叠加安置房开发的项目。
据了解,市头村暨大留用地于2012年批出规划条件为村经济发展用地,容积率为1.8,可建设用地面积为53310㎡。
2013年地块控规进行了调整,容积率从1.8变成2.8,这就意味着可以建的房子变多了,多出来的这部分,就用来安置南大干线项目和思科二期项目的市头村村民。
项目于2017年8月开始动工

至于学畔公馆为什么能有70年产权,也和地块性质有关。
据现场销售解释,该地块性质是属于政府划拨用地,因此并没有使用年限的限制,就将公寓产品做到了70年的使用权限,在广州很难找到第二个。
但这样的公寓能买吗?咱们继续往下看。
项目的基本信息
学畔公馆位于番禺兴业大道东,在暨南大学番禺校区和华南理工大学国际校区中间,距离地铁4号线新造站步行约2.7公里。
据了解,项目占地约5.9万㎡,建筑面积约19万㎡,共规划有3栋住宅和4栋20层高的公寓楼。
其中3栋住宅以及2栋公寓均属于回迁房,1栋公寓楼为开发商自持做酒店,对外出售的,只有4#公寓的上半部分楼层,至于下半部分的楼层,则是作为暨南大学的教职工宿舍。
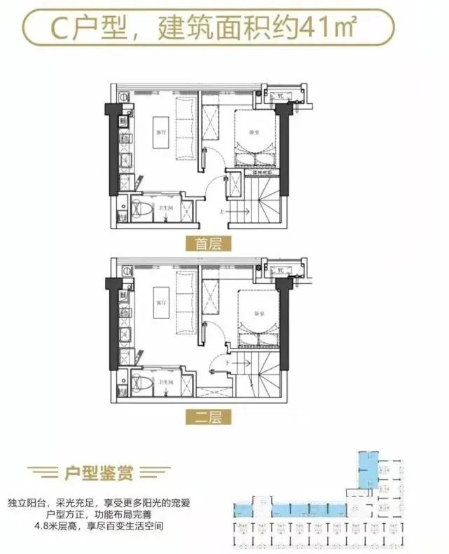
项目在售产品为建面约32-64㎡平层及复式公寓,层高为4.8米,三梯31户,户型图如下。





价格的话呢,平层公寓均价在1.2万/㎡左右,复式公寓均价在2.1万/㎡左右,可以选择毛坯交付或者带装修,价格相差约2000元/㎡。
付款方式,可以选择一次性付款或者是采用开发商提供的免息分期方案。
首付和普通公寓一样,需要给总房款的5成,剩下5成房款进行3年分期,按季度将分期房款给到开发商。
但是这个分期是有条件的,需要在购房当天交5万定金,然后在3天内进行签约并交齐首付。
了解完项目信息之后,房产君便问销售:你们在宣传单中说公寓拥有70年产权,那是可以办理产权证吗?
“当然是可以的,你现在和我们买,签的是‘物业使用权转让合同‘,等签约收楼之后,只要你补齐相关税费,就可以办理产权证了。”
图片截自项目资料
风险提示!入手需谨慎!
这么便宜、诱人,看起来似乎没有任何问题的项目,到底有没有风险的!为此,房产君特地找到了专业律师进行咨询。
一、说到底,该项目卖的还是使用权公寓。
首先,这个公寓实质上并不是一种买卖,而是一种使用权转让,即长期租赁,且文件中开发商提供的也是首期20年的租金发票。

图片截自项目资料
这里就有一个风险。
第一个20年有合同约定,受到法律保护,后面的20年甚至更长时间需要重新签订使用权转让合同,但20年后开发商是否还存续?价格是否会变更?都是不确定因素。
二、是可以补交出让金来改变土地性质,但政府会不会改变,具有不确定因素!
政府划拨项目,可以交出让金改变土地性质,但是项目本身是用来盖保障房保障民生的,后面政府会不会改变性质,这是个不确定因素。
至于该项目到底能不能买,如果你能接受没有房产证,也不介意项目可能因工程拖延、开发商因经营不善,项目失败,资金流失,无法继续开发建设公寓项目等一系列原因导致的超出部分租金无法退还,维权无门等情况的话,那你就买吧!
最后,我想和大家说几句话
使用权公寓,我看过不少,也陷入过思考,到底能不能买?
我和大多数人一样,是一个三无(无房无车无存款)的广漂,梦想着未来在广州能有一套属于自己的房子,可广州的房价有多高,相信大家也都知道。

刚开始我的想法,就是想买一套公寓来自住过渡一下,未来有了钱再去置换住宅。
于是,这种便宜,未来交易又不需要税的使用权公寓,似乎成为了我们的福音。
靠出租来获取收益,那么你可以算一下,多少年你才能赚回本钱。
最后,如果还有疑问请在下方留言或者后台私信我哟
