分享一对中年夫妻的家,那叫一个高级,年过60也要过得“逍遥”
每一段人生经历都是非常丰富的财富,20岁的年轻男女向往着更加美好的未来,经过成家立业困扰的30岁的青年再回望过往总是会充满着遗憾,步入中年以后对于过往的岁月都有着不同的理解和新的感受,也开始真正的学会静下来去享受生活,无论是困难还是挑战,都去尽力地接受。
该案例的业主就是这样一对年过60的中年夫妻 ,儿女都已经有了属于自己的小家,这对夫妻也终于可以真正的放下心来过过自己的小日子,在远离都市的乡村中,在面积不大的小家里,去体会真正属于他们的人生。

房屋户型:两室
房屋面积:50平方米
装修预算:20万
设计师:李文伟
主要建材:铁件、石材、人造石、系统柜、木作、油漆、玻璃、仿清水模漆

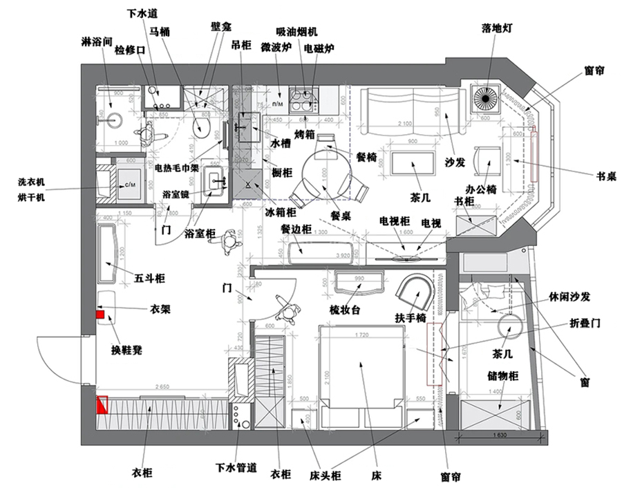
【户型图】

全屋的面积一共是50平方,户型结构上相对比较规整,造型感也非常的强烈,不存在空间死角,改造起来难度也不大。

改造后从玄关区就给人一种非常明亮的视觉感,餐厨区和客厅则是紧凑的一体化空间,有效地节省空间面积,大大提升使用性能,主要的休息区还保留了一个明亮的阳台,提升居住的舒适感。全屋的家具风格偏向于比较复古的风格,色彩的搭配上也比较传统,打造出将传统和现代结合起来的家居环境。

【玄关】


设计重点:老家具换新生
全屋的很多家具都是之前的老家具经过重新打磨包装之后二次利用的,充满了业主的回忆,也和全屋的风格非常贴合。因为业主不喜欢过于华丽浮夸的色彩和装饰,更喜欢深色系的组合搭配,所以在入户口就选择了带有复古情怀的深色木质收纳架,给业主带来浓郁的温馨气息。

衣柜选择了玻璃门作为柜门,避免影响外观上的精致,也能够和玄关形成相互呼应的美感。在网上挑选的图片打印出来做成画框,作为空间的装饰品成本低效果好。
【客厅】


设计重点:一张沙发一台电视带来的家居体验
考虑到业主两个人不喜欢复杂的空间风格,所以客厅只是简单地布置,两人坐沙发和轻薄的电视就构成了全部,丝绒材质的紫色沙发十分的有质感,让客厅也变得更加俏皮。

客厅阳台摆放一张可以随时移动的书桌,方便业主做手工或者是看书,电视柜则是现场定制的原木柜子可以收纳一定的杂物,避免给空间带来笨重感
【卫生间】
设计重点:水泥墙面赋予空间原始质感
卫生间选择了灰色和原木色勾勒出干净整洁的使用空间,视觉效果非常的惊艳,壁龛可以用来收纳整理卫生间杂物,木格栅的柜门后方是专门打造的洗衣区,让空间相互独立互不干扰。
【厨房】
设计重点:三重色系打造一种体验
厨房选择了灰色木色和白色作为空间的组合色系,凸显出烹饪区的格调大气感,L型走向的橱柜不论是烹饪还是收纳都更加的自然,为了避免深灰色带来的压力感,设计师还选择了原木色暖白色做点缀,让厨房既有高颜值又有强大的使用功能。
【卧室】

设计重点:深浅搭配解锁空间的协调美感
卧室十分的干练和清新,黑色衣柜白色寝具,打造出极简的空间氛围,床头的多彩挂画丰富了卧室的色系,搭配空间产生单一感。


对称的床头灯让空间充满了协调的美感,卧室阳台打造成业主夫妻两个人的休闲空间,夜晚两个人可以坐在沙发上,聊聊往事,聊聊孩子。
【餐厅】

设计重点:空间张力感十足
餐厅的设计非常灵活,突破传统封闭式框架,而是将餐桌放在正中间,餐椅紧密地围绕在餐桌旁边,即使两个人吃饭也能感受到满满的温馨气息。

60岁之后的人生应该更加的丰富,和爱的人携手一起走向更加美好的未来。
【图片若有侵权,麻烦私信删稿】