银川市第二人民医院作为我市一所集医疗、科研、教学、急诊急救、预防保健于一体的综合性三级甲等医院,是我市可靠的医疗保障力量。
在本次的公示里,第二人民医院规划进行改扩建,具体的改扩建项目规划快来一起看看吧。
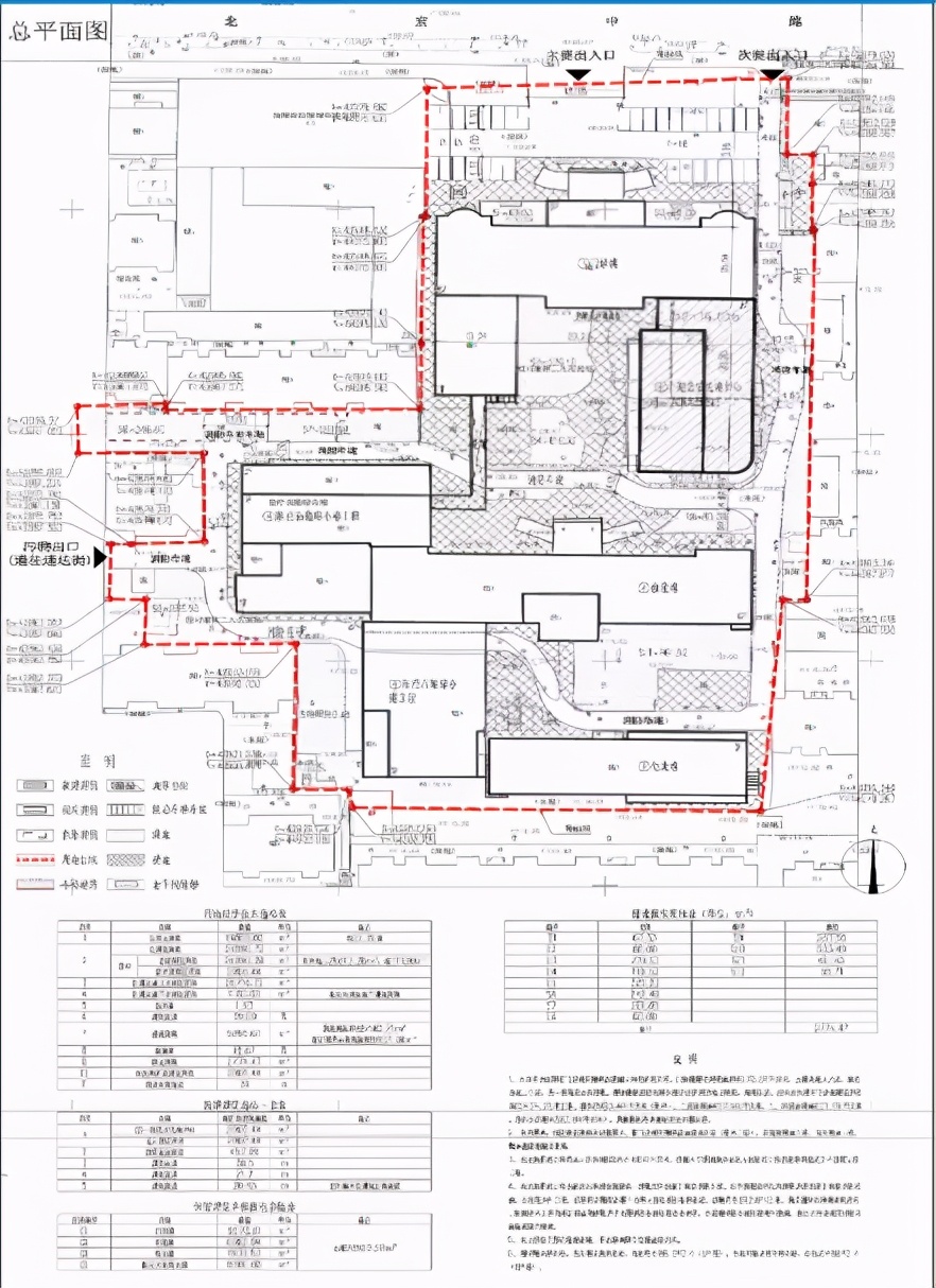
项目概况:

银川市第二人民医院应急能力提升及急诊急救中心改扩建项目(一期急诊急救中心建设工程)项目位于金凤区北京中路以南、通达街以东,银川市第二人民医院院内。
用地面积14860. 02平方米(22.29亩),总建筑面积29896. 72平方米,其中地上28716.72平方米,地下1180平方米,此次改扩建地上建筑面积2903.44平方米,容积率1.93,建筑密度39. 69%,绿地率18. 67%,地上机动车停车位39个。
建设内容:
该项目规划拟建1栋4层高20.45米的一-期急诊急救中心。

近些年,新城各大配套已经趋于成熟,随着此次第二人民医院医疗配套的扩建,区域配套再度加筹加码。
加上高铁的开通,人流增加,虹吸效果显著。区域热度会越来越高,更多人的居住新选择。
如对此规划方案有异议,可在7个工作日内向公示单位提出听证申请。
建设单位:银川市第二人民医院
设计单位:宁夏建筑设计研究院有限公司.
项目地址:金凤区北京中路以南、通达街以东,银川市第二人民医院院内
公示单位:银川市自然资源局
来源:搜狐焦点银川站