回老家自建房,我准备了6套25万起建的别墅图纸,有中式有欧式,不同的外观设计、室内布局,大家觉得哪套最实用呢?
第1套:12×13米简约风格别墅,极简外观+双露台,毛坯造价22-25万
图纸编号:ZJ-0909
占地尺寸:13.1m*12.63m
占地面积:100㎡
建筑面积:227㎡
总 高 度:8.9m
建筑情况:共设4室 2厅 2卫 1厨 1衣帽间 1门廊 2露台

简约的别墅外观非常适合农村建造,没有太大的施工难度,外墙采用真石漆,普通涂料装饰皆可,出去窗套线外没有其他装饰,能更好的控制房屋造价。


第2套:12×13米田园风,厨房另设+多入户门,毛坯造价25-30万
图纸编号:ZJ-0919
占地尺寸:13m*12m
占地面积:155㎡
建筑面积:277㎡
总 高 度:9.2m
建筑情况:共设6室 3厅 4卫 1衣帽间 1阳台 1露台 1门廊

这套别墅外观更具有田园风范,外墙下部铺贴一层文化石,其余则安装外墙挂板,搭配红色坡屋顶,整体洋溢着田园别墅特有的温馨美感。不同于其他户型,这套室内并未设计厨房,主要考虑到农村生活习惯使用柴火房,若宅基地足够或老房未拆,厨房餐厅可另外布置,保持室内整洁。


第3套:9×14米新中式美墅,入户堂屋+干湿分离公卫,毛坯造价25-30万
图纸编号:ZJ-0905
占地尺寸:14.4m*9.9m
占地面积:143㎡
建筑面积:269㎡
总 高 度:8m
建筑情况:共设4室 2厅 4卫 1厨 1堂屋 1茶室 1储物间 1起居室 1棋牌室 1外走廊

回农村老家盖一栋中式小院养老,是多少农村人的梦想,但受限于高昂的造价,很多人的心中不能实现。这套新中式风格住宅外观传承了中式传统的素墙黛瓦,雕花装饰,虎头古门,朝门牌匾,令人倾心。


第4套:10×17米双拼别墅,单独入户+朝南卧室,毛坯造价20-25万(单户)
图纸编号:ZJ-0926
占地尺寸:17.4m*10.5m
占地面积:200㎡
建筑面积:390.84㎡
总 高 度:11.5m
建筑情况:共设6室 4厅 4卫 2厨 2起居室 4洗衣房 2阳台 2露台

若兄弟也有建房意愿,那么一起建栋双拼别墅是再好不过了。一是双拼别墅外观看起来更大气,对称造型也符合传统审美。二是建房过程两家互相帮助,也可以节省建房花费。虽是双拼别墅,但这套户型单独入户,除楼梯共用,其他空间均不共用,保证了生活的隐私。


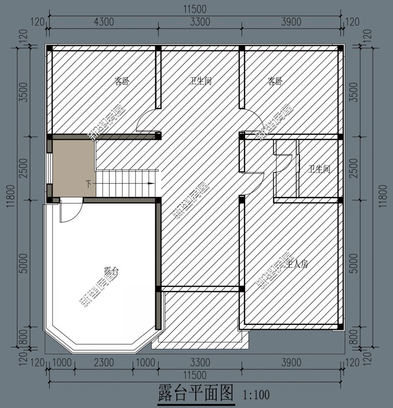
第5套:11×11米欧式别墅,占地方正+无障碍坡道+挑空客厅,毛坯造价25-30万
图纸编号:ZJ-0807
占地尺寸:11.5m*11.8m
占地面积:133.21㎡
建筑面积:241.19㎡
总 高 度:9.4m
建筑情况:共设5室 2厅 3卫 1厨 1杂物间 1玄关 1起居室 1阳台 1露台

回农村建房,很大一部分人不是为了父母养老,就是为了自己养老,考虑到人老后腿脚不便,设计师在这栋别墅的西立面设计一个无障碍坡道,充分体现了设计细节,也是最有人性化的设计。



第6套:12×12米新中式简约小墅,多卧室+后院设计,毛坯造价25-30万
图纸编号:ZJ-0870
占地尺寸:12m*12.2m
占地面积:145㎡
建筑面积:280㎡
总 高 度:7.4m
建筑情况:共设5室 2厅 4卫 1厨 1储物间 1起居室 1书房 1棋牌室 3阳台 1后院

这套新中式别墅布置一个前坪与后院,方便农村日常晾晒谷物、种植花草。由于是定制设计图纸,所以这套户型的布局和其他也有所不同,入户设计为厨房餐厅,而将客厅和老人房布置在后院,这样日常起居也能欣赏到后院美景,岂不美哉!


3套25万起建的农村别墅,你会选择哪套呢?
关注新型房屋,更多农村别墅图纸。