说到地暖,想必大家已经不再陌生了,因为大多数家庭冬天的取暖方式基本上已经采用了地暖的形式。但一说到地暖大家的第一反应可能就是传统的湿式地暖,其实由于不同开发商不同项目对于项目品质的不同需求,以及家装业的发展,干式地暖也越来越得到广泛的应用。

湿式地暖

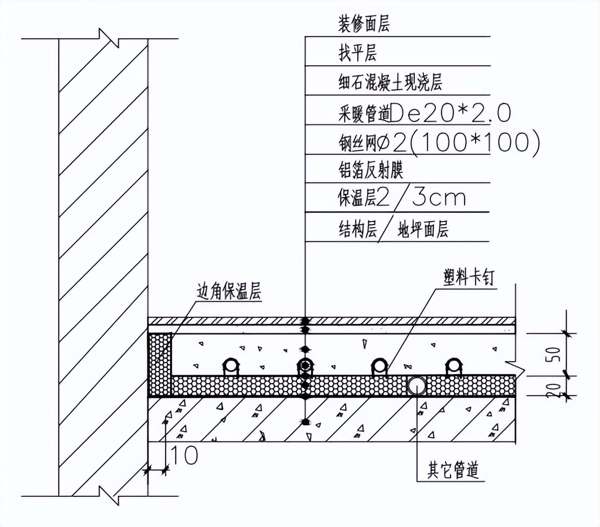
干式地暖
干式地暖就是采用沟槽保温板地暖模块欠管的固定方式,不需要水泥进行回填;而湿式地暖是使用普通保温板卡管固定的方式需要使用水泥进行回填。
通俗来讲,两种地暖形式最大的区别即是无需回填,但是两种地暖的热源(锅炉或者热泵)、分集水器、温控部分以及地面层是相同的,仅施工做法不同。以下主要从构造、施工周期、对土建影响以及成本四个方面对两种不同地暖形式进行对比分析。
01
构造厚度
这点不同应该是很多人比较在意的,由于构造层的不同,两者在总厚度上相差在5cm左右,针对不同的项目定位以及家装的需求,这几公分的需求还是比较迫切的。
湿式地暖是水暖型地暖最为成熟的安装工艺,是混泥土填充式地暖的简称,含面层总成厚度标准9-11cm。价格相对较为低廉,是国内地暖市场的主导工艺。所谓湿式,就是指用混凝土把地暖管道包埋起来,然后在混凝土层之上再铺设地面、瓷砖等地面材料。这层混凝土不仅起到保护、固定水暖管道的作用,还是传递热量的主要渠道。混凝土层能够使热量均匀分布,减少出现局部过热或过冷的情况。用于进户门槛设计较高、需要长时间开地暖的连续供暖场合。

对于湿式地暖的铺装结构图基本都是这种的形式,也是目前市场流行最多的一种铺装方式。那么,另外一种湿式地暖叫做模块湿式地暖,也就是由工厂加工成固定的模块,现场拼装,再将地暖管道盘进固定的模块之中,我们一般称这种模块式保温板为蘑菇板。

干式地暖和一般的传统地暖相比,具有运输方便、拼装便捷、损耗低、不用卡钉、不破坏保温层的、操作简单、一人便可安装的特点;总厚度在3.5cm左右。

这类地暖一般在预制沟槽板上直接铺装木地板比较多,无需回填层湿作业(常见采用铝片金属均热层代替湿作业的水暖砂浆回填层),这也是大家喜欢叫“干式地暖”的原因。因施工周期短、安装便捷、安装高度低,对结构荷载低等特点,还是不少用户选择此类地暖。
由于构造层厚度的不同,从而导致施工周期、建造成本等的不同。
02
施工周期
湿法地暖由于需要浇筑混凝土保护层,保护层需要养护时间,干法地暖直接在地暖板上铺设,不需要养护,从而提高了施工速度。据统计,针对两梯四户,层高20层,总建筑面积5000㎡左右的住宅,干式地暖可以节约施工周期1.5天/层,而且干式地暖施工时间不受季节的限制,可以将地暖施工整合到装修地面做法中,使得土建移交精装修时间大大提前,这个时间对于施工单位来说,人力等各项隐性成本还是比较大的。
03
土建影响
干式地暖轻质、隔声、高强、节省层高、节能、升温快,在项目设计阶段,可以节约降板,增加室内层高,降低结构荷载,从而节约土建造价成本。根据《装配式建筑评价标准》GB/T 51129-2017评分标准,干式工法的楼面、地面加6分,管线分离加4-6分!干式地暖以较低的成本实现了装配率的增加,这是干式地暖在装配式建筑大有作为原因所在。对于一些装配式得分不够的精装项目,可以采用干法地暖,降低采用其它形式装配式得分的费用。

04
成本
这点应该是很多开发商和业主比较关注的,成本对比在大规模应用和家装上应用有很大的不同,不能仅从建造成本上分析,还要综合考虑后期使用过程中涉及的成本,一些隐性的成本等。
传统湿法地暖技术较成熟,经历了长期和大量的项目检验,但是构造厚度大,荷载大,施工周期相对较长;干法地暖荷载小,施工周期快,大多应用于对吊顶层高有要求的建筑中或大型工程项目之中以及高档别墅等等,相比湿式地暖,初投资较高一些,但同时也节省了回填费用,节省土建成本。性价比相比湿式地暖要高一些。
两种地暖形式都有各自的优缺点,针对不同项目可以进行比选,业主可以根据自己的预算和家里的需求来选择不同款式的地暖,但是不管选择哪一种,对于施工工艺都要进行严格的把控,减少后期不必要的麻烦。
END