
厨房的烹饪区一般布置有油烟机,油烟机的安装高度也应符合人体工程学的尺寸设计。下面由华建工艺学会、华建环境设计研究所为大家讲解下厨房油烟机的尺寸设计!
▷目录
1、顶吸式油烟机
2、侧吸式油烟机
3、集成灶油烟机
1. 顶吸式油烟机
顶吸式油烟机的尺寸宜为:
长(700~900) mm× 高 500 mm;
顶吸式油烟机的底部距离橱柜台面宜为 700~800 mm 。
(一)顶 吸 式 油 烟 机 正 立 面 尺 寸:

(二)顶 吸 式 油 烟 机 正 立 面 放 大 图:

(三)顶 吸 式 油 烟 机 侧 立 面 尺 寸:

(四)顶 吸 式 油 烟 机 侧 实 际 尺 寸 与 安 装:
下图为市场上某品牌的顶吸式抽烟机尺寸与安装图:

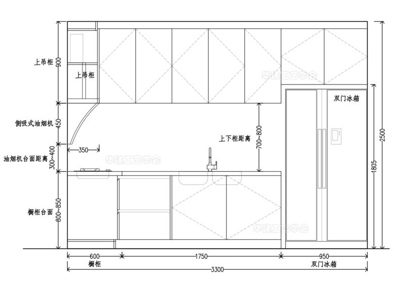
2. 侧吸式油烟机
侧吸式油烟机尺寸:
长(700~900)mm× 高 500 mm;
侧吸式油烟机的底部距离橱柜台面宜为 300~400 mm。
(一)侧 吸 式 油 烟 机 正 立 面 尺 寸:

(二)侧 吸 式 油 烟 机 正 立 面 放 大 图:

(三)侧 吸 式 油 烟 机 侧 立 面 尺 寸:

(四)侧 吸 式 油 烟 机 侧 实 际 尺 寸 与 安 装:
下图为市场上某品牌的侧吸式抽烟机尺寸与安装图:

3. 集成灶油烟机
集成灶油烟机的尺寸宜为:
长 700~900 mm、宽 600 mm、高 1280~1300 mm。
集成灶油烟机的顶部距离橱柜台面宜为 300~320 mm。
(一)集 成 灶 油 烟 机 正 立 面 尺 寸:

(二)集 成 灶 油 烟 机 正 立 面 放 大 图:

(三)集 成 灶 油 烟 机 侧 立 面 尺 寸:

(四)集 成 灶 油 烟 机 侧 实 际 尺 寸 与 安 装:
下图为市场上某品牌的集成灶抽烟机尺寸与安装图:

以上为本章节的全部内容,主要是讲解了厨房抽烟机的尺寸指引,大家可以参考文章设计合理的厨房油烟机高度尺寸。
本文编写单位
华建环境设计研究所编写
编辑:梁薇
图片:苏韵涛
审校:廖炽伟、范丝燕
发布于2021年3月
“厨房抽烟机尺寸指引!HJSJ-2022”
文案由华建工艺学会的团队发布
主要面向学生
由于文案的教学特点
它的内容可以自由复制、打印和分发
禁止商业用途
往 期 精 彩
Past pure color
↓↓
厨房取物尺寸指引!HJSJ-2022

更多设计看点→点击关注华建环境设计研究所
