“老钱风”,在近一两年可以说风靡了全网。那么在奶油风、中古风、侘寂风还意犹未尽的时候,这个在家居圈突然卷起来的“老钱风”,到底是一种怎样的风格呢?
其实所谓的“老钱风”,应不止于外在体现,更显内在的慵懒与松弛,让全屋都有一种低调、贵气、多金的质感。简单理解,就是一看就很贵。
本期带来的就是一套简化版的“老钱风”案例,不追求时尚潮流,一身从自身审美出发,再结合不同的元素混搭,打造出专属于屋主的【东方美学】。
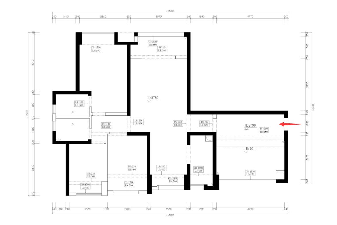
平面结构图

本案坐标厦门,面积135㎡,屋主是一对年轻夫妇。原户型为四居室格局,结构上也并没有比较大的硬伤。所以在整体设计上,就将重点放在了空间功能整合优化上,使其更加符合屋主的在居住需求,并保留下更多的弹性。
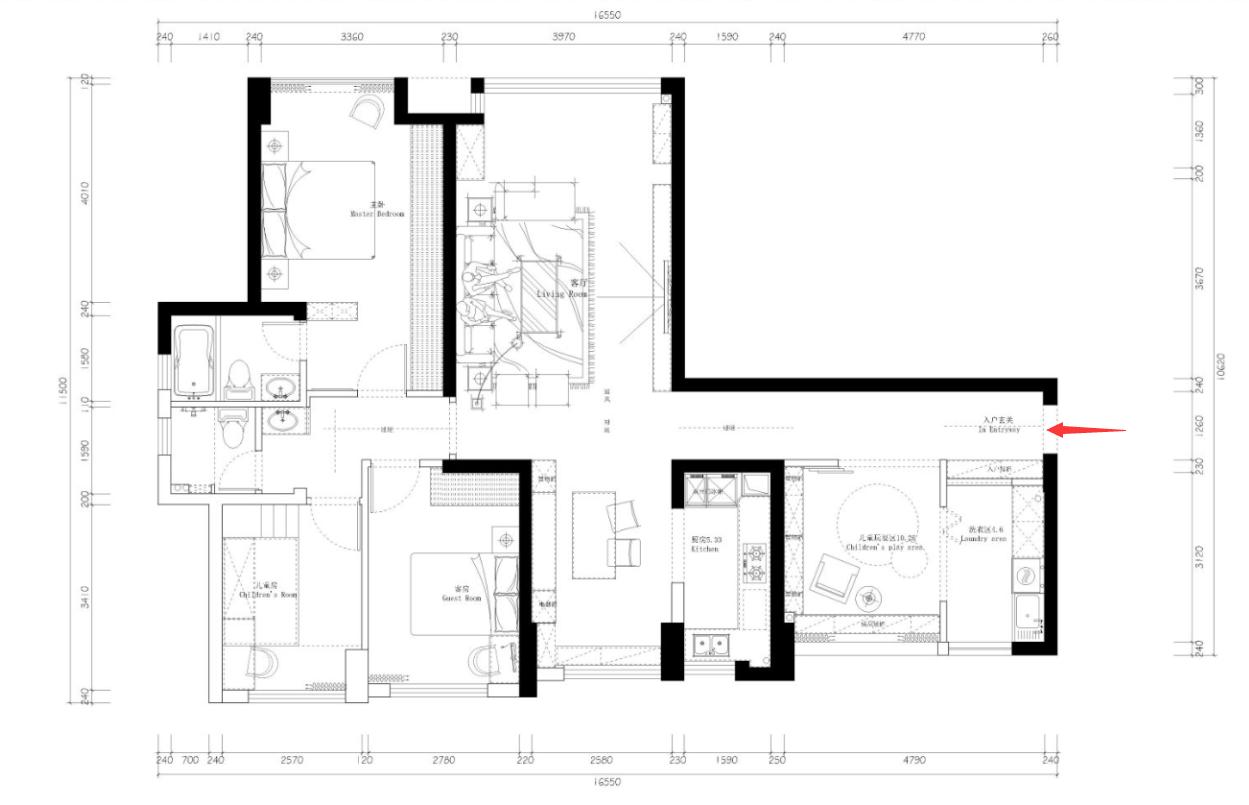
平面方案图

改造亮点:
1、入户花园一分为二,延伸出书房和家政间。
2、南阳台纳入室内,进一步拓展客厅的使用面积。
3、主卧门洞平移,让内部面积能得到合理利用。
4、次卫干湿分离,增加生活效率。
玄关

当原有的入户花园一分为二之后,进门也自然形成了一个玄关过道。鞋柜以隔断的方式设计在进门一侧,看似影响了玄关区的采光,但半开放式的书房,以及柜体中间的镂空+长虹玻璃处理,却也有效引入了光线。
考虑到鞋柜饰面为胡桃木色,入户门也延用了这种饰面,一来可以让空间整体感更强,二来搭配上白墙后,也让空间有了不错的开阔感。

进门第一视角,考虑到过道比较狭长,利用拱形元素来分割空间,既在视觉上保留下了通透性,又在其它元素的衬托下,让空间丰富了许多。
客厅

客厅在原有的空间基础上,纳入了外面阳台的面积,进一步拓展了空间的使用面积,让视觉表现更加大气。而打破常规的围合式沙发布局,也在优化生活动线的同时,给了彼此更好的交流沟通。
空间色调这块,运用了大量深色的元素,尤其是不同的木饰面材质,更是衬托起了复古知性的居家氛围,使空间在富有的质感下有了生活的沉淀。

阳台摆放了一张大尺寸的中古书桌,可以办公写字,可以用餐喝茶,功能性十分灵活,且与低调华丽的中式花纹地毯做到了相融。
侧面一组黑色的吧台柜设计,则有效缩短了生活动线距离。这样即便是在客厅活动,也可以快速饮水,冲咖啡,让生活更有质量。

原有的沙发墙用暖白色打底,再安装上经典大方格造型的PU线条,以及搭配一个黑色的壁炉,立马就让空间有了一丝肃穆大气的腔调。同时,一幅极具中式韵味的装饰画,又再次与整体做到了交织相融。

电视墙这一面刷上了暖咖色的涂料,一来给予了空间更多的沉淀,二来也衬托起了各种软装元素,让空间彰显出了一种独有的东方美学。

餐厅

来到餐厅,拆掉原有了飘窗台,并设计一个西厨区,不仅收纳力很强,也方便了早起的简餐制作。而复古的哑光黑饰面,也与客厅保持了统一,让空间看起来更加高级有质感。

餐桌做了卡座设计,虽说少了一些灵活性,但实用性却更强,且在温暖的灯光烘托下,更有了一种用餐仪式感。
除此之外,墙面刷上复古绿涂料,再点缀一幅中式元素的装饰画,立马就让空间在低调内敛中,彰显出了视觉美学。

西厨区的存在,极大缓解了厨房的空间压力,并且满足了餐厅展示和收纳的不同需求。
厨房

在有西厨区的情况下,厨房保留了移门隔断,避免油烟外溢。同时,黑框+冰花玻璃材质选择,也最大化提升了颜值。
Ps:为了减少视觉上的堆砌与复杂,厨房取消了包套处理,并给移门做到吊装轨道,让空间自由开合。

厨房做了常规的L型橱柜+冰箱布局,所有功能区遵循人性化操作设置,使用起来会更加舒适。而黑白质感的橱柜,也做到了经典耐看。
主卧室

推开主卧室的门,就给人一抹复古沉静的气息。同时,当复古、中式、欧式等元素结合在一起后,又让空间充满了文艺气质,就仿佛有了一种属于中国人的优雅,尽显东方华美。


床头一侧增加了一组隔断储物柜,在扩充收纳力同时,也兼具了净衣区的功能。而抹茶绿的柜体饰面,既与墙面做到了融合,又带来了更为立体的层次感。

次卧室

次卧是为长辈预留的房间,整体以大地色为主基调,再搭配上复古的窗帘,黑色的床,以及灰色的床品,立马就丰富了色彩层次,且造就出了一抹极秋安宁、静谧的睡眠氛围感。

左侧床头柜与衣柜结合一体,不仅仅规避了尺寸上的尴尬,也为这个略显深沉的空间带来了一丝轻盈。

儿童房

儿童房最要考虑的就是成长性需求了,因此所有的家具都选择成品,不仅调整起来特别方便,也能让孩子在每个阶段都有最佳的睡眠体验。当然,各种卡通元素的穿插,也给孩子带来了更多的趣味性。
书房

书房不仅仅是工作区,极简的布局设计,也兼具了亲子、客房、休闲、健身等多功能为一体的空间,以应对不同的生活场景需求。

家政区

书房旁边就是独立的家政区,大量的储物空间规划,深色系复古基调定位,美观又实用,且强调了空间的整洁度。
次卫生间

次卫做了干湿分离布局,并在干区增加了一块中式屏风隔断。一来遮挡了洗漱区的凌乱,二来也比较符合空间调性。

主卫生间

主卫增加了浴缸,并安装了黑色不锈钢挂杆,方便后期通过浴帘实现干湿分离。而各种复古的小花砖选择,也尽显贵气优雅。

本案就分享到这里,相较于纯粹的“老钱风”,更多是通过“老钱风”的搭配手法,将各种元素进行了提炼,再结合居住者的喜好,构筑了一个符合居住者审美取向的住所。不过即便如此,屋主也花了48w的装修预算。
图源/曲佳瑶私宅设计
图文编辑/小拾
以上案例仅为设计师分享,部分素材参考于网络,如侵犯了您的相关权益,请后台私信删除。