“ 新址新生,踏出理想之路”

公司旧照

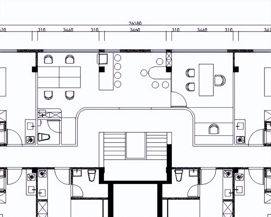
办公室布局

简单建模
老办公室房租到期,且空间过小,恰巧一旧商住楼整层出租,将近400方,从外面看确实破旧,但从里往外因沿街的绿植窗景极佳遂拿下(对设计师来说破旧根本就不是个事儿),面积这么大全做办公室过于浪费也没有必要,截取40平方留作办公,剩余空间改造成单身公寓出租。

初期,楼梯改造
旧楼层的拆除是个大工程,因在2楼,1楼一间也算在内,老楼梯占据很大空间影响我上面的布局,直接拆除,并现浇出一块1.2米乘3.5米的平台,使上下空间利用率更高。2层30来年的旧窗全部拆除,红墙分割出空间,装上新窗,在办公室区域保留了最大的采光,正对门直接做了月洞造型固定式的铝合金窗,光线打在树叶上投射出来的光影效果很出彩。办公室内效果重在色彩、光线的搭配,材质上并没打算投入较大成本,只要进来让人感觉到舒适。

拆除真的是个大工程,扒干净了,所以两根承重柱呈现出了最原始的美感

我很喜欢窗外那一偏绿,取个月洞

自己的办公区

双办公区

卫生间必须得有!!!前两回都是公侧!!!
平面布置早就搞好的,用SU简单的建模心里有底。工人都是自己的,也不需要像家装的要求所以干活相当麻利,两天的大拆除后就优先我办公室的砌墙水电改造。边上公寓的施工同步进行。楼梯的改造速度很快,因为上去干活必须要经过。改动后一楼一下子就开阔了。我保留了两根带有年份的破旧承重柱,太有破败感了。窗景已然呈现,期待最后的效果。自己的办公间做了双办公区,一个办公,一个办私,我应该是设计师中的老男孩吧,手办模型、动漫、钢铁侠...等等(从小爱到大),况且儿子6岁也着迷这些。里间办公区做了个小平台,想着以后我跟儿子可以午休。麻雀虽小五脏俱全,这边的布局我也是随心所欲,怎么舒服怎么来。进门位置的小茶台现砌的,是从承重柱延伸出来的,当时图片找不到了,反正后期也能看到。



做的地坪漆
竣工了,因为疫情关系,工期拖了很久。期间不停的在打扫、打扫、还是打扫。许多办公用品都是旧公司里搬来的,看似不多,装了满满一车。整体色系与风格我尽量照着旧家具走的,装饰画都是旧处搬来的(省钱)。新家当还是添了一些,橱柜、门窗定制的,书架、洁具、灯具、空调都是新采购的,哦还有品茶区的露营椅,想着可以公司用也可以外带。绿植在搬进来的这段时间一直在添,这个必不可少。

我太喜欢午后的光线了




倒影真美







地方不大,但是我在这办公很安逸,特别是天气好的午后,阳光毫无遮挡的洒进来的那一刻,冲杯咖啡坐在吧台上,巴适的很。好好工作,天天向上。
原创作品,转载请表明出处。