「钢板」时间印迹的忠实记录者——耐候钢板
(本文来源于微信公众号 “建构物语” ,向原作者致谢!)
本文作者介绍:
褚智勇,东南大学建筑系工学学士,北京建筑工程学院建筑学硕士,教授级高级建筑师,一级注册建筑师。曾著有建筑材料与构造类畅销书《建筑设计的材料语言》。
- 我们偶尔会看到一些温暖的铁锈红色表皮的建筑,
- 它的色彩、质感与我们平时见到的建筑完全不一样,
- 这就是我们所要讲述的一种特殊材料——耐候钢板
- (人们也常称它为Corten钢板、耐腐蚀钢板、锈钢板等)。



维也纳经济大学的教学中心/国际贸易系/mensa咖啡建筑群 建筑师:BUS事务所
实际上,将钢板用于建筑的外表面已有较长的历史了,为提高钢板的耐腐蚀性能,一般都在其外表面作各种涂装处理如涂漆、搪瓷、镀锌等。
从20世纪90年*开代**始,许多建筑师热衷于追求钢板的自然锈蚀变化效果将未处理耐候钢板直接运用于外墙、顶棚、甚至屋面,钢板在大气环境中,表层逐渐氧化变色,雨水的流淌在钢板表面甚至在与钢板相接的墙体上留下了锈蚀的印迹,形成了一种特殊的效果。
自然气候引起的钢板表面的变化体现了时间的印记,建筑如同生命体随着时间而生长变化。
这种特殊材料在建筑外表皮的运用可能和西方“工厂废墟艺术”、“垃圾艺术”的出现也有一定关系,它对于传统的设计思想可能是颠覆性的,就如同我国20世纪80年*开代**始引进的故意磨白、做旧、甚至磨损的牛仔裤对于人们的思想冲击一样。
考虑到室外用板材的耐久年限,这种钢板一般选择高强度耐候钢,它是针对钢铁在大气中的腐蚀而推出的。与传统钢材的化学成分相比,这种耐候钢是低合金钢,含有合金总量低于3%的不同比例的铌、钼、磷、钛、铜等元素。在所有的耐候钢中最为建筑师所熟知的的是号称Cor-Ten®(英文全称为:Corrosin Resistence-Tensile Strengh,意为耐腐蚀、高强度,翻译为中文常为“考顿”钢)系列的钢材,它是美国钢铁业联合会(USSC)耐候钢材的注册商标。其实早在20世纪30年代,美国就开展了低合金耐候钢的研究,并于1933年取得了Cor-Ten耐腐钢的专利权,最普遍应用的Cor-Ten钢分为以高磷铜加铬、镍为主的Cor-Ten A系列和以铬锰合金化为主的Cor-Ten B系列。60年代耐候钢不经涂漆防腐而直接用于桥梁和建筑的技术,在欧洲和日本都得到了广泛的应用。我国从60年代起也已经开始大量研制耐候钢,宝钢、鞍钢、武钢也有一系列耐候钢产品。
耐候钢在与大气的接触使用过程中,金属基体表面形成致密的、粘附性好的非晶态氧化层保护膜,颜色由锈红逐渐变成暗青、最终成为暗紫色,并从此不再锈蚀稳定下来,这层保护膜有效地阻挡了腐蚀的侵入,延长了构件的使用寿命。国外某独立的科研机构将耐候钢与普通碳钢在不同环境中的耐腐蚀性能作了对比,数据显示高品质的耐候钢在海边环境中16年后平均腐蚀深度约0.1~0.2mm,在工业区及乡村大约为0.02~0.04mm,这个结果结果显示出耐腐钢材的良好耐候性。我国武汉钢铁公司也对其生产的耐候钢进行了测试,结果表明即使在海边城市耐候钢的平均腐蚀深度约0.02mm/年。即使考虑到其他非正常因素,一般认为,耐候钢耐大气腐蚀性能是一般结构钢的3~4倍,即使在裸装使用条件下,其耐腐蚀性寿命也可达30年以上。

耐候钢随着时间的色彩变化
耐候钢使用简单方便,可涂装,也可不加保护层裸露使用,这简化了生产工序。由于免除了现有酸洗、热浸镀锌等工序,降低了生产制作成本,同时不使用涂料可以杜绝VOC(有机挥发物)的挥发,更加有利于回收利用,对于环境保护大有裨益。耐腐钢表面涂覆保护漆时,漆面的寿命可达到普通碳钢的两倍,由于耐候钢耐腐依靠材料的整体结构,因此不似经表面处理的普通钢对于表面保护层的依赖而对外界的磕碰、撞击那么敏感,即使局部的漆面受损时,耐候钢不会如普通碳钢生锈而使保护漆失效。
即便如此,由于腐蚀的发生不一定是平均性的,对于裸露使用的耐候钢来说,雪、雨、沙尘、冰雹会对钢板表面形成的保护膜形成破坏,长久也会造成钢板表面色差、甚至局部穿孔腐蚀,因此在海滨盐雾城市、工业化污染较高的城市、雨水较多的城市、高湿度及常雾区域以及埋地时应评估板材的厚度和维护更新周期。
在国内,由于空气、雨水清洁度的问题,当雨水在墙面的流淌不均匀时,未经处理的耐候钢板一段时间后易形成脏斑,影响观感。故一些厂家研发出耐候钢专用的化学药剂,直接将耐候钢板一步到位处理成一定的色彩、质感并进行封固处理,避免了脏斑的出现、锈水对其它地方的污染。当然,这种做法的弊端是时间痕迹消失了,这可能不是某些建筑师的初衷。

北京长城脚下的公社会所耐候钢板外墙的脏斑
瑞士建筑师赫尔佐格和德梅隆的西班牙马德里CAXIA艺术中心作为一个重要历史地段建筑的更新完美表达出建筑新与旧的融合,在保留下来的老建筑外墙上部新的耐候钢板外墙成为建筑重要的特征。


西班牙马德里CAXIA艺术中心 建筑师:赫尔佐格和德梅隆
未处理的耐候钢板显示出的色彩、质感、气氛与经过岁月洗礼的历史建筑有一种天然的融合性,匈牙利布达佩斯布达王宫新加的游览楼梯、电梯井虽然形式、色彩与古建筑反差较大,但在一起又是那么和谐。

韩国建筑师承孝相应该是偏爱耐候钢板这种材料的建筑师,他设计的许多建筑都用到了这种材料,2001年左右建成的北京长城脚下的公社会所就是其中之一,这可能是国内建成的第一个未处理钢板外墙的民用建筑。

北京长城脚下的公社会所 建筑师:承孝相
耐候钢板在建筑外饰面中常用的形式多为切边的平板,也有折弯成盒式块板的形式,当然耐候钢板也可以如同其它金属采用穿孔、数控雕刻处理,形成各种透空效果。




维也纳经济大学的教学中心/国际贸易系/mensa咖啡建筑群中的穿孔耐候钢板

穿孔耐候钢板
耐候钢板的构造方法常与其他类型金属板幕墙(非薄板型)有所类似,通常有明露螺栓(铆钉)固定法、背焊肋板干挂法、盒式块板干挂法等。考虑到钢板的平整度及耐久性,设计中钢板的厚度最好在3mm以上(盒式块板刚度好可以薄些,如1.5mm),在重要的高等级工程中应适当加大钢板厚度(如选用6~10~15mm厚的钢板)。钢板的构造主要应注意避免钢板长期处于水气环境中,防止雨水在钢板上的积聚,提供板后的通风间层以保证钢板快速干燥同时提高墙体的热工性能。

明露螺栓(铆钉)固定法效果

盒式块板干挂法效果(折边边缘不似切边挺括)

盒式块板干挂法详图

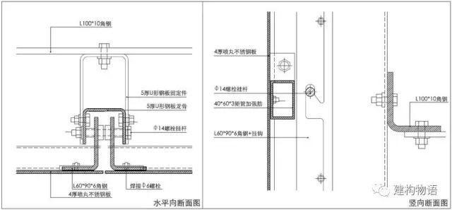
挂钩法法详图

瑞士建筑师安奈特·基刚和和麦克·古耶尔设计的德国卡尔卡瑞斯博物馆耐候钢板外墙详图
由于耐候钢板特殊的质感和色彩,耐候钢板在国内建筑、景观工程中的应用逐渐多了起来,也涌现出一些承担耐候钢板销售、二次加工及配合施工的专业公司,您可以在“建材U选”网站及APP中搜寻合适的供应商。
关于你@
今天关于「钢板」时间印迹的忠实记录者——耐候钢板(本文来源于微信公众号 “建构物语” ,向原作者致谢!)就分享到这里,如果你有疑惑欢迎在留言交流互动。
本文作者介绍:
褚智勇,东南大学建筑系工学学士,北京建筑工程学院建筑学硕士,教授级高级建筑师,一级注册建筑师。曾著有建筑材料与构造类畅销书《建筑设计的材料语言》。