
“中式院宅,朋友都来”
建筑占地:280平方米(建筑部分)
建筑面积:888平方米
建筑层数:一层~三层
结构形式:砖混结构
使用形式:展示、居住
设计师:陈工、章工、楼工、胡工、沈工


庭院深深,有生机盎然得精致,有闲庭信步的情趣,有嬉笑打闹的温馨,也有享受天伦的安逸,无论走到哪里,家终究是终其一生的幸福驿站。

一生中我们可能经历过多次搬迁新居,有自己买的,也有租的,随着年龄的增长,终究都会定居下来,可能城市,也有可能返回乡下。

对于大多数人来说,居住城市其实只是过客而已,无根之浮萍,淡薄无力,都为现实讨生活而忙碌其中。不是奔波在养家糊口的路上,就是定格在70年产权的楼房上,哪里来的闲情逸致,鸟语花香。

▲连廊局部透视图

▲连廊局部透视图
年幼的时候想长大,去飞往更广阔的天空。待风景都已看透,才知陪伴是细水长流。大多数人都是经历过乡下的少年成长,长大后在城市里拼搏,成家立业,繁华如过眼云烟,不知不觉,可能就已过半生。

每当在城市奔波的时候,停歇下来,便会想到曾经和父母一起的家,那是给予我们温情和安宁的地方。在我们幸福的时候,依然会想到曾经的老家,那是我们迈开成长脚步的第一家园。

▲庭院局部透视图

▲庭院局部透视图
那么,要说家是什么?家是我们魂牵梦绕的陪伴。有老有少,有说有笑,柴米油盐,有锅有灶,家人团圆,和睦相处,互敬互爱,幸福相伴。


▲一层平面图

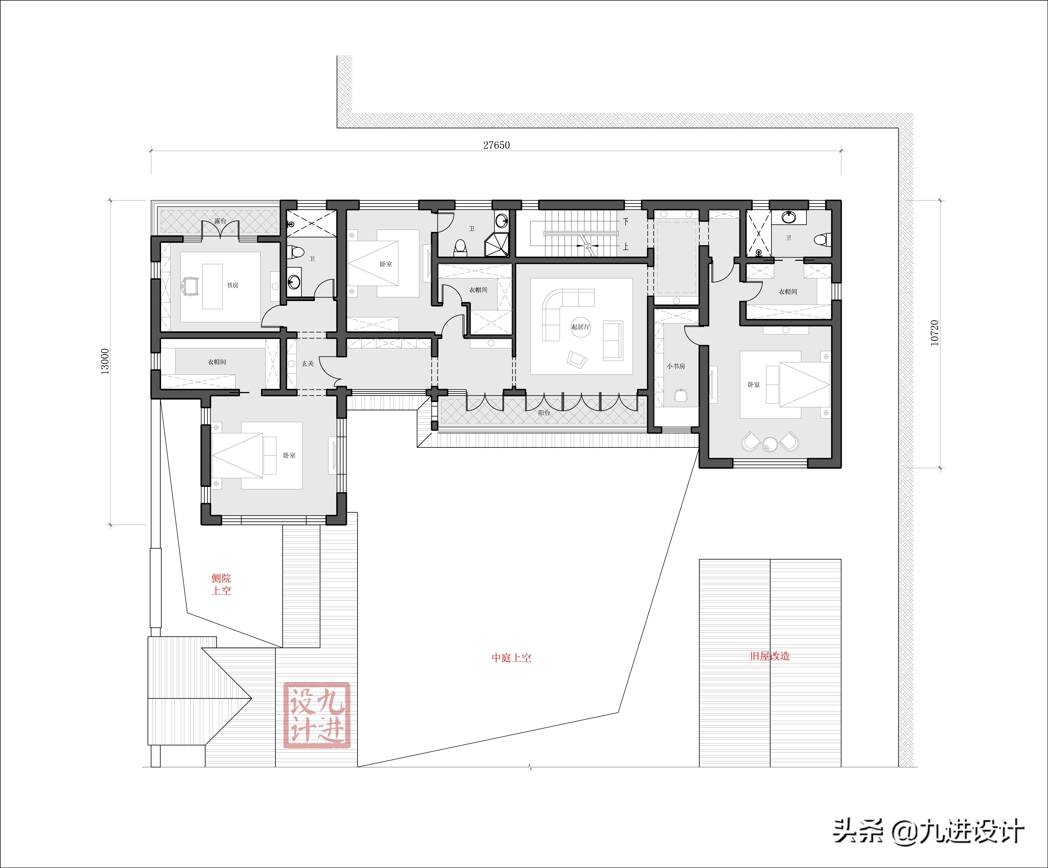
▲二层平面图

▲三层平面图
这是一座亲朋好友来了,都能欢天喜地的宅院,这是一座能述说故事的宅院,这是一座能够让人终身铭记的宅院。中国人的生活方式是喜欢聚在一起,所以,我们希望乡村的宅院房子要有更多的起居之外的功能,不是干巴巴的,是有场景的,充满活力的。


即使城里有房,也别忘了曾经的根,等你大富大贵或者老有所成之时,你会发现曾经的老宅是如此的珍贵。就像我们曾经也厌烦父母的唠叨,也曾叛逆到离家出走的地步,也许,年少的你把她当成多大的阻碍,长大后你就有多深的依恋。

▲主屋局部透视

▲主屋局部透视
我们所生活的现今时代,有城市的繁华喧闹,同时也有乡村的安逸闲适。固然,我们不可能两者同时兼得,但在不同的人生阶段后可能两者都离不开,两者皆需求。

▲主屋局部透视

▲主屋局部透视

▲主屋局部透视
合院式住宅,其实就是生活的另一种需求,它外表静谧闲适,恬淡自然,它是欢声笑语,幸福团圆的包裹,它装载着家的内容,述说着家的故事··· ···
【END】
以上内容皆为【九进建筑设计】出品:
诚信、细致、用心、以工匠精神扎实完成每一个设计,让生活更美好。