现在自建房的人不仅追求房子的实用性和居住的舒适性,还要追求外观的美观度,网上很多别墅效果图非常精致漂亮,就好像在某宝买衣服,模特穿的确实好看,买回来后却差强人意,所以咱们的房子实际建成能不能达到图片中的效果呢?
比如咱们今天的房主,不过今天可跟咱们平时的晒房不一样,今天的这套房是作办公使用的。房主一直在网上寻找图纸,找来找去一眼就看上了这套户型。

别墅效果vs建成实拍:
设计时在别墅外围增设了走廊,增加别墅的外形的层次感,使得别墅造型感十足!

外墙采用充满朝气的黄色,搭配白色的装饰线条和深红色瓦顶,配色经典耐看,真是让人一见倾心,与效果图相比真是有过之而无不及,用来作办公真是十分羡慕。

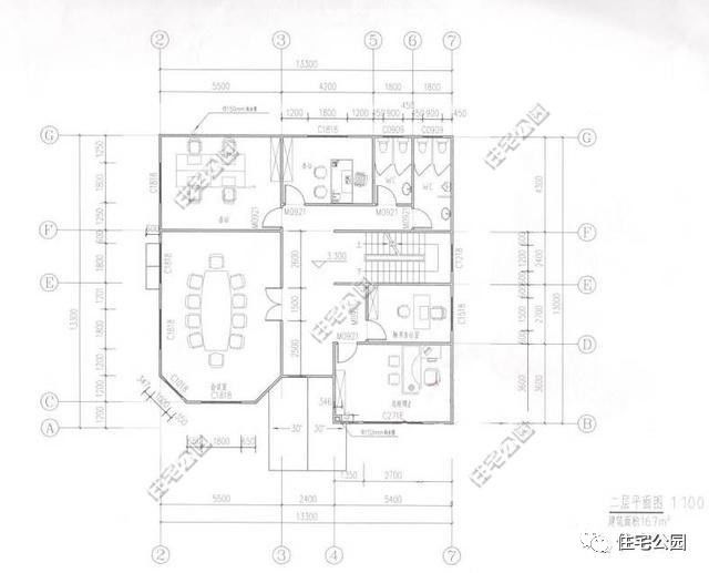
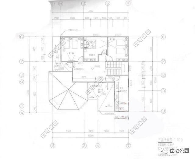
平面布局:
一层设置1个会客厅、4个办公室,2个公卫。

二层设置1个会议室、4个办公室,2个公卫。

三层设置3个职工宿舍、1个茶室。

室内装修:
由于作办公使用,无需太过豪华,简单的四地落白加上大方的家具即可。

主体采用轻钢建造而成,三百多平的面积,花费了30万左右。

这样简单装修下来,也才花了10万,还是很不错的。

简洁明亮的装饰风格,为工作人员创造一个舒适、方便、卫生、高效的工作环境,更好的提高工作效率。

三层还设置了一个大露台,工作累了在此放松放松,让工作融入生活之中。

屋顶用的是沥青瓦屋面,轻质防水。

花了40万把办公环境换成这样,要是不说,还以为是哪个土豪的私家别墅呢,你觉得这套轻钢房建的咋样?
微信公众号:住宅公园,500套别墅图纸,设计施工一站式建房。