
项目信息
/
地址:青秀澜湾
城市:中国 宁波
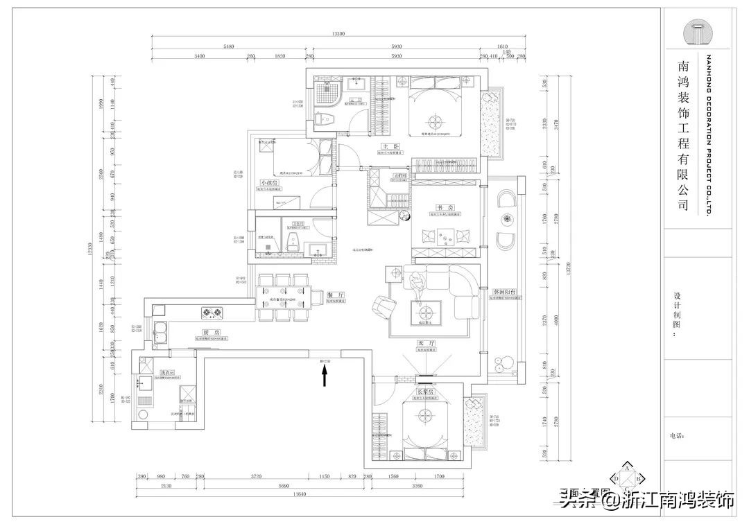
户型:四室两厅
面积:115㎡
风格:现代风格
设计施工:浙江南鸿装饰
本案为三口之家,设计师从细节着手,主基调采用大面积原木与乳胶漆元素,温润的材料与良好的采光赋予空间大量温暖的情感,同时整体户型也应屋主需求进行有序改动,如厨房、书房打开,地台设计也为日后的功能变动埋下伏笔。
户型一览
▼

PART/
01
客 厅


空间拥有着规整而简净的外形,大地色打底,辅以简单的家具摆设,演绎朴素大方之美。
明亮的日光被百叶帘过滤,淡淡的光晕笼罩,与自然不期而遇的惊喜,就这样悄悄藏进室内的每个角落。


淡雅的色调、天然的材质、明快的线条,加上开放空间的通透感加持,气质无可挑剔,让人能尽情在家的温暖怀抱中滋养身心。

电视背景墙是主流的收纳式设计,适度留白能保证空间的自在呼吸,不让视觉产生拥挤感。

午后阳光正好,安安静静地读本书吧,再泡杯新买的花茶,完美!
PART/
02
餐 厨

空间中,简易的黑色长桌散发沉稳气息,木饰面做餐厅背景,朴实安宁,仿佛在诉说着某个久远的故事。
开放式厨房动线流畅操作高效,空间也因此变得更加开阔通透。
PART/
03
书 房


这个打开的书房算是一个多功能空间,以地台的形式呈现,开放式布局强化与客餐厅的交互,增强家人间的情感交流,也方便日后的功能改动。
PART/
04
卧 室

主卧的采光也是非常充沛,让居住者能最大限度地感受到一天中光影的自然变化。立面结合木饰面和乳胶漆,漆色接近淡淡的米黄,加上北欧风的床品搭配和隐藏灯带,轻松营造舒适自在的空间氛围。

PART/
05
卫 生 间

空间的美观,并不在于丰富的色彩或是昂贵的用材,很多时候,正是各项完善的功能,才能最大化居者的幸福感受。