乐居新媒体 苏州讯 任时建据苏州万科消息,万科左岸项目即将于今晚7点开始选房,项目本批次开盘房源共计230套(其中10套样板间不参与推售)。
项目已于12月9日领取预售证,取证房源为高区190-330㎡+低区240-270㎡大平层,共有240套,备案均价46188元/㎡,总价区间821-1808万/套。
一房一价表如下:

金鸡湖左岸项目位于湖西苏惠路北、星海街东,建筑面积约20万方,共有东、中、西三座超百米塔楼,规划有70年住宅、40年公寓,商业及办公。

由于项目处于苏州第一梯队学校星海实验学校的施教区内,因此其70年产权公寓一直以来备受购房者关注。(注:学区以教育局划分施教范围为准)

11月中旬,万科左岸项目公布了最新的规划。

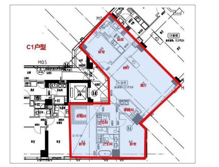
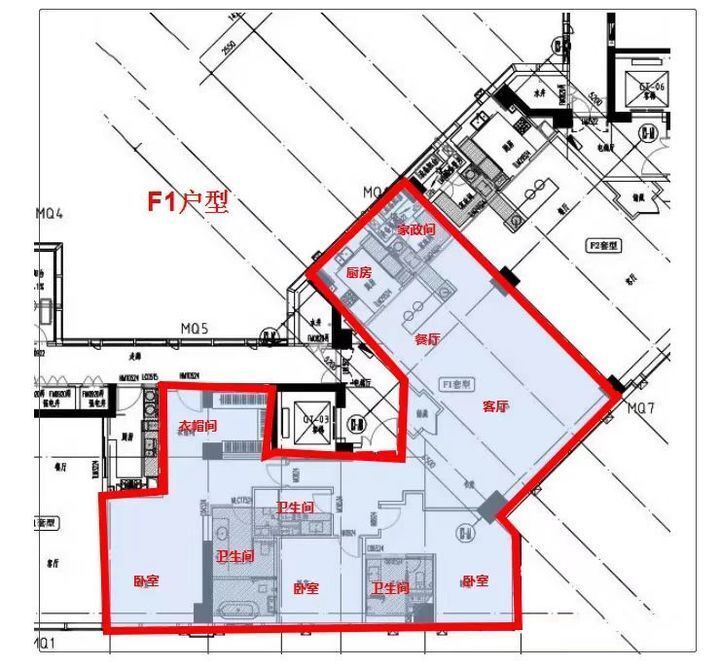
根据规划,项目70年产权公寓总高46F,分为高、低两区,共计6个户型,约200余套房源,户型建面约190-330㎡,标准的稀缺金鸡湖大平层豪宅,户型格局以3房和4房为主,居住尺度开阔舒适,高级感拉满!

低区主要为A1/A2、B1/B2、C1/C2三大户型,主力户型建面约238、240、265㎡。

高区主要为D1/D2、E1/E2、F1/F2三大户型,主力户型建面约190、221、330㎡。

万科左岸项目位于湖西CBD绝版位置,1公里内聚集了苏州中心、东方之门、环球188等一众苏州地标,地段的金贵性不言而喻。
除此之外,片区还有轨交1号线、星海实验学校、星海广场等优质配套环绕,接下来,随着金鸡湖隧道的开通,湖西CBD与湖东CBD的双向联系势必得到加强,双强联合将重塑苏州超级中心。

目前,板块二手房挂牌价基本都在6-7万/㎡,这个价格,一方面印证了板块内住宅的溢价能力,另一方面,也预示着未来这里新房、二手房倒挂效应将会十分明显。