线条的重要性
线条是手绘的基础,同时也是手绘的核心之一,在实际设计当中基本都以徒手的方式勾勒设计草图,如果手绘线条不扎实就会出现以下类似情况。
(1)原本一根线条能够交代清楚的结构却因为下笔不够准确而不得不多画一条甚至几条,这样一来就会使得草图很不清晰明朗,而且还会显得很不专业。
(2)在做平立面推敲的时候,因为缺乏对线条尺度的控制能力,本应用一根5cm的线条表达的尺度却画成了7cm或者更离谱。这样就会导致设计者推敲出来的平立面尺寸比例与实际不符,而让效率大打折扣。

一根线条交代清楚

几根线条才能交代清楚

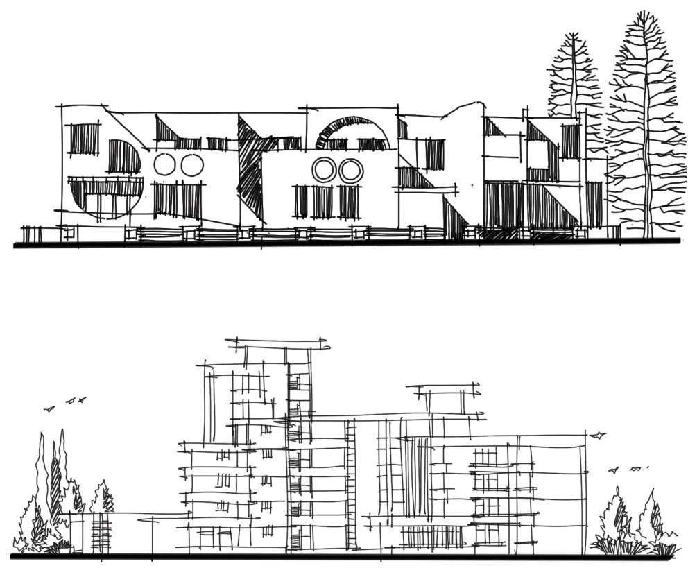
准确的两个立面图

不准确的两个立面图
直线
直线在建筑手绘中应用最为广泛,也最能体现出一个创作者的线条绘制功底,很多人在练习线条的时候存在着以下几个误区:
(1)麻木地只练习线条而不愿在实际形体当中去体会线条的感觉。这样就会出现单看一排排整齐的线条很漂亮,但真正动手画起草图来就不堪入目了。
(2)一味地练习固定方向的线条,如横线、竖线、左上右下45°斜线、左下右上45°斜线等。实际手绘当中各个方向的线条都是有可能出现的,实用方法是在纸面上点无数个点,然后把画面中的点严谨地连接起来。
(3)有些人只练慢线,有些人只练快线,很多人错误地认为只有又快又直的线条才是漂亮的线条。线条本身是没有美丑之分的,只有落实到具体画面和形体中线条才有了真正的含义,快线自信洒脱但容易出错,慢线严谨准确但容易呆板,各有所长也各有所短。

慢直线效果

快直线效果

纯练线条的正确方法

慢直线在画面中的效果

快直线在画面中的效果

快慢结合在画面中的效果
曲线
在手绘实际运用当中曲线多用来画天空、人、植物等配景,或建筑本身的一些材质,如花岗岩、大理石等。

植物

大理石

天空

人

植物

植物
紧线
紧线也就是前面提到的快线。紧线的性格特点是:干脆利索,自信果断,在方案构思中大量地运用紧线会使画面的草图味道更浓。

松线
松线一般运笔缓慢,舒展,线条饱满,常常给人一种严谨、沉着之感,松线相对紧线更准确,同时又更加自由,更富有动感,但草图味道会减弱很多。

线条在实际运用中的基本诀窍:
(1)从起笔到收笔尽量做到一气呵成,切忌犹豫拖沓。
(2)不要来回重复表达一根线条。
(3)如果一根线条没有画完,在画后半段线条时切忌在原来线条末端直接起笔。正确方法是在原来线条末端留出一点空隙再起笔画完后半段线条,这在技法上我们称之为形断而神不断。
(4)两条线条存在相交时,应尽量交接完整,交接点的线头可适当延长,这样能增加画面的草图味。

正确接法

正确画法

正确交接法

错误接法

错误画法

错误交接法
线条的疏密
一张纯粹的线稿主要是通过线条的疏密变化来体现画面的空间关系和层次,对比时形成空间的关键。对比又主要通过线条的疏密和形体大小衬托来完成,所以讲掌握了画面中线条的疏密关系就基本把控住了画面的空间。

疏密能反映明暗

疏密能反映前后
线条的虚实
线条本身是没有虚实的,只有落实到具体的画面当中并通过不同的手法去处理,线条才被赋予了空间关系。处理线条虚实的手法主要有以下几种。

(1)断线为虚,从头至尾一气呵成的连贯的线条为实 。

(2)细线为虚,粗线为实。

学习更多绘画知识,关注头条号:绘画视界。一直是你绘画路上的良师益友,简单而有趣。