买房子,肯定没有百分百的顺心的,完美的户型是比较少的。这不,前段时间有屋主咨询木小桐,她刚买的房子没有玄关,发愁鞋柜放哪里,怎么办 ?

玄关是入户的第一眼,所以品相不能差。一个漂亮的玄关可以给客人一个好的印象,同时舒适性和实用性更加重要。
那么,没有玄关,鞋柜该如何设计呢?五种思路给大家做个参考:

1、门侧嵌入式
有很多的户型,进门是一个长走道,在入户门的侧面会有一部分的位置,如果除去门套有个350mm以上的净宽度,那么平行于走道做上鞋柜是最合适的选择。

如果除去门套净宽度<180mm(目前最薄的鞋柜是170mm),可以看一下侧面的墙是否为承重墙,如果不是,那就可以拆除柜子背后的墙体,将柜子嵌入式设计,借用一部分墙体的厚度来放置柜子。如果柜子的背面要贴瓷砖,正确的做法是在木背板上贴上一层水泥板(硅酸钙板),毛面向外,然后在用瓷砖胶/云石胶再把瓷砖粘上去。

2、门前隔断式
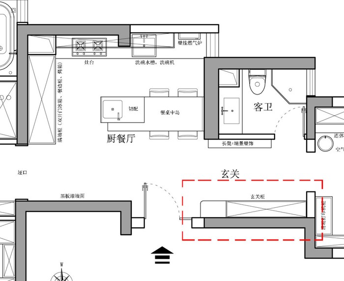
如果一进门就是个大开间,很多屋主都不希望陌生人一眼看到自己室内的情况,这个时候做个“假”玄关就很有必要了。

在正对入户门,距离1.5米~2米处,可以设计通顶玄关鞋柜,这样不仅能保证隐私,又能收纳鞋子。

3、门侧隔断式
如果入户单侧是大开间的话,为了保证客厅/餐厅的隐私,可以垂直于入户门做隔断鞋柜,同样起到隔断与收纳功能。

单侧的话买成品半高的鞋柜或者定做的鞋柜都是可以的,如果想要玄关通透一些的话,鞋柜上部可以做成半通透的隔断,像木格栅、长虹玻璃隔断都可以。

4、门侧平行式
在大门左/右侧有比较长的靠墙空间,且平行于门的,这块地方也是比较推荐放鞋柜的。平行于大门布置,可以使进门后的空间继续保持宽松舒适,而且也能实现大面积的储存收纳。

而且这样设计,换鞋的时候不会影响进门一侧的动线。

5、联排一体式
如果进门一侧是一整面连续的墙面,延伸过去可能是电视背景墙/餐厅背景墙,那么可以考虑将鞋柜同电视柜/餐边柜做成一体式的。

这样的联排柜看起来整体性非常好,外观上比较协调、大气,而且收纳能力也是非常强大的。

除了鞋柜的布置,再给大家总结一些鞋柜的实用设计要点:
1、底部留空15cm

底部预留鞋位,可以放置一些常穿的鞋子,不仅免去了弯腰找鞋的时间,也能方便清理卫生。
2、中部留空30cm

中部留空是非常有必要的,每天进门可以放置一些钥匙、包包等随手物品,使用起来非常方便。
3、 近门 一侧做换鞋区

家里有老人或者小孩,建议留出柜子的一块空间,做成换鞋区,这样就再也不用“金鸡独立”式换鞋了。
4、鞋凳上方做挂钩

安装挂钩,可以悬挂包包、外套和各种小玩意儿,非常实用,出门再也不会忘记东西了。
5、鞋柜内部设置活动层板

由于女士和男士的鞋子所占高度不一样,所以鞋柜的分隔高度需要灵活一些。最简单的方法就是设置活动层板,根据鞋子大小随时调整,提高收纳效率。
6、鞋柜和入户门套距离保证3cm以上

设计鞋柜深度的时候,一定要注意柜子同门套线之间保持3cm以上的距离,不然打不开门就惨了。
7、定制鞋柜侧面做“假墙”

有时候,由于墙面不平整,可能导致靠墙的鞋柜侧面有缝隙,而“假墙”可以完美的避免这种问题。
如果你家进门也没有玄关,那就“对号入座”吧~