
设计师的家
Los Angeles home
建筑师在做方案的时候往往会受到经费、空间局限性等各种干扰和影响,所以一旦有机会给自己当一回「甲方」,他们天马行空的创造力就真的释放了。

△ Clive Wilkinson
洛杉矶建筑师 Clive Wilkinson 擅长的是办公、商业空间的项目,他带领的工作室 Clive Wilkinson Architects 近十年来出产了许多风格独特的优秀项目 ▽

其实 Clive Wilkinson 一直梦想着能给自己设计房子,去年他终于碰到了这个千载难逢的机会——买到了洛杉矶西部一块地皮,便开始动手做方案,盘它!

于是就有了我今天要介绍的项目,这是他为自己的家人——妻子和 3 个小孩——设计的独栋住宅,位于洛杉矶西部,房子总占地 696㎡,建筑面积 343㎡;

这栋房子共有三层,顶层是箱型涵洞结构,整个儿包裹在涂成黑色的锌板中,与下面两层混凝土结构组合而成棱角分明的体块,特别立体 ▽

设计灵感来自洛杉矶标志性的现代房屋,黑色锌板与混凝土对比强烈,让顶层有点像浮在半空的立体箱子。

设计师正是借助周围高低不平的地势,巧妙地「隐藏」了部分楼层结构。

房子的入口与二层大平台相连,位于建筑侧面,与白色车库门并排。

木结构大门同样包裹着黑色门框,从正面看是一道普通的木门,而转到侧面能看到门上的木片形成一定角度,能够遮挡视线;

黑色门铃镶嵌在院墙上的窄缝里 ▽

主要的起居空间位于顶层,这里拥有极其开阔的空间尺度,天花板上一排排冷杉木椽子一直向下延伸至墙壁,将装饰与结构结合在一起,构造出统一的连续感 ▽

冷杉木质坚硬,纹理清晰,整个房间位于倾斜的木椽天花之下,给人一种贴近森林的自然感触。

几组沙发、一架钢琴就构成了开放的起居室,轻松随意却充满家的氛围。

正面的到顶的落地窗可以自由滑动,将城市开阔景象尽数引入室内,同时,黑色镂空楼梯扶手将起居室与厨房分隔开 ▽

大理石中岛分隔了料理区和用餐区,平行而开放的布局可以拥有更多社交空间 ▽

白色饰面构成的橱柜和料理台像是镶嵌在木墙中,视觉对比强烈 ▽

餐桌可是设计的得意之作,采用世界上最重的铁木切割而成,搭配明黄色树脂休闲椅,营造轻松用餐氛围 ▽

餐桌上方有一盏定制款金属吊灯,它能反射出木梁的形状,营造出一种未来感 ▽

起居室一侧还设有书房,虽然同样是木结构,但它给人的感觉更加封闭,

黑色书架设计好像悬空的铁盒子,多边形窗户也带有一种几何感,而暖色调沙发为房间带出明快的时尚氛围 ▽

通向顶层的楼梯,两侧采用黑色镂空金属板做装饰,立体的三角空洞好让光线可以自由流通 ▽

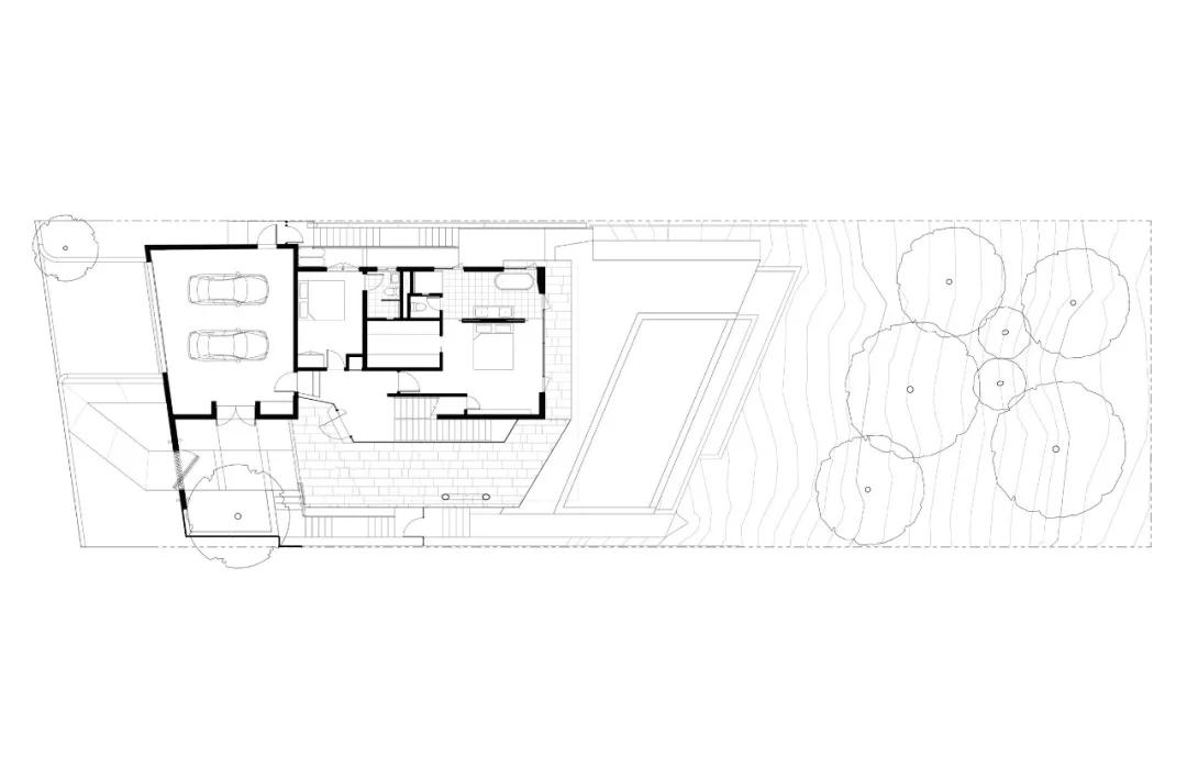
住宅中层是设计师夫妇的卧室套房和客房。设计师为主卧赋予了更多独特的个性,用丰富的材质和简洁的线条勾勒出时尚的卧室空间。

他亲自设计了电视旁边的黑色书架,与电视同样高度,构成一致的水平面 ▽

黑色座椅拥有立体的雕塑感,和混凝土墙面形成强烈对比 ▽

卫生间地面铺贴摩洛哥瓷砖,深灰与橄榄色拼出俏皮的几何图案 ▽

两面镜子让空间尺度得到延伸,同时也淡化了过多的黑色元素 。

双台盆的设计对称而实用,纯白台盆的一角有一个下沉式皂托,优雅的曲面凹槽像一块「陨石坑」,可以说是整个浴室空间的点睛之笔 ▽

这一层外围环绕着宽敞的开放式露台,并装有玻璃围挡,模糊了室内外的界限 ▽

楼板之间仅以金属立柱做支撑,增加了体块的轻盈感 ▽

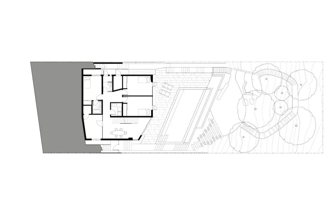
下层包含三个儿童卧室,一个家庭健身房和一个娱乐休闲区。并由木结构楼梯作连接。

楼梯直直通向石头砌成的无边泳池露台和花园,水流顺着混凝土泳池边沿倾泻而下,这里不仅视野开阔,绿植和流水形成的立体景观也很惬意。

悬空的楼梯踏板紧贴着用喷砂混凝土包裹的墙壁,营造立体光影;侧面摆放桌椅,形成一小块休息区 ▽

绿色玻璃门构成房间的分野,跳跃的颜色让人一看便知这里是属于孩童的空间 ▽


每间儿童房都拥有各自的主题,以玻璃门与泳池相连,采光极好 ▽

造型独特的大红色沙发、边几构成视觉重心,也为房间增添活跃气氛 ▽


△一层平面图

△二层平面图

△三层平面图
这栋房子虽然外表夸张而立体,但设计师在楼层布局和细节方面的确倾注了对家人满满的爱,期待有更多的设计师能梦想成真。

本文图片、视频来源于设计师官网
版权归其所有
撰文丨Lilith
本文由一起设计原创撰写
欢迎分享到朋友圈
「一起设计」 专注于设计的新媒体品牌
