整个小区的户型就数我家这栋楼的最差,但是没办法,主要也是因为便宜,刚好负担得起,要想在大城市拥有一个家真的太难了,但是又不想寄人篱下了。虽然户型不好,但是老公请教了他的朋友如何改造才算是最优化的,没想到小小的手枪房改造成小两居后,邻居纷纷上门请教怎么做到的,实在太有成就感了,一起来看看家里是如何改造的。

小区的户型确实改不了,所以从装修上来迁就户型这是非常有必要的。这套户型原本是46平米,而但是经过朋友的改造之后,以及老公自己动手装修后,简直就是利用率超高,并且实用极了。不仅拥有客厅,厨房,卫生间等,还拥有两个卧室,简直太有成就感了。
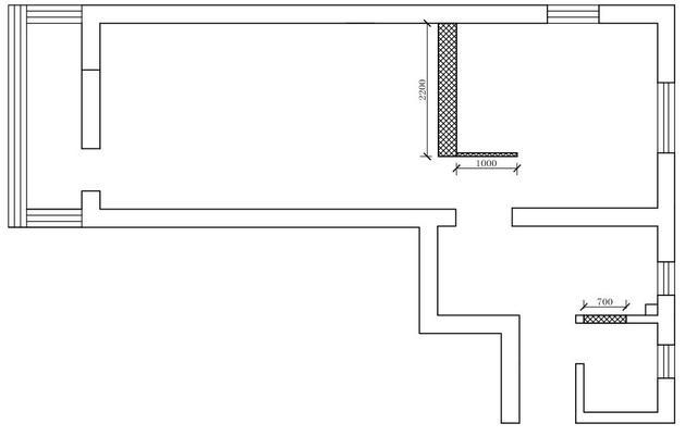
上面是原本房子的户型图,后面的是改造好设计好的户型图,一目了然,空间利用起来非常好。

从入户就可以看到,玄关,卫生间,厨房整个在共同的区域内,虽然空间小,但是实用为主。充分利用了拐角的空间,不仅拥有独立的玄关,半开放式的厨房更加实用。

虽然房子小,但是装修起来一点都不马虎,全屋做了木质地板为主的设计,整体更加的温馨舒适。墙面以白色为主,用小挂件作为装饰,就比如玄关,一个小小的斗柜作为鞋柜,上方还可以收纳以及防止一些小植物,墙面挂上一幅小小的挂画,整体很是时尚美观。

玄关正对着的就是一个半开放式的厨房,小小的厨房,定制的L型橱柜设计实用为主,角落还有空间放置冰箱,为了不让家里显得太过于单调,在冰箱的选择上我就选了柠檬黄的色调,整个厨房也充满了不少的活力色调。

厨房定制的橱柜,以白色的柜门为主,搭配实木的台面(打蜡),这样清新的设计很是好看,防溅挡板则是白色的小格子砖,很是好看。

厨房的后方正对着的是卫生间,很多人都说这样的风水不好,但是日常厕所都是紧闭的,没多大的关系。就连卫生间的门都做了折叠的设计,以现代时尚为主,柠檬黄的色调和冰箱相呼应。

整个房子的格调是以现代简约风为主的设计,白色和木色相互搭配,在加上了绿植的点缀,在阳光的照射下,客餐厅显得格外的温馨和舒适。客厅虽然没有阳台,但是周围的窗户的光线直射非常好,整个小家显得非常的温馨了。

客厅和餐厅整合在一个公共的区域内,一点都不会显得拥挤,反而很是宽敞明亮,晚上开灯还很温馨舒适呢,两个人窝在这样的小家看电影,也是蛮不错的选择。

餐厅过来就是两个小小的卧室了,因为整个客厅到餐厅再到卧室之间没有再多的窗户,所以卧室的隔断就用了玻璃门窗代替,这样还可以让更多的光线照射到卧室内。

过来这边的第一件卧室,就是书房,也是客房,单人床的搭配,以及一张电脑桌,很适合平时办公。

再过来就是一个主卧室,和客房是完全的隔断的,之间就是一道门作为通道,很多人都以为过来是阳台,其实不是的,阳台和主卧室整合在一块了,整体的空间就更加的宽敞和明亮了。也是由于主卧这边做了衣柜,所以客房才会没有直接的光线照射。

整个主卧超明亮,而且阳台做了封包的设计,不仅一边作为办公室,另外一边还是晾衣区,超实用的。

整个房间都是以极简的设计方式为主,白色为主的设计,搭配一些深色的家具,包括大床,或者是房门,很是温馨舒适,超好看的。
关注公众号:家居设计计
可以获得更多的装修案例,往年的装修案例