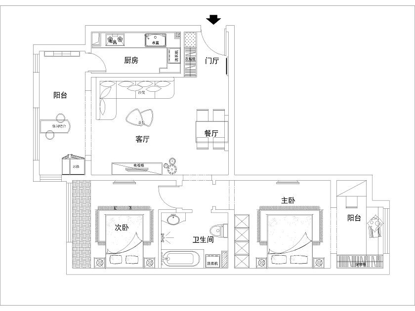
海棠湾89平-简约装修设计-北京实创装饰强势打造
项目名称:海棠湾
设计单位:北京实创装饰
装修风格:简约
建筑面积:89平米
房屋类型:两居
微信号:150-102-29718
设计理念:简约不等于简单,它是经过深思熟虑后经过创新得出设计和思路的延展,不是简单“堆砌”和平淡的“摆放”,不像有些设计师粗浅的理解的直白,但是它凝结着设计师的独具匠。







微信号:150-102-29718
装修流程:北京实创装饰与客户沟通—设计师现场量房—出设计图和预算—签订施工合同—开始装修
海棠湾89平-简约装修设计-北京实创装饰强势打造
项目名称:海棠湾
设计单位:北京实创装饰
装修风格:简约
建筑面积:89平米
房屋类型:两居
微信号:150-102-29718
设计理念:简约不等于简单,它是经过深思熟虑后经过创新得出设计和思路的延展,不是简单“堆砌”和平淡的“摆放”,不像有些设计师粗浅的理解的直白,但是它凝结着设计师的独具匠。







微信号:150-102-29718
装修流程:北京实创装饰与客户沟通—设计师现场量房—出设计图和预算—签订施工合同—开始装修