窗帘盒是装饰工程中最为常见的一项施工内容,与幕墙收口、窗帘安装等细节处理尤为重要,设计的美观、合理,精细的施工一定会建造出高水平的装饰工程!
1、施工工序:
弹线定位→龙骨及基层阻燃板安装→石膏板安装→腻子乳胶漆施工→窗帘轨道安装→窗帘安装。
2、施工要求
(1)窗帘盒基层采用阻燃板制作,结构牢固。
(2)窗帘盒应保证宽窄一致,与吊顶交接,应根据不同吊顶形式确认交接方式:
(3)与矿棉板、铝扣板等板块吊顶交接,采用 W 型边龙骨收口,窗帘盒下口高度与吊顶高度平齐。

窗帘盒带灯槽示意图

窗帘盒与板块吊顶交接示意

窗帘盒与板块吊顶交实例
(4)涂料窗帘盒与石膏板吊顶交接时,应采用与墙面相同的“T”型收口条处理。窗帘盒底口要低于边龙骨 9-12mm(一层石膏板宽度)。

窗帘盒实例及宽度要求
3、窗帘盒与幕墙收口:
(1)对于粘贴饰面板的窗帘盒,其排版应与幕墙龙骨分格对应。
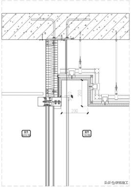
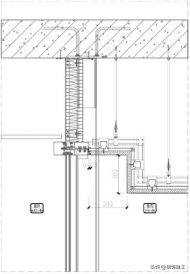
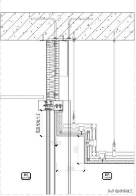
(2)窗帘盒与幕墙交接处应连接到幕墙横龙骨上,打胶收口。为便于安装窗帘,窗帘盒立面部分高度宜为 200mm,可根据现场幕墙横龙骨与吊顶的高低位置关系选择不同收口方式。

高于幕墙横梁

平于幕墙横梁

低于幕墙横梁
4、质量标准:
窗帘盒与吊顶、收口条与吊顶交接平整、清晰,阴阳角方正,水平度不大于 1mm。

窗帘盒实例照片