
“刚需有刚需的纠结,改善有改善的烦恼。”
长沙改善的烦恼,无非是买城市优势地段并牺牲掉一定的居住品质,还是为了居住品质在非核心地段置业。
岳麓的岳麓山大学城有这样一个新房项目,项目名为望兴西西里。
今天,我就来和各位聊一聊这个项目:望兴西西里,你会是长沙改善客的答案吗?
项目基本信息
- 项目名称:望兴西西里
- 参考单价(元/㎡):12000
- 地址:西二环与枫林路交汇处东南角(望城坡站2C出入口)
点击卡片查看详情:

项目特点
- 优势
距离地铁站点直线距离仅290米,出行便利。
1.5公里生活圈内有购物中心配套,购物便利。
- 劣势
从现状来看,项目的中小学配套较为缺乏,有入学需求的家长需要谨慎考察该板块的学校引进规划。
产品单价并非刚需友好。
- 适合客群
比较适合对地段和面积要求不高,但对楼盘品质要求较高的客群。
地段配套

望兴西西里位于岳麓。
- 交通情况
距离地铁望城坡站直线距离约290米,公共交通配套可谓绝佳。
- 商业资源
1.5公里生活圈内有长沙王府井FAMILY PARK购物中心(河西店)、湘腾城市广场、梅溪湖七喜街、纽沙MALL、畅佳购物中心、奥克斯缤纷广场、金茂览秀城、王府井集团家庭公园,商圈繁荣,购物便利。
- 教育资源
从现状来看,楼盘周边较为缺乏已建成的中小学,还有待规划落地。楼盘周边比较缺乏现成的幼儿园配套,宝爸宝妈需要谨慎考察规划和落地情况。
- 医疗资源
项目5公里内有长沙湘衡医院、望城人民医院分院、春望医院、谭家冲社区卫生服务站湘雅附属三医院双向转诊医院、长沙梅溪湖三真康复医院、湖南省中医医院第二附属医院湖南省中医院联盟指导医院、湖南省胸科医院(三级甲等医院)、湖南航天医院、长沙诚康医院、长沙协盛医院,医疗资源丰富。
产品评测
望兴西西里属于普通住宅。
由长沙华湘房地产开发有限公司开发。

- 小区环境
项目物业是望兴物业管理有限公司。
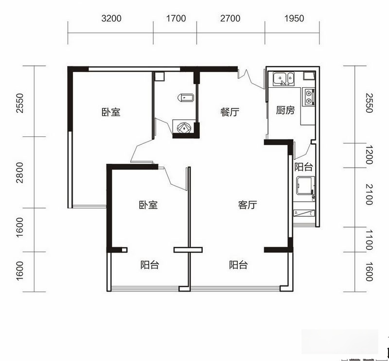
- 户型解读
望兴西西里毛坯交付。该项目有多种户型可供选择:
户型1:南向一居室
面积:56平
1室1厅1卫

户型2:南向紧凑小三居(1卫)
面积:99平
3室2厅1卫

户型3:南向一居室
1室1厅1卫
朝向:南

户型4:南向大两居(1卫)
面积:91平
2室2厅1卫

户型5:
朝向:南

户型6:
朝向:南

户型7:
朝向:南

户型8:
朝向:南

户型9:南向紧凑小两居
面积:73平
2室1厅1卫

户型10:
朝向:南

户型11:南向宽敞大两居(1卫)
面积:107平
2室1厅1卫

户型12:
朝向:南

户型13:
朝向:南

户型14:南向一居室
面积:55平
1室1厅1卫

户型15:南向大两居(1卫)
面积:88平
2室1厅1卫

户型16:南向紧凑小三居(1卫)
面积:99平
3室1厅1卫

户型17:
朝向:南

户型18:南向大两居(1卫)
面积:88平
2室1厅1卫

户型19:南向紧凑小三居(1卫)
面积:93平
3室1厅1卫

户型20:南向一居室
面积:51平
1室1厅1卫

户型21:南向一居室
面积:50平
1室1厅1卫

户型22:南向一居室
面积:42平
1室1厅1卫

户型23:南向一居室
面积:48平
1室1厅1卫

户型24:南向大两居(1卫)
面积:93平
2室1厅1卫

户型25:
朝向:南

户型26:
朝向:南

户型27:南向紧凑小两居
面积:78平
2室1厅1卫

户型28:南向一居室
面积:48平
1室1厅1卫

从主力户型来看,该项目可作为入手岳麓山大学城的上车盘。3室1卫的户型空间紧凑,功能性强,面积浪费少。较大的户型能够一步到位,满足三代同堂的需求,比较适合改善购房者的需求。
价格分析
最后,让我们进入比价环节。
以下为岳麓山大学城的几个主要的二手房小区的相关情况:
- 中南壹号院(建筑年代:2016;均价:10007.1元/㎡)
- 阳光100国际新城西区(建筑年代:2016;均价:10007.0元/㎡)
- 长盛花园(建筑年代:2015;均价:10578.5元/㎡)
- 阳光100后海(建筑年代:2014;均价:11108.4元/㎡)
- 润嘉公园道(建筑年代:2014;均价:10197.0元/㎡)
- 岳麓山大学城其他新房楼盘:
目前岳麓山大学城的在售新盘,还有湖湘中心G16,那么这两个项目是否有高下之分?点击以下楼盘卡片查看湖湘中心G16项目详情。

- 同价格段本市其他新盘对比:
目前长沙的在售新盘,还有若干个与本项目单价水平相似的项目,那么这几个项目哪个更适合你?点击以下楼盘卡片查看项目详情。





以上即为幸福里对望兴西西里的测评内容。楼盘具体信息及折扣情况请以项目实际公布信息为准,或点击以下卡片联系置业助手获取。

延伸阅读:
【南沙楼市,并没有想象中那么乐观!】上周末,我们去了南沙,明后天会以实地调研稿的形势给大家呈现,在此之前,我曾经因南沙放松限购写过一次南沙,内容偏向于宏观、科普方向,今天把这篇文章拿来重发回顾,也刚好和实地调研搭配,方便大家对南沙有更清晰的了解。我们,就从南沙的过去,到和广州的关系,再到自贸区,以及南沙楼市的问题,放在一起,深入的去捋一捋,为什么南沙的楼市不容乐观!所以,正如标题,听一声劝,对于南沙的楼市别太乐观。我相信一定有很多人持有不同的观点和意见,广州人、南沙本地人,那些一步一步见证城市发展的人,会觉得自己有更大的发言权。来自楼面,点击阅读原文