
简介
潜水搅拌机是水处理工艺中关键的设备之一,其结构主要包括叶轮、潜水电机、导杆、提升系统等组成。

叶轮
叶轮直径大小由池子尺寸、流体相关性质决定,叶轮直接安装在电机轴上,叶轮周边配置导流罩,其作用是运行时增加轴向流动并减少径向流动,减少叶轮震动、增加运行平稳性。
电机
电机功率大小根据实际搅拌流体的量和池子的尺寸决定。电机绝缘等级F级,防护等级IP68。

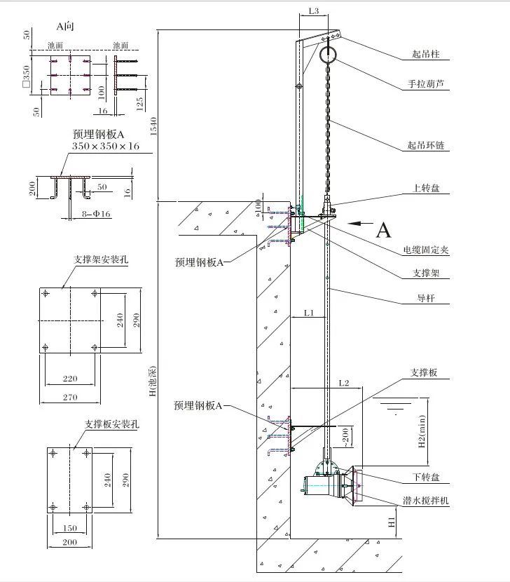
导杆
安装时注意导杆的垂直度,精度越高运行震动越小,搅拌机底座的设置也要尽量水平。

其他介绍
潜水搅拌机通常用于污水处理厂厌氧池、缺氧池等流体搅拌和氧化沟工艺等。其产生的底向流向的动力将污水按照设置好的角度和方向定向流动,使得池子内中水体循环并辅助完成硝化、脱氮和除磷等
潜水搅拌机选型需要提供池子尺寸、形状、水量等,针对这些参数选择对应的型号、叶轮直径、转速、功率、以使得潜水搅拌机功效发挥到最佳
规范中规定每立方米清水所需要的功率是5W/m³,算出结果后还要再将污泥校正系数、池型校正系数、和流体密度校正系数相结合等
有潜水搅拌机的工艺中,其液体密度尽量维持在1150kg/m³以下,水温控制在40℃以下,PH控制在5-9之间,这样能增加搅拌机使用寿命。
校核搅拌流速时候参考流速在0.15~0.3m/s 较低的流速会使得污水处理厂污泥沉降较多,不利于污水厂正常运行!
