
实木门如何画大样图, 下面由华建工艺学会、华建环境设计研究所为大家讲解下不同类型的实木门通用施工图!
重要提醒:
安装前门洞要进行防潮、防腐处理。
(一)复杂门套线:
a 施工顺序:
组装门套→安装门套→安装门扇→安装门锁→安装门套线→在相应的位置安装门吸
b 注意要点:
检查门套整体与地面是否垂直,门套顶板与两立板的两个角是否直角。




(二)简单门套线:
a 施工顺序:
组装门套→安装门套→安装门扇→安装门锁→安装门套线→在相应的位置安装门吸
b 注意要点:
检查门套整体与地面是否垂直,门套顶板与两立板的两个角是否直角。




(三)雕花欧式实木门
a 施工顺序:
组装门套→安装门套→安装门扇→安装门锁→安装门套线→在相应的位置安装门吸
b 注意要点:
检查门套整体与地面是否垂直,门套顶板与两立板的两个角是否直角。




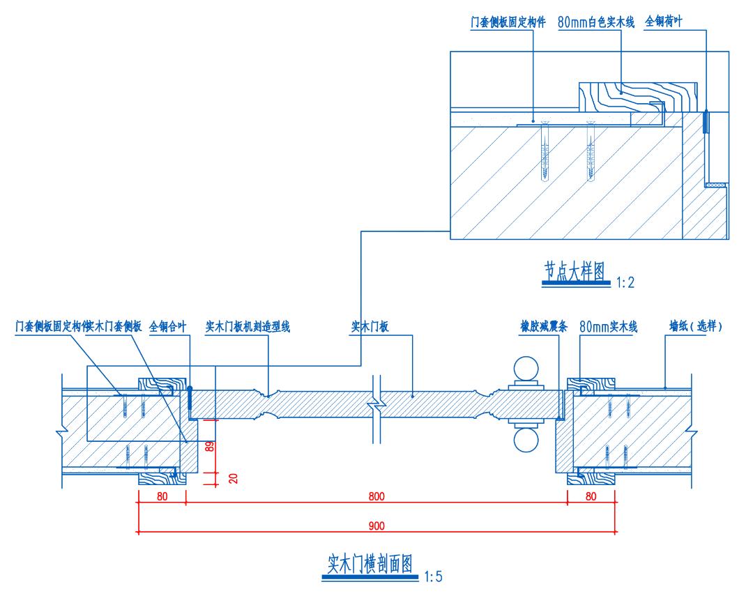
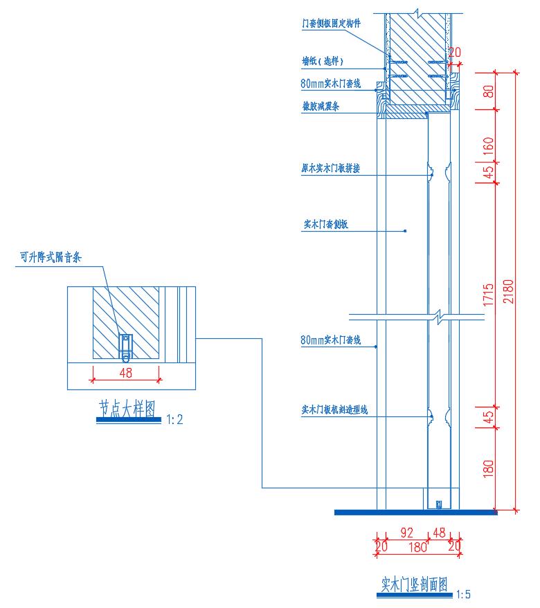
实木门剖面结构图



以上为本章节的全部内容,主要是讲解了讲解下实木门的通用施工图。
施工图内容出自“华建工艺学会官网”
本文编写单位
华建环境设计研究所编写
编辑:梁薇
图片:苏韵涛
审校:廖炽伟、范丝燕
发布于2021年4月
“实木门通用施工图
HJSJ-2022”
文案由华建工艺学会的团队发布
主要面向学生
由于文案的教学特点
它的内容可以自由复制、打印和分发
禁止商业用途
往 期 精 彩
Past pure color
↓↓
镜面玻璃天花通用施工图 HJSJ-2022

更多设计看点→点击关注华建环境设计研究所
