越来越多的人既在城里买了房子,也会在老家给爸妈建一栋房子,什么样的自建房最适合农村养老居住呢?当然是一层自建房了,家人生活舒适,特别方便老人家居住。今天小编给大家介绍三款带两个卫生间的一层养老房,越看越漂亮,住上让你的生活也越来越顺利。
第一款:一层4间自建房设计图以及户型图,占地160平左右

效果图展示
简单实用,入户既是玄关,与客厅连接一起,使空间更加宽敞,餐厅和厨房相连,用餐方便,两间卧室朝北,一间朝南,有独立卫生间。外观精致漂亮,真正做到了好货也便宜。
占地面积:17.5m*9.5m,162.13平方米左右;
建筑层高:一层;
建筑高度:6.225米(含屋顶);
设计功能:
一层户型:玄关、客厅、卧室(带卫生间)、卧室x2、卫生间、厨房、餐厅

户型图
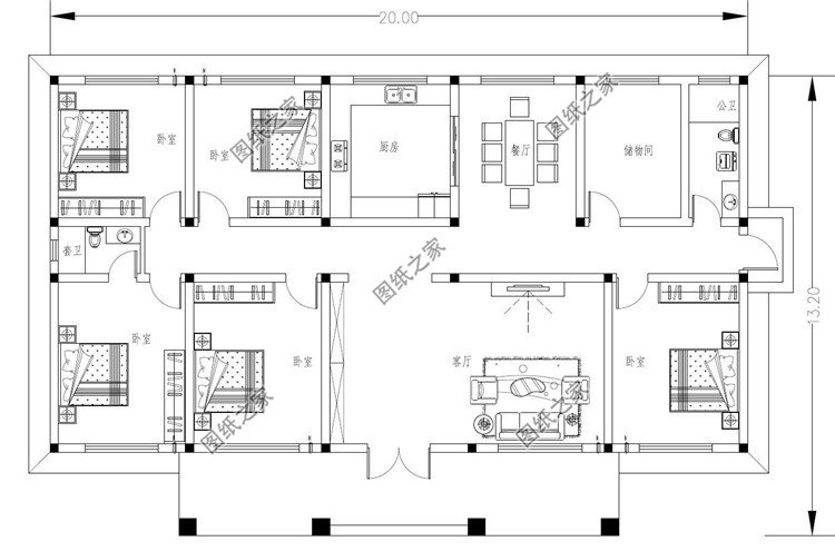
第二款:农村一层5间欧式平房设计图以及户型图,户型精致

效果图展示
216平方米,简单的风格打造不凡的整体美感。别墅采用的是欧式风格,简约方正的整体设计,外墙装修也属于耐看型的,黄色的墙面、褐色外墙砖搭配红色的屋檐,看上去搭配得刚刚好,看着很舒心。既有年轻人喜欢的精致线条,也有长辈喜欢的端庄大气。别墅正面的门廊设计气派体面,巍峨的方形廊柱设计,精致又灵动。室内功能齐全,四室二厅,满足一代人的居住需求!
占地面积:20m*13.2m,216平方米左右;
建筑层高:一层;
建筑高度:6.59米(含屋顶);
设计功能:
一层户型:客厅、储物间、厨房、餐厅、卧室(卫生间)、卧室x4、卫生间

户型图展示
第三款:一层简单自建房设计图以及户型图,占地面积140平方米

效果图展示
绛红色的斜坡屋顶清新明快,屋檐的线条轻盈流畅,颇具造型感。黄色墙身素雅简单,没有过多的外墙装饰,但是气质却更加平易近人。进入屋内,迎面的便是宽敞通透的客厅以及餐厅。设有四间卧室,厨房与餐厅处在同一区域,方便干净。大面积的门厅给人一种大气之风,合理利用可以进行适当的植物配置进行装饰。
占地面积:13.76m*9.6m,137.76平方米左右;
建筑层高:一层;
建筑高度:6.3米(含屋顶);
设计功能:
一层户型:客厅、厨房、餐厅、卧室x4、卫生间x2;

户型图展示
今天小编介绍的带两个卫生间的一层自建房就到这里了,每一款都有全套的施工图纸,喜欢就收藏吧!