咱们先看看悬挑脚手架施工会出现哪些不规范操作的问题:
1、工字钢规格不满足方案要求,搭设横向间距过大。
2、阳角、阳台等特殊部位悬挑梁布置不符合要求。
3、没有采用双钢丝绳,或者钢丝绳直径不满足要求。
4、锚固螺栓与工字钢间隙过大,没有用硬木楔楔紧。
5、外架剪刀撑搭设不符合要求。
6、工字钢挑在主体结构悬挑梁部位,没有加固措施。
7、脚手架步距,立杆横距不满足要求。等等
我就不一一列举了,关于此类问题很多,我们平时在现场是否有注意到呢?作为一名合格的搬砖者,我们应该心里有数,不规范操作都要按要求整改的。
下面讲一下型钢悬挑脚手架施工方法
本工程悬挑脚手架采用16#工字钢水平梁、上拉杆件采用6×19Φ15.5钢丝绳(公称抗拉强度1700Mpa)。Φ20吊环,阳角、阳台、阳台两侧等部位采用双钢丝绳,每根钢丝绳都使用独立的吊环,钢梁后锚固Φ16。脚手架采用单立杆双排脚手架,脚手架步距1.8米,立杆纵距1.5米,立杆横距0.85米,距离外墙面0.3米。连墙杆采用两步三跨设置,双扣件连接。
以上是通过验算合格采用的。
钢梁参数表:

后面的计算书对于普通部位型钢悬挑脚手架(扣件式)计算过程,计算软件采用是XX安全计算软件。
技术参数
【型钢悬挑脚手架(扣件式)】

一、 工艺流程
【型钢悬挑脚手架(扣件式)】
预埋件设置→安装悬挑主梁→悬挑主梁上下支撑杆件设置→立杆定位点设置→纵向扫地杆→立杆→横向扫地杆→横向水平杆→纵向水平杆(格栅) →剪刀撑→连墙件→铺脚手板→扎防护栏杆→扎安全网
二、 施工方法
1、 悬挑梁定位
定距定位,放样悬挑梁位置并做好标记。悬挑梁必须保证有足够的锚固强度和截面抗屈曲能力,悬挑长度应按设计确定。普通主梁悬挑时,立杆直接支承在悬挑梁上,水平悬挑梁的纵向间距与上部脚手架立杆的纵向间距相同;上部脚手架立杆与挑梁支承结构应有可靠的定位连接措施,以确保上部架体的稳定。通常采用在挑梁或纵向联粱上焊接150-200mm、外径Φ40mm的钢管或外径Φ25mm的钢筋,立杆套在其外,并同时在立杆下部设置扫地杆。

脚手架立杆与挑架的连接图
2、 悬挑梁宜采用钢筋拉环、U型螺栓进行锚固:
(1)、 型钢悬挑梁固定端应采用2个(对)及以上钢筋拉环或锚固螺栓与建筑结构梁板固定;
(2)、 钢筋预埋至砼板、砼梁底部,每侧平直段不小于0.6m;
(3)、 U型螺栓预埋至砼板、砼梁底部,2根1.5m长直径18mmHRB335钢筋放置U型筋上部;
(4)、 钢筋拉环、U型螺栓与悬挑梁间隙用木楔楔紧;
(5)、 锚固处楼板上应预先配置用于承受悬挑梁锚固端作用引起负弯矩的受力钢筋,否则应采取支顶卸载措施;

3、 特殊部位悬挑梁布置:
(1)、悬挑结构部位:悬挑梁支承点应设置在结构梁上,不得设置在外伸阳台上或悬挑板上,否则应采取加固措施;

悬挑结构处的悬挑梁布置
(2)、建筑结构阳角部位:悬挑梁宜扇形布置,如果阳角处悬挑梁交汇,无法保证伸入端长度,在交汇处采用两侧悬挑梁与阳角处悬挑梁焊接,上下各增设-200×200×10mm钢板,所有接触点必须满焊,焊脚高度不得小于8mm,且不得有气孔、夹渣、漏焊等现象;如果结构阳角部位钢筋较多不能留洞,可采用设置预埋件焊接型钢三角架等措施;

阳角处的悬挑梁布置1

阳角处的悬挑梁布置2
(3)、楼梯部位:可采取阳台处的悬挑梁的上拉钢丝绳方法,或采用内置横压梁方法,横压梁搁置在楼梯间的两侧框架梁上,采用预埋件固定。因压梁布置在楼梯间处,因此需做好安全警示,铺设好人员上下踏步,以保证人员上下的安全。

楼梯间悬挑梁布置
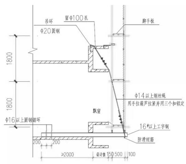
(4)、飘窗部位

飘窗处悬挑梁布置
(5)、施工电梯部位

施工电梯飘悬挑梁布置
4、 脚手架底部应严密封闭,防止钢管等材料掉落伤人。上面使用模板拼缝整齐不留空隙,架体上的杂物要及时清理干净。

5、 钢丝绳卸荷
(1)、梁板内的受拉锚环,必须在混凝土达到设计强度的75%以上方可受力使用。拉钩、吊环一定要采用圆钢制作,不允许用螺纹钢筋。
(2)、派工人扎接上部拉环的钢丝绳,至少采用3个卡头扎紧,钢丝绳扎头螺丝全要拧紧,不允许松动。
(3)、对整个架体进行安全检查,发现钢丝绳松动、锈蚀或焊缝脱焊等情况时要立即进行修复,合格后方可继续使用。

钢丝绳绳卡做法
6、 立杆设置
(1)、 立杆采用对接接头连接,立杆与纵向水平杆采用直角扣件连接。接头位置交错布置,两个相邻立杆接头避免出现在同步同跨内,并在高度方向错开的距离不小于50cm;各接头中心距主节点的距离不大于步距的1/3。
(2)、 上部单立杆与下部双立杆交接处,采用单立杆与双立杆之中的一根对接连接。主立杆与副立杆采用旋转扣件连接,扣件数量不应少于2个。每根立杆底部应设置垫块,并且必须设置纵、横向扫地杆。纵向扫地杆应采用直角扣件固定在距底座上皮不大于200mm处立杆上。横向扫地杆亦应采用直角扣件固定在紧靠纵向扫地杆下方立杆上。
(3)、 当立杆基础不在同一高度上时,必须将高处的纵向扫地杆向低处延长两跨与立杆固定,高低差不应大于1m。靠边坡上方的立杆轴线到边坡的距离不应小于500mm。
(4)、 立杆的垂直偏差应控制在不大于架高的1/400。
(5)、 开始搭设立杆时,每隔6跨设置一根抛撑,直至连墙件安装稳定后,方可根据情况拆除。
(6)、 立杆及纵横向水平杆构造要求见下图。

立面图

剖面图

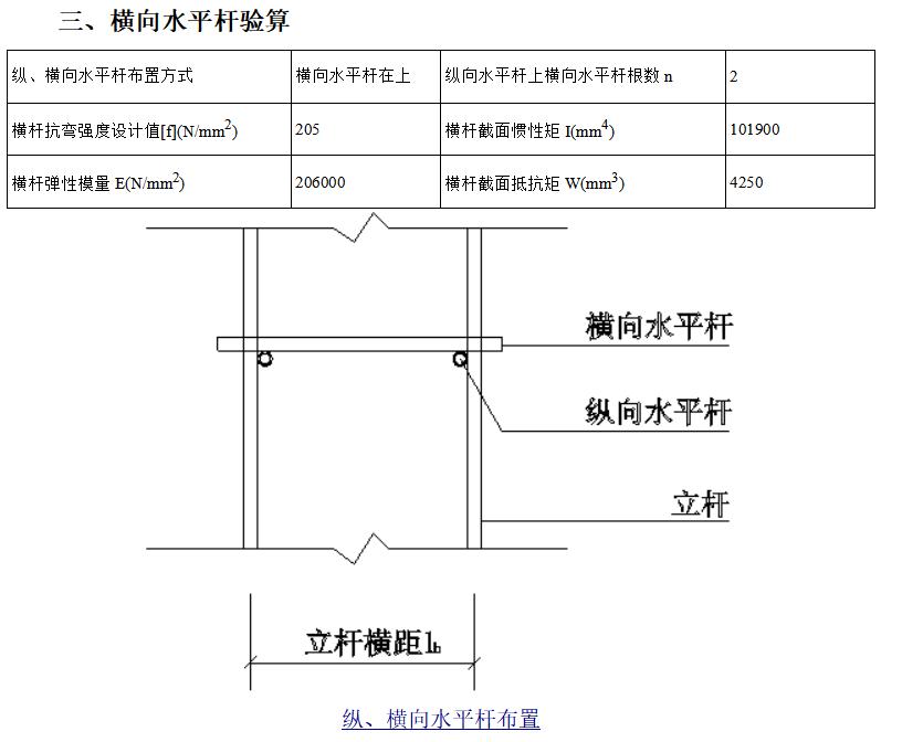
7、 纵、横向水平杆
(1)、 纵向水平杆设置在立杆内侧,其长度不小于3跨。纵向水平杆接长宜采用对接扣件连接,也可采用搭接。要求如下:
当采用对接时,对接扣件应该交错布置,两根相邻纵向水平杆接头不宜设置在同步或同跨;不同步或不同跨两相邻接头在水平方向错开距离不应小于500mm;各接头中心至最近主节点的距离不宜大于纵距的1/3。
当采用搭接时,搭接长度不应小于1m,应等间距设置3个旋转扣件固定,端部扣件盖板边缘至搭接纵向水平杆杆端的距离不应小于100mm。

(2)、 立杆与纵向水平杆交点处设置横向水平杆,两端固定在立杆上,以形成空间结构整体受力。

8、 剪刀撑设置
(1)、 高度在24m及以上的双排脚手架应在外侧全立面连续设置剪刀撑;高度在24m以下的单、双排脚手架,均必须在外侧两端、转角及中间间隔不超过15m的立面上,各设置一道剪刀撑,并由底至顶连续设置。

(2)、 每道剪刀撑宽度不应小于4跨,且不应小于6m,斜杆与地面的倾角宜在45°~60°之间。
(3)、剪刀撑斜杆的接长应采用搭接或对接,采用搭接连接时,搭接长度不小于1m,应采用不少于2个旋转扣件固定,端部扣件盖板的边缘至杆端距离不小于100mm。

(4)、 剪刀撑斜杆应用旋转扣件固定在与之相交的横向水平杆的伸出端或立杆上,旋转扣件中心线离主节点的距离不宜大于150mm。
(5)、 一字型、开口型双排架两断口必须设置横向斜撑,24米以上架体在架体拐角处及中间每六跨设置一道搭接斜撑。横向斜撑应在同一节间,由底到顶
呈“之”字型布置,斜撑交叉和内外大横杆相连到顶。

9、 脚手板、脚手片的铺设要求
(1)、 脚手架里排立杆与结构层之间均应铺设脚手板,内外立杆间应满铺脚手板,无探头板。将脚手板两端与水平杆可靠固定,严防倾翻。
(2)、 满铺层脚手片必须垂直墙面横向铺设,满铺到位,不留空位,不能满铺处必须采取有效的防护措施。
脚手片须用12-14#铅丝双股并联绑扎,不少于4点,要求绑扎牢固,交接处平整,铺设时要选用完好无损的脚手片,发现有破损的要及时更换。

(3)、 在拐角、斜道平台口处的脚手板,应与横向水平杆可靠连接,防止滑动;
10、 防护栏杆
(1)、 脚手架外侧使用建设主管部门认证的合格绿色密目式安全网封闭,且将安全网固定在脚手架外立杆内侧。
(2)、 选用18#铅丝张挂安全网,要求严密、平整。
(3)、 脚手架外侧施工作业层必须在0.6m、1.2m高位置设置2道防护栏杆和18cm高挡脚板,栏杆和挡脚板均应搭设在外立杆的内侧。
(4)、 脚手架内侧形成临边的(如遇大开间门窗洞等),在脚手架内侧在0.6m、1.2m高位置设置2道防护栏杆和18cm高挡脚板。
11、 连墙件
(1)、 脚手架与建筑物按计算书中连墙件布置要求设拉结点。拉结点在转角范围内和顶部处加密。
(2)、 连墙件中的连墙杆应呈水平设置,当不能水平设置时,应向脚手架一端下斜连接;
(3)、 连墙件应从底层第一步纵向水平杆处开始设置,当该处设置有困难时,应采用其它可靠措施固定;
(4)、 拉结点应保证牢固,防止其移动变形,且尽量设置在外架纵横向水平杆接点处。宜靠近主节点设置,偏离主节点的距离不应大于300mm;
(5)、 外墙装饰阶段拉结点,也须满足上述要求,确因施工需要除去原拉结点时,必须重新补设可靠,有效的临时拉结点,以确保外架安全可靠;
(6)、 当脚手架下部暂不能设连墙件时应采取防倾覆措施。当搭设抛撑时,抛撑应采用通长杆件并用旋转扣件固定在脚脚手架上,与地面的倾角应在45°~60°之间;连接点中心至主节点的距离不应大于300mm。抛撑应在连墙件搭设后方可拆除。
(7)、 连墙件构造示意图:

12、 架体内封闭
(1)、 脚手架的架体内立杆距墙体净距最多为200mm,如因结构设计的限制大于200mm的必须铺设站人板,站人板设置平整牢固。
(2)脚手架施工层内立杆与建筑物之间应采用脚手片或木板进行封闭。作业层下,需在每层楼板位置的外架上铺一层钢板网作楼层的临边防护。

(3)、 施工层以下脚手架每隔10m以及底部用双层网兜进行封闭。

四、 操作要求
脚手架搭设技术措施
1、 脚手架必须配合施工进度搭设,一次搭设高度不应超过相邻连墙件以上二步;如果超过相邻连墙件以上两步,无法设置连墙件时,应采取撑拉固定措施与建筑结构拉结。
2、 每搭完一步脚手架后,应按《建筑施工扣件式钢管脚手架安全技术规范》JGJ130-2011表8.2.4的规定校正步距、纵距、横距及立杆的垂直度。
3、 立杆搭设应符合下列规定:
(1)、 相邻立杆的对接连接应符合《建筑施工扣件式钢管脚手架安全技术规范》JGJ130-2011第6.3.6条的规定;
(2)、 脚手架开始搭设立杆时,应每隔6跨设置一根抛撑,直至连墙件安装稳定后,方可根据情况拆除;
(3)、 当架体搭设至有连墙件的主节点时,在搭设完该处的立杆、纵向水平杆、横向水平杆后,应立即设置连墙件。
4、 脚手架纵向水平杆的搭设应符合下列规定:
(1)、 脚手架纵向水平杆应随立杆按步搭设,并应采用直角扣件与立杆固定;
(2)、 纵向水平杆的搭设应符合《建筑施工扣件式钢管脚手架安全技术规范》JGJ130-2011第6.2.1条的规定;
(3)、 在封闭型脚手架的同一步中,纵向水平杆应四周交圈设置,并应用直角扣件与内外角部立杆固定。
5、 脚手架横向水平杆搭设应符合下列规定:
(1)、 搭设横向水平杆应符合《建筑施工扣件式钢管脚手架安全技术规范》JGJ130-2011第6.2.2条的构造规定;
(2)、 双排脚手架横向水平杆的靠墙一端至墙装饰面的距离不应大于100mm;
(3)、 单排脚手架的横向水平杆不应设置在下列部位:
1)、 设计上不允许留脚手眼的部位;
2)、 过梁上与过梁两端成60°角的三角形范围内及过梁净跨度1/2的高度范围内;
3)、 宽度小于1m的窗间墙;
4)、 梁或梁垫下及其两侧各500mm的范围内;
5)、 砖砌体的门窗洞口两侧200mm和转角处450mm的范围内;其他砌体的门窗洞口两侧300mm和转角处600mm的范围内;
6)、 墙体厚度小于或等于180mm;
7)、 独立或附墙砖柱,空斗砖墙、加气块墙等轻质墙体;
8)、 砌筑砂浆强度等级小于或M2.5的砖墙。
6、 脚手架纵向、横向扫地杆搭设应符合《建筑施工扣件式钢管脚手架安全技术规范》JGJ130-2011第6.3.2条、第6.3.3条的规定。
7、 脚手架连墙件安装应符合下列规定:
(1)、 连墙件的安装应随脚手架搭设同步进行,不得滞后安装;
(2)、 当单、双排脚手架施工操作层高出相邻连墙件以上两步时,应采取确保脚手架稳定的临时拉结措施,直到上一层连墙件安装完毕后再根据情况拆除。
8、 脚手架剪刀撑与双排脚手架横向斜撑应随立杆、纵向和横向水平杆等同步搭设,不得滞后安装。
9、 脚手架门洞搭设应符合《建筑施工扣件式钢管脚手架安全技术规范》JGJ130-2011第6.5节的造规定。
10、 扣件安装应符合下列规定:
(1)、 扣件规格必须与钢管外径相同;
(2)、 螺栓拧紧扭力矩不应小于40N·m,且不应大于65N·m;
(3)、 在主节点处固定横向水平杆、纵向水平杆、剪刀撑、横向斜撑等用的直角扣件、旋转扣件的中心点的相互距离不应大于150mm;
(4)、 对接口径开口应朝上或朝内;
(5)、 各杆件端头伸出扣件盖板边缘长度不应小于100mm。
11、 作业层、斜道的栏杆和挡脚板的搭设应符合下列规定:
(1)、 栏杆和挡脚板均应搭设在外立杆的内侧;
(2)、 上栏杆上皮高度应为1.2m;
(3)、 挡脚板高度不应小于180mm;
(4)、 中栏杆应居中设置。
12、 脚手板的铺设应符合下列规定:
(1)、 脚手架应铺满、铺稳,离墙面的距离不应大于150mm;
(2)、 采用对接或搭接时均应符合《建筑施工扣件式钢管脚手架安全技术规范》JGJ130-2011第6.2.4条的规定;脚手板探头应用直径3.2mm镀锌钢丝固定在支承杆件上;
(3)、 在拐角、斜道平台口处的脚手板,应用镀锌钢丝固定在横向水平杆上,防止滑动。
13、 钢管架应设置避雷针,分置于主楼外架四角立杆之上,并联通纵向水平杆,形成避雷网络,并检测接地电阻不大于30Ω。
14、 外脚手架不得搭设在距离外架空线路的安全距离内,并做好可靠的安全接地处理。
15、 定期检查脚手架,发现问题和隐患,在施工作业前及时维修加固,以达到坚固稳定,确保施工安全。
16、 外脚手架严禁钢竹、钢木混搭,禁止扣件、绳索、铁丝、竹篾、塑料篾混用。
17、 外脚手架搭设人员必须持证上岗,并正确使用安全帽、安全带、穿防滑鞋。
18、 严禁脚手板存在探头板,铺设脚手板以及多层作业时,应尽量使施工荷载内、外传递平衡。
19、 保证脚手架体的整体性,不得与井架、升降机一并拉结,不得截断架体。
20、 结构外脚手架每支搭一层,支搭完毕后,经项目部安全员验收合格后方可使用。任何班组长和个人,未经同意不得任意拆除脚手架部件。
21、 严格控制施工荷载,脚手板不得集中堆料施荷,施工荷载不得大于3kN/m2,确保较大安全储备。
22、 各作业层之间设置可靠的防护栅栏,防止坠落物体伤人。
脚手架拆除技术措施
1、 拆架前:
(1)、 应全面检查脚手架的扣件连接、连墙件、支撑体系等是否符合构造要求;
(2)、 应根据检查结果补充完善施工组织设计中的拆除顺序和措施,经主管部门批准后方可实施;
(3)、 应由单位工程负责人进行拆除安全技术交底;
(4)、 应清除脚手架上杂物及地面障碍物。
2、 拆架时应划分作业区,周围设绳绑围栏或竖立警戒标志,地面应设专人指挥,禁止非作业人员进入。当脚手架采取分段、分立面拆除时,对不拆除的脚手架两端,应先按《建筑施工扣件式钢管脚手架安全技术规范》JGJ130-2011第6.4.4条、第6.6.4条、第6.6.5条设置连墙件和横向斜撑加固。
3、 拆架的高处作业人员应戴安全帽、系安全带、扎裹腿、穿软底防滑鞋。
4、 拆架程序应遵守“由上而下,先搭后拆”的原则,即先拆拉杆、脚手板、剪刀撑、斜撑,而后拆横向水平杆、纵向水平杆、立杆等,并按“一步一清”原则依次进行。严禁上下同时进行拆架作业。
5、 拆立杆时,要先抱住立杆再拆开最后两个扣件,拆除纵向水平杆、斜撑、剪刀撑时,应先拆除中间扣件,然后托住中间,再解端头扣件。
6、 连墙件必须随脚手架逐层拆除,严禁先将连墙件整层或数层拆除后再拆脚手架;分段拆除高差不应大于2步,如高差大于2步,应增设连墙件加固;当脚手架拆至下部最后一根长立杆的高度(约6.5m)时,应先在适当位置搭设临时抛撑加固后,再拆除连墙件。
7、 拆除时要统一指挥,上下呼应,动作协调,当解开与另一人有关的结扣时,应先通知对方,以防坠落。
8、 拆架时严禁碰撞脚手架附近电源线,以防触电事故。
9、 在拆架时,不得中途换人,如必须换人时,应将拆除情况交代清楚后方可离开。
10、 拆下的材料要徐徐下运,严禁抛掷。运至地面的材料应按指定地点随拆随运,分类堆放,“当天拆当天清”,拆下的构配件应按《建筑施工扣件式钢管脚手架安全技术规范》JGJ130-2011的规定及时检查、整修与保养,并应按品种、规格分别存放。
11、 高层建筑脚手架拆除,应配备良好的通讯装置。
12、 当天离岗时,应及时加固尚未拆除部分,防止存留隐患造成复岗后的人为事故。
13、 如遇强风、大雨、雪等特殊气候,不应进行脚手架的拆除,严禁夜间拆除。
14、 翻掀垫铺竹笆应注意站立位置,并应自外向里翻起竖立,防止外翻将竹笆内未清除的残留物从高处坠落伤人。
五、 检查要求
1、 脚手架搭设前,对进入现场的各种构配件应按下列规定进行检查验收,不合格的应及时清除出场
(1)、 构配件应有相应的产品标识及产品质量合格证;
(2)、 构配件应有相应的产品主要技术参数及产品使用说明书;
(3)、 当对构配件质量有疑问时,应进行质量抽检和实验。
2、 脚手架检查验收严格按照《建筑施工安全检查标准》JGJ59的检查评分表进行。
3、 脚手架使用期间的检查
(1)、 脚手架使用期间必须设专人经常检查,当其从安全维护架转换为装饰施工时,必须及时进行检查,符合要求后,必须经过项目技术负责人(项目经理)签字批准,才能使用。
(2)、 检查后不合格部位必须及时修复或更换,符合规定后,方准许继续使用。
4、 脚手架必须验收检查合格后办妥脚手架验收手续,在脚手架醒目处挂上脚手架验收合格牌后,方可投入使用。
5、 架体内必须做到每层封闭(即进行隔离),且不能大于4步。
6、 施工人员必须严格执行《建设工程施工安全技术操作规程》。
六、 计算书
型钢悬挑脚手架(扣件式)计算书
计算依据:
1、《建筑施工脚手架安全技术统一标准》GB51210-2016
2、《建筑施工扣件式钢管脚手架安全技术规范》JGJ130-2011
3、《建筑施工门式钢管脚手架安全技术规范》JGJ128-2010
4、《建筑结构荷载规范》GB50009-2012
5、《钢结构设计标准》GB50017-2017
6、《混凝土结构设计规范》GB50010-2010
架体验算
一、脚手架参数

二、荷载设计

计算简图:



承载能力极限状态
q=1.2×(0.031+Gkjb×la/(n+1))+1.4×Gk×la/(n+1)=1.2×(0.031+0.35×1.5/(2+1))+1.4×3×1.5/(2+1)=2.347kN/m
正常使用极限状态
q'=(0.031+Gkjb×la/(n+1))=(0.031+0.35×1.5/(2+1))=0.206kN/m
计算简图如下:

1、抗弯验算
Mmax=max[qlb 2/8,qa1 2/2]=max[2.347×0.852/8,2.347×0.152/2]=0.212kN·m
σ=γ0Mmax/W=1×0.212×106/4250=49.883N/mm2≤[f]=205N/mm2
满足要求!
2、挠度验算
νmax=max[5q'lb 4/(384EI),q'a1 4/(8EI)]=max[5×0.206×8504/(384×206000×101900),0.206×1504/(8×206000×101900)]=0.067mm
νmax=0.067mm≤[ν]=min[lb/150,10]=min[850/150,10]=5.667mm
满足要求!
3、支座反力计算
承载能力极限状态
Rmax=q(lb+a1)2/(2lb)=2.347×(0.85+0.15)2/(2×0.85)=1.381kN
正常使用极限状态
Rmax'=q'(lb+a1)2/(2lb)=0.206×(0.85+0.15)2/(2×0.85)=0.121kN
四、纵向水平杆验算
承载能力极限状态
由上节可知F1=Rmax=1.381kN
q=1.2×0.031=0.037kN/m
正常使用极限状态
由上节可知F1'=Rmax'=0.121kN
q'=0.031kN/m
1、抗弯验算
计算简图如下:

弯矩图(kN·m)
σ=γ0Mmax/W=1×0.56×106/4250=131.87N/mm2≤[f]=205N/mm2
满足要求!
2、挠度验算
计算简图如下:

νmax=0.423mm≤[ν]=min[la/150,10]=min[1500/150,10]=10mm
满足要求!
3、支座反力计算
承载能力极限状态
Rmax=3.191kN
五、扣件抗滑承载力验算
横杆与立杆连接方式
单扣件
扣件抗滑移折减系数
0.9
扣件抗滑承载力验算:
横向水平杆:Rmax=1×1.381kN≤Rc=0.9×8=7.2kN
纵向水平杆:Rmax=1×3.191kN≤Rc=0.9×8=7.2kN
满足要求!
六、荷载计算

立杆静荷载计算
1、立杆承受的结构自重标准值N G1k
单外立杆:NG1k=(gk+(lb+a1)×n/2×0.031/h)×H=(0.12+(0.85+0.15)×2/2×0.031/1.8)×15.6=2.142kN
单内立杆:NG1k=2.142kN
2、脚手板的自重标准值N G2k1
单外立杆:NG2k1=(H/h+1)×la×(lb+a1)×Gkjb×1/1/2=(15.6/1.8+1)×1.5×(0.85+0.15)×0.35×1/1/2=2.537kN
1/1表示脚手板1步1设
单内立杆:NG2k1=2.537kN
3、栏杆与挡脚板自重标准值N G2k2
单外立杆:NG2k2=(H/h+1)×la×Gkdb×1/1=(15.6/1.8+1)×1.5×0.17×1/1=2.465kN
1/1表示挡脚板1步1设
4、围护材料的自重标准值N G2k3
单外立杆:NG2k3=Gkmw×la×H=0.01×1.5×15.6=0.234kN
5、构配件自重标准值N G2k 总计
单外立杆:NG2k=NG2k1+NG2k2+NG2k3=2.537+2.465+0.234=5.236kN
单内立杆:NG2k=NG2k1=2.537kN
立杆施工活荷载计算
外立杆:NQ1k=la×(lb+a1)×(njj×Gkjj)/2=1.5×(0.85+0.15)×(1×3)/2=2.25kN
内立杆:NQ1k=2.25kN
组合风荷载作用下单立杆轴向力:
单外立杆:N=1.2×(NG1k+ NG2k)+1.4×NQ1k=1.2×(2.142+5.236)+ 1.4×2.25=12.005kN
单内立杆:N=1.2×(NG1k+ NG2k)+1.4×NQ1k=1.2×(2.142+2.537)+ 1.4×2.25=8.766kN
七、钢丝绳卸荷计算



第1次卸荷验算
α1=arctan(ls/Hs)=arctan(3900/200)=87.064°
α2=arctan(ls/Hs)=arctan(3900/1100)=74.249°
钢丝绳竖向分力标准值,不均匀系数KX取1.5
由于脚手架所使用的钢丝绳应采用荷载标准值按容许应力法进行设计计算,计算钢丝绳竖向分力标准值时,立杆所受力按上面计算取标准值。
P1=Kf×KX×N×hj(n+1)/H×HL/la=0.8×1.5×6.93×11.7/15.6×1.5/1.5=6.237kN
P2=Kf×KX×N×hj(n+1)/H×HL/la=0.8×1.5×9.629×11.7/15.6×1.5/1.5=8.666kN
钢丝绳轴向拉力标准值
T1=P1/sinα1=6.237/sin87.064°=6.245kN
T2=P2/sinα2=8.666/sin74.249°=9.004kN
卸荷钢丝绳的最大轴向拉力标准值[Fg]=max[T1,T2]=9.004kN
绳夹数量:n=2.5[Fg]/T=2.5×9.004/15.19=2个≤[n]=4个
满足要求!
花篮螺栓验算:σ=[Fg]×103/(π×de 2/4)=9.004×103/(π×102/4)=114.644N/mm2≤[ft]=170N/mm2
满足要求!
钢丝绳:
查表得,钢丝绳破断拉力总和:Fg=152kN
[Fg]'=α× Fg/k=0.85×152/9=14.356kN≥[Fg]=9.004kN
满足要求!
吊环最小直径dmin=(4A/π)1/2=(4×[Fg]/([f]π))1/2=(4×9.004×103/(65π))1/2=14mm
d=20≥dmin
满足要求!
注:[f]为拉环钢筋抗拉强度,按《混凝土结构设计规范》9.7.6 每个拉环按2个截面计算的吊环应力不应大于65N/mm2
第1次卸荷钢丝绳直径15.5mm,必须拉紧至9.004kN,吊环直径为20mm。
满足要求!
八、立杆稳定性验算

1、立杆长细比验算
立杆计算长度l0=Kμh=1×1.5×1.8=2.7m
长细比λ=l0/i=2.7×103/16=168.75≤210
满足要求!
轴心受压构件的稳定系数计算:
立杆计算长度l0=Kμh=1.155×1.5×1.8=3.119m
长细比λ=l0/i=3.119×103/16=194.906
查《规范》表A得,φ=0.191
2、立杆稳定性验算
组合风荷载作用
底部卸荷段立杆
单立杆的轴心压力设计值N1=(1.2×(NG1k+NG2k)+1.4NQ1k)×(hx1+(1-Kf)
×(hx顶-hx1)+max[11.7,(1-Kf)×hj顶])/H=(1.2×(2.142+5.236)+1.4×2.25)
×(3.9+(1-0.8)×(3.9-3.9)+max[11.7,(1-0.8)×11.7])/15.6=12.005KN
顶部卸荷段立杆
单立杆的轴心压力设计值N2=(1.2×(NG1k+NG2k)+1.4×NQ1k)×(H-hx顶)/H
=(1.2×(2.142+5.236)+1.4×2.25)×(15.6-3.9)/15.6=9.004kN
单立杆轴心压力最大值N=max(N1、N2)=12.005KN
Mwd=φwγQMwk=φwγQ(0.05ζ1wklaH1 2)=0.6×1.4×(0.05×0.6×0.128×1.5×3.62)=0.063kN·m
σ=γ0[N/(φA)+ Mwd/W]=1×[12004.68/(0.191×398)+62705.664/4250]=172.673N/mm2≤[f]=205N/mm2
满足要求!
九、连墙件承载力验算

Nlw=1.4×ωk×2×h×3×la=1.4×0.139×2×1.8×3×1.5=3.153kN
长细比λ=l0/i=600/16=37.5,查《规范》表A.0.6得,φ=0.896
(Nlw+N0)/(φAc)=(3.153+3)×103/(0.896×398)=17.254N/mm2≤0.85×[f]=0.85×205N/mm2=174.25N/mm2
满足要求!
扣件抗滑承载力验算:
Nlw+N0=3.153+3=6.153kN≤0.9×12=10.8kN
满足要求!
悬挑梁验算
一、基本参数


三、主梁验算

荷载标准值:
q'=gk=0.205=0.205kN/m
第1排:F'1=F1'/nz=7.379/1=7.379kN
第2排:F'2=F2'/nz=7.379/1=7.379kN
荷载设计值:
q=1.2×gk=1.2×0.205=0.246kN/m
第1排:F1=F1/nz=12.005/1=12.005kN
第2排:F2=F2/nz=12.005/1=12.005kN


τmax=γ0Qmax/(8Izδ)[bh0 2-(b-δ)h2]=1×24.342×1000×[88×1602-(88-6)×140.22]/(8×11300000×6)=28.767N/mm2
τmax=28.767N/mm2≤[τ]=125N/mm2
符合要求!
3、挠度验算
变形图(mm)
νmax=6.459mm≤[ν]=2×lx/250=2×1350/250=10.8mm
符合要求!
4、支座反力计算
设计值:R1=-12.321kN,R2=37.057kN
四、悬挑主梁整体稳定性验算
受弯构件整体稳定性分析:
其中φb -- 均匀弯曲的受弯构件整体稳定系数:
查表《钢结构设计标准》(GB50017-2017)得,φb=2
由于φb大于0.6,根据《钢结构设计标准》(GB50017-2017)附表C,得到 φb'值为0.93。
γ0Mmax/(φb'Wxf)=1×20.029×106/(0.929×141×215×103)=0.711≤1
符合要求!
五、锚固段与楼板连接的计算


1、螺栓粘结力锚固强度计算
锚固点锚固螺栓受力:N/2 =12.321/2=6.161kN
螺栓锚固深度:h ≥ N/(4×π×d×[τb])=12.321×103/(4×3.14×18×2.5)=21.789mm
螺栓验算:
σ=γ0N/(4×π×d2/4)=1×12.321×103/(4×π×182/4)=12.105kN/mm2≤0.85×[ft]=42.5N/mm2
符合要求!
2、混凝土局部承压计算如下
混凝土的局部挤压强度设计值:
fcc=0.95×fc=0.95×14.3=13.585N/mm2
γ0N/2 =6.161kN ≤2×(b2-πd2/4)×fcc=2×(902-3.14×182/4)×13.585/1000=213.163kN
注:锚板边长b一般按经验确定,不作计算,此处b=5d=5×18=90mm
符合要求!