引言——家是幸福的港湾,是灵魂的栖息地;对于现代的居者而言,家更是一个盛放乐园的城堡。当城堡轰然开门的那一刻,幸福便会接踵而至,对于未来生活的一切想象,也都在一一兑现。

锦绣华府是中冶置业“锦绣系”高端住宅产品代表作,部分房源还可饱览江景,在“城不见江,江不见城”的南京,显得尤为珍贵。我们的业主周先生是南京某公司的主管,刚刚买了房子没有多久,想将自己的家装修得更漂亮,同时也想通过安装地暖和空调,来给自己的家实现一个舒适的生活环境。周先生是听朋友介绍找到江苏科宁集团的,虽然之前没有接触过空气能两联供这个产品,但后面经过江苏科宁集团工程师介绍之后,对产品非常认可,他决定新房子的装修做全屋的麦克维尔地暖+中央空调两联供系统。

户型情况:180㎡(4室2厅2卫) 客户需求 1、全屋安装地暖空调 2、每个房间都要独立控温 3、室内制冷噪音要小 根据客户的需求,江苏科宁集团工程师提出了以下方案,主机:麦克维尔A+Super系列全变频户式中央空调MAC060ER5-ADA,夏季制冷:麦克维尔家用静音型G款风机盘管,冬季制热:地暖盘管。

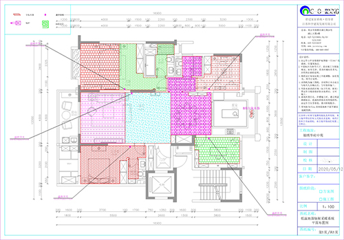
低温辐射地面采暖系统平面布置图

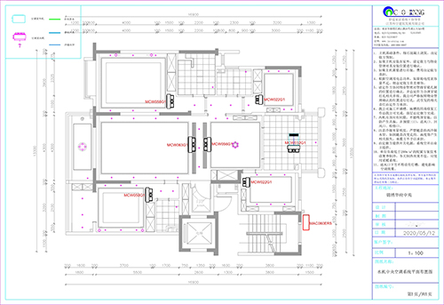
中央空调顶面布置图

系统原理图
系统点评 周先生对产品的稳定性和环保效果的要求很高,而麦克维尔中央空调舒适稳定、可靠便捷。麦克维尔家用中央空调会根据房间实际所需制冷量自动调节压缩机运转功率,从而达到节能效果和人体所需舒适度,更快、更省电。 第一步先进行中央空调内机的吊装和接管。此步骤建议才基础改造完工后,水电施工之前进行。 室内机做好防尘措施,避免后期其它工序带来的粉尘进入机体内,影响空调的使用效果甚至损坏设备。


管路、管件、阀件以及与管路接触的金属配件都要保温包裹起来,特别是保温材料接缝处、管道固定点、阀门等薄弱环节,防止空气进入碰到管壁产生冷凝水,将吊顶弄湿。


供回水管道安装横平竖直平稳,管卡间距0.8-1米,吊托支架固定牢靠。

冷凝水管保持>1%的排水坡度,保障排水顺畅,并贴上警示标识,防止误碰。

第二步:地暖进场施工。此步骤紧跟着水电完工之后。 粉红色的是边角保温条,用以防止热量沿墙角泄漏,同时也有吸收水泥层的受热膨胀,防止地面开裂的功能。



地暖管道上面铺设的硅晶网,水泥回填时可以起到加固水泥的作用。


客户反馈 周先生验收工程后,对江苏科宁集团的工程安装非常满意,周先生看过江苏科宁集团前期空调的安装,地暖的铺管,当场表扬江苏科宁集团的工艺漂亮整齐,是一个正规的公司,工艺标准,非常专业。经过的打造,让家充满了简约、节能、环保的欧美元素,不仅如此,两大系统一次集成安装,配合得非常好。