最近百度房产小编发现,东丽区的规划非常频繁,而且其配套也非常符合生活需求。近日不仅东丽区规划拥有大动作,宝坻区的规划也不甘示弱,体量也是较大的。具体两个区域的规划,我们一起来看看有多便民吧。
东丽区从自身区域说,还是很有优势的,不仅靠近市内河东区,还关联空港区的好利。在整体带动下,东丽区的发展也是逐步走上正轨。从新天津人角度来说,东丽区也是较多人的选择,从而让很多开发商"盯"上了东丽区,开始落户与东丽,建设与东丽,发展与东丽。
天津华侨城地产项目A2地块汇涛苑8栋楼规划

图片来源于网络
该项目将会规划8栋楼,其中包括汇涛苑1号楼、11号楼、38-40号楼、55-57号楼。总用地面积本次申报指标为45054.86㎡,容积率≤0.99,建筑密度17.20%,绿地率43.28%,绿地面积19500㎡.此次该项目规划将会入住1098人,达到392户。

图片来源于网络
汇涛苑此次规划配套上有居民健身场地、居委会、社区警务室,其最重要的配套还有社区卫生服务中心以及幼儿园。
由于之前教育"风波",天津在目前整体的规划上,都非常注重教育用地,该项目也不例外。
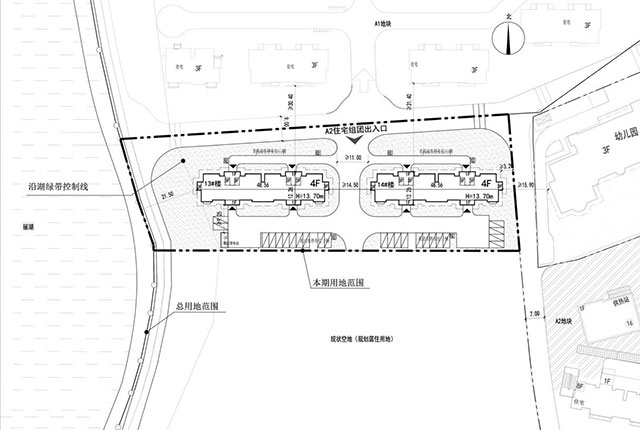
天津华侨城地产项目A2地块汇涛苑2栋楼规划

图片来源于网络
而汇涛苑其它2栋楼的规划分别是13-14号楼。总用地面积本次申报指标为72093.32㎡,容积率≤0.54,建筑密度46.92%,绿地率37.63%,绿地面积27132.14㎡.此次该项目规划将会入住45人,达到16户。

图片来源于网络
对于宝坻区,近年来的发展主要是南站的建设,以及其落户条件的优势,着实吸引了众多购房者的眼球。从而让宝坻区楼市得到的整体的改善和提高,一旦交通路网成熟,宝坻区的发展会越来越好,看到以下规划的体量就知道,其发展还是向好的。
宝 坻 艺馨佳苑50栋楼及地下车库规划

图片来源于网络
该11栋楼的规划其中包括35-36#、39-41#、54#、89-91#、104-106#;31-34#、37-38#、50-53#、67-70#、85-88#、100-103#;27-30#、46-49#、66#、81-84#、96-99#。

图片来源于网络
居住用地本次申报指标为254564.2㎡,居住容积率1.8,建筑密度30%,绿地率40%,绿地面积104320.63㎡,此次该项目规划居住人口会达到12281人,住宅平均层数11人。

图片来源于网络
其配套小编比较喜欢,有邮政所、社区养老院、社区卫生服务站、托老所、幼儿园等便民生活配套。毕竟现在很多家庭都面临上有老、下有小,这样可以减轻现在上班人们的压力,因为老人有所托,小孩有所依。