以前农村盖房子都是都是联系个当地的施工队,说下自己的要求,包工头手绘个平面图立面图就开干了。现在农村不同,经济允许的找专业设计师设计,预算不足的也可以在网上寻找自己满意的图纸。不过咱们老百姓都不是专业人员,对图纸这方面也不懂。咱们建房需要哪些图纸呢?设计师设计的建筑、结构图纸都有什么用呢?

今天新型房屋就来给大家科普一些关于建房图纸的那些事。

一、建筑
在农村盖房建筑图是可以通用的,主要来表示房屋的规划位置、外部造型、内部各房间的布置、内外装修构造和施工要求的图件。
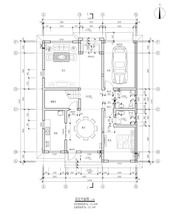
1.平面布局图:体现空间内布置和安排的图纸,细分一层平面图,二层平面图,三层平面图。

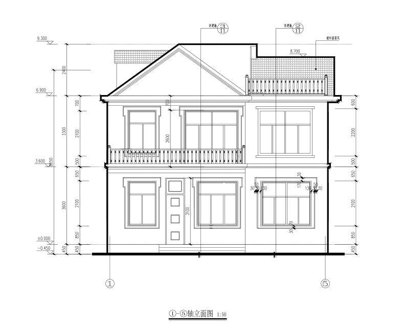
2.立面图:体现房屋造型与装修是否美观和立面装修的具体做法。
分为正立面图,侧立面图,背立面图,还可细分立面阴影图(就是有阳光照面时的立体一些的效果图)。

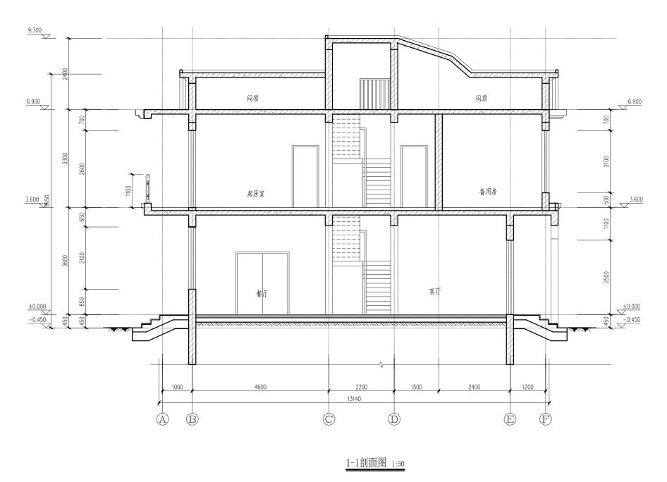
3.剖面图:体现地、楼、屋面的构造和楼梯的形式和构造的图纸。

4.楼梯图:表现楼梯具体构造的图纸。

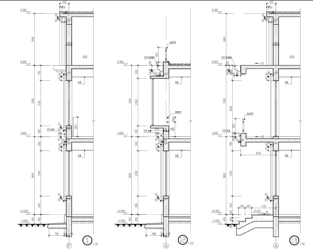
5.大样图:比节点图更加细部化,也就是表达节点图所无法表达的内容。

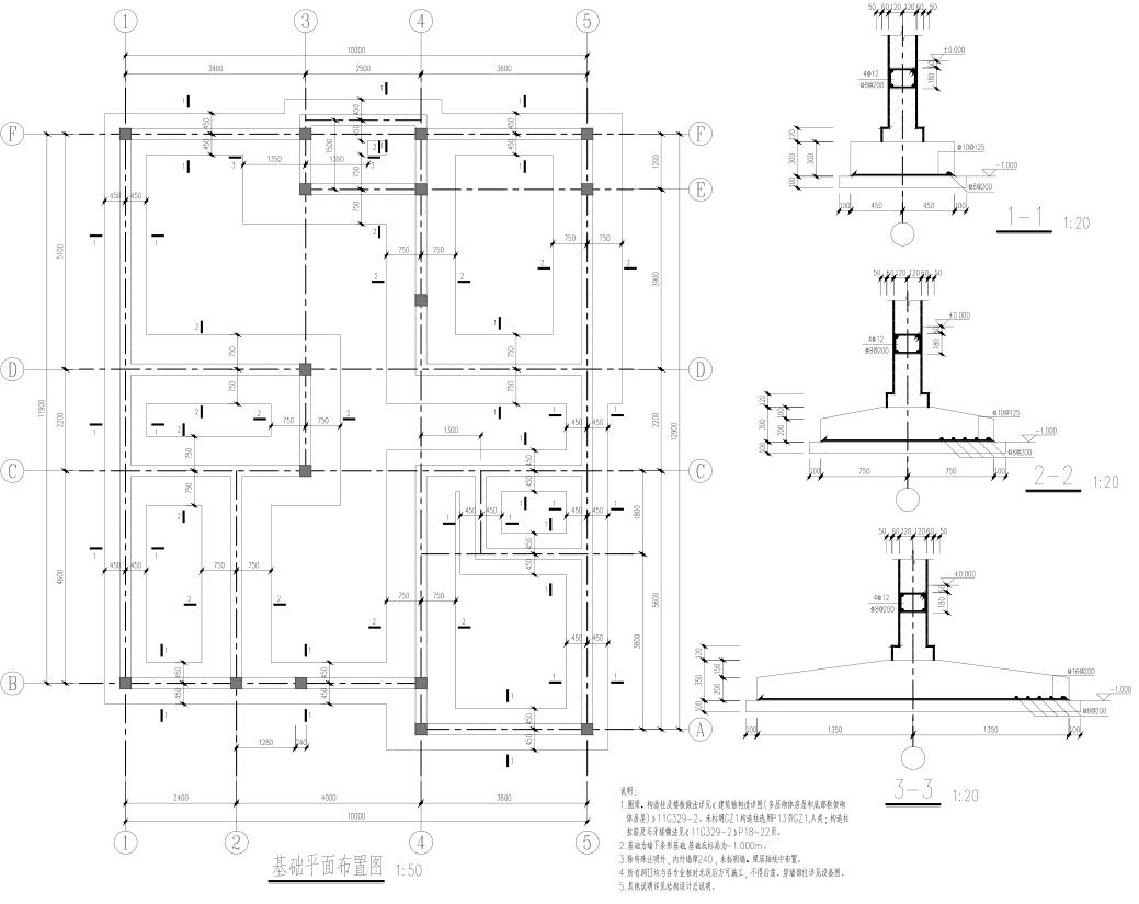
二、结构
结构设计说明:结构图纸是不通用的,因为每个人的宅基地地质情况和设防烈度不同、房子户型不同、结构布置不同,配筋都会不一样。专业的设计师根据建筑物实际情况科学的计算各种建材的用量,能在最大程度上节约咱们的建房成本。
看过很多的农村朋友盖房子,花了很多冤枉钱,但是该花钱加强的地方却没有做好,包工头只凭借他的经验说了算,好钢没有用到刀刃上,造成很大的浪费。所以经济条件允许的情况下,做结构设计还是很有必要的。

2.结构图:主要是用来说明房屋的结构性问题的图。比如说,用多大的梁,多大的基础,多大的柱子,多大的钢筋等。

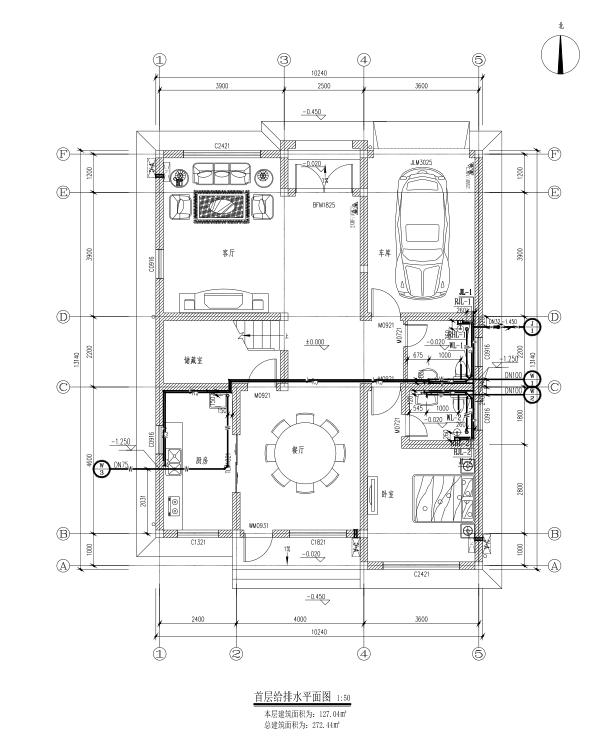
三、水电
1.给排水设计说明

2.给排水施工图:给水系统、排水系统具体构造和位置的图纸。

3.电气设计说明

4.电气施工图:电器设备、电线走向、照明系统具体构造和位置的图纸。

对于农村自建房的朋友来说,最常用到的图纸就是平面图。如果预算足够的话可以选择全套施工图,如果咱们预算不够,找一个专业设计师设计平面布局图也是不错的选择。
右上角关注,更多户型和农村建房经典案例!