
进阶训练营:第8期
学员:Yuna指导:羽 番
编辑:猴子妹
对软装设计感兴趣,却没有任何行业经验,该怎么办呢? 今天跟小伙伴分析下一位从其他行业转行的同学,从零开始学习软装,通过30天的时间,输出一整套软装设计方案,我们看看下她是怎么做到的呢?
Yuna是《软装主案设计师》进阶班 第8期 学员,在室内设计版块,她属于跨界设计师,她以前主要从事珠宝设计、产品研发等,因为对软装的热爱使她选择了我们的课程,这也是她的软装方案“处女作”。
本软装方案的主题是 “礼物” 。

封面:采用了近期小红书很火的奶茶配色,给客户的第一感觉就是很温馨,收到“ 礼物 ”会让我们感觉到心理暖暖的。

目录:本软装方案分为四个部分:礼物-主人,礼物-思考,礼物-方案,礼物-感受。接下来大家跟随我脚步一起来学习吧!
1、 礼物·主人

这里用一小段文字简单的讲明本软装方案为何以“礼物”来命名。

△空间的主题:礼物
这里简单的介绍了男女主人的兴趣爱好及性格特点,还从星座方面进行性格分析。
女主人 :细腻又叛逆的双鱼白羊座
男主人 :追求细节和品质的处女座
这部分可以看出小伙伴对星座也是深有研究啊。
2 、礼物·思考
主题二主要是对本软装方案思路的设计思考及设计手法、设计手法呈现进行分析。

小伙伴的设计思考来源于她欣赏的一位设计大咖:黑川雅之,其被誉为开创日本建筑和工业设计新时代的代表性人物。

△空间的8个审美趣味
设计思考就是来源于他对“美”的八字总结:间、并、破、素、秘、假、气、微。

软装设计手法也贯穿了小伙伴对“美”这八个字的理解。

下面运用“美”的八字总结来对本项目进行软装分析。
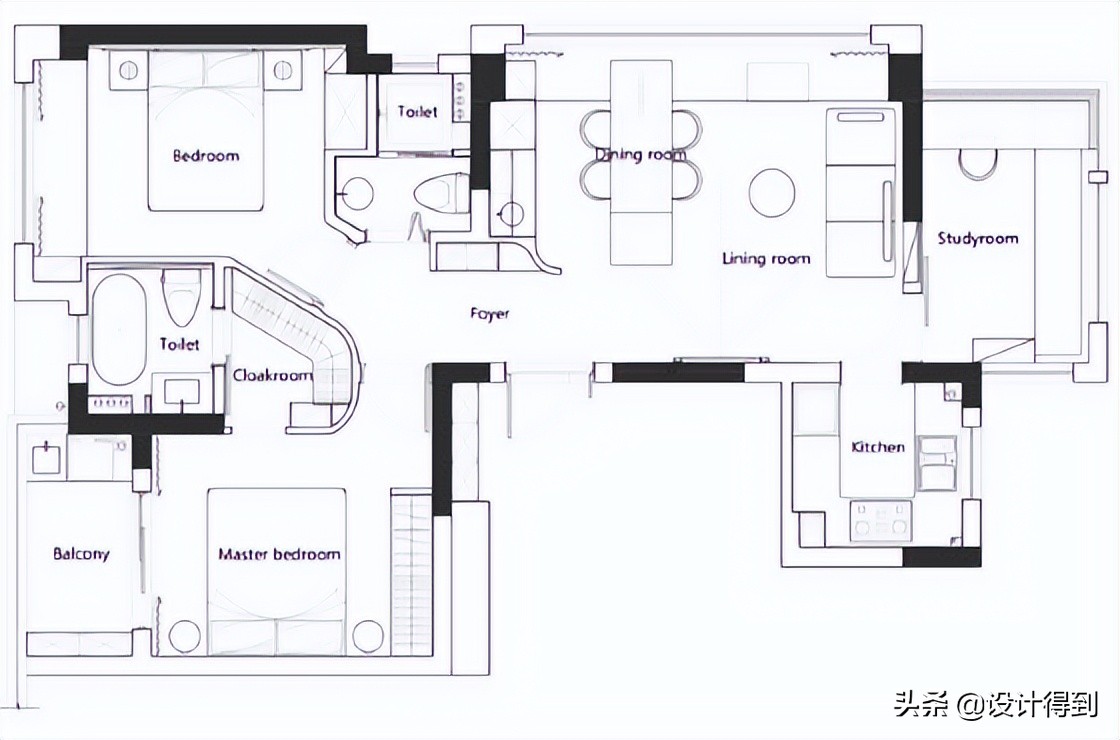
“间”,既明晰有模糊的空间,各自独立又连续整体。一个字一句话带领大家来到硬装回顾。


△空间的平面图

“并”多元并立的包容关系,讲解的是其软装方案的属性。

五种元素的多元及并立的包容关系:有艺术的感知、色彩的思考、科技的力量、含蓄的迸发、装饰的互动性。



这里给大家列举了空间中运用到的色彩,上面为硬装部分使用的色彩;下面为软装部分使用到的色彩,多为亮眼色彩,起点缀作用。

△空间的色彩分析
“素”返璞归真、自然打磨的美感,讲到的是家具分析。

其主要运用了木、石、藤、布、皮这五种材质,软装家具选型在空间里各部分的占比。多采用的是原创品牌,提高了空间的


“秘”,有意无意的隐藏引发想象。讲的是空间里的灯光部分,不一样灯光效果能营造出不一样的空间感官体验。

贴心的设计师给大家介绍到了空间中使用的灯具,并专业的对灯具色温、显色指数、照明方式进行分析,给大家提供了很好的参考。

各空间的落地灯选自“野口勇”的纸灯系列,此系列的灯具具有文化的氛围也不失格调。

△空间灯具选型
“假”万物皆可借来,顺势而为的无常之美。用饰品与艺术品的借光、借景、借力方式来诠释其软装表现。


“气”,无形却有力的空间延展性,运用香氛和音乐来表现,就是课程中老师讲到的五感六觉的运用,是给人最直观的感官体验。


“微”,微小处着眼,细节中包含一切,是设计师的情感表达及对男女主人最真挚的祝福。


3、 软装方案
设计师给每个空间都代入了一个设计主题,主题的设计能让我感受到设计师强大的文化知识储备。


客餐厅:礼物·久处,常用惊喜,久处不厌
主卧:礼物·夜曲,清缓的夜里丰富又微妙的情绪 次卧:礼物·流转 ,流转时光里的那些友人 书房:礼物·约定,与自己与爱人成长的预定

客餐厅—礼物·久处
客餐厅的家具选自Cassina(卡西纳)品牌沙发,这款Soriana sofa的中文名字也很有意思—“河马沙发”,温柔的不敢和金属“钢牙”的搭配,充满艺术感且萌萌哒。

△客厅区域的软装效果图


△客厅区域的软装效果图+产品选型


△餐厅区域的软装效果图+产品选型
客厅家具还使用到意大利知名家具品Cassina(卡西纳) 昌迪加尔单人椅,是最近很火单人椅款式之一。

△昌迪加尔单人椅
客厅灯具选用的是前面提到的野口勇Akari系列灯具Vitra,其东方禅意美学与西方现代工艺完美融合,能轻易的营造出温馨而宁静的氛围。


△客餐厅家具选型

主卧—礼物·夜曲

主卧的软装选款亮点在于选用了午夜蓝的床头吊灯,这款凯丽的灯的灯光方向变换能适应不同时段,亮眼的色彩也为空间增添了一份不单调的美。

△主卧空间的软装效果图


△主卧空间的家具选品
次卧—礼物·流转
次卧主要作为客卧使用,设计师对其的诠释是流转时光里的那些友人,这话让我感受到了主人对客人的用心与热情。

△次卧:流转时光里的那些友人


△次卧-软装产品选品
书房—礼物·约定
是男女主人思想沉思和互补碰撞的地方,也是他们对未来构思的启发地。

△书房-约定-思想的沉思互补碰撞里的约定


△书房-软装产品选型
阳台—礼物·四季
设计师给阳台定义的是有生命的四季,是最早感受到四季变换的地方。



△阳台软装示意-软装产品选型
4、 礼物·感受
感受最最直观就是五感六觉所给予的,设计师从花艺、香氛、音乐三个方面进行分析。


△花艺比例分析
第一款香氛推荐的是Mad et Len,其来自法国的奢华香薰品牌,是“香薰里的爱马仕”。其中的晶石香薰较为出名,采用手工打造的铁罐包装,看起来冷酷但还是一种古朴的美。


△空间香氛推荐
第二款香薰推荐的是Le Labo ,“Le Labo”源自法语,译为“实验室’,也是“香薰里的爱马仕”。做旧的扭曲外壳如何被捏坏的易拉罐,别有一种不落俗套的潇洒美,让人有耳目一新的感觉。

△空间香氛推荐法国品牌La Labo
音乐主要推荐的是爵士、钢琴和民谣,音乐已然成为很多人生命中不可缺少的生活元素,多样的音乐风格给主人多种听觉体验。

△音乐推荐-爵士,钢琴,民谣
设计师在此用她更为专业的珠宝领域小礼物来表达她的心意,名为“玫瑰的暗面”的对戒,愿这小小的连理枝守护男女主人的爱情,守护他们的小家。

最后的结语:当下的一切,就是最值得珍贵的礼物。常言道:活在当下,珍惜当下,珍爱身边一切不管或好或坏的一切,都会是宝贵的回忆。
以上就是 《软装主案设计师实战训练营》 Yuna同学的结业汇报作品,看完Yuna同学的软装方案汇报,是不是燃起了你对跨界软装信心呀~
其实设计本身就来源于生活,软装来源于你对生活的热爱,离我们并不遥远, 《软装主案设计师实战训练营》的学员能做到的,你也可以!!!
或许有些刚入门的小伙伴怕达不到以上方案汇报的程度,没关系的,我们也帮你准备好了 《软装助理设计师实战训练营》。软装助理设计师初阶班是针对0-2年的零基础,从其他行业转行转岗过来的同学以基础软件应用,设计流程,方案制作设计为主。