说在前面
2022年2月的时候,爸妈递了一本房产证,说这是他们的养老房。而在此之前,我连他们辗转看房都不知道,好一个surprise。为此,开始了异地装修之旅。
通过需求沟通和梳理分析之后,拟定了22页的PPT,包括功能分区、预算说明、材料工艺等,以便后续和相关方进行沟通及验收。
每周末都回来选材料,监工,期间经历过供应商老板卷款跑路、安装师傅工艺失误、萌新师傅一窍不通、漏水、墙裂、瓷砖空鼓、工人尺寸量错等一系列大大小小的坑,逐步建立了一个有200家余家名录的【供应商管理库】、一个50余人名录的【装修工人管理库】,10余份【知识文档】。
2023年2月总算装完了,3月份入伙后正式入住,希望他们住得开心呀。 装修就是一场修行,一步到位是很难做到的,我们也在入住的这段时间,慢慢发现问题,并去解决,也是很有意思的事情呢。
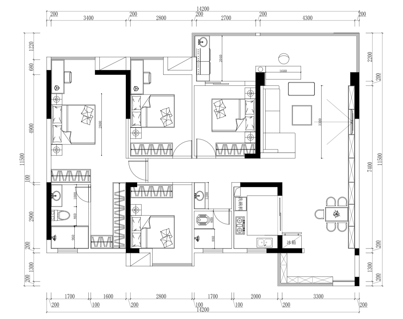
户型图

原始户型图可以看到阳台以一墙划分了A、B两个区域,客厅实用性面积不大。

设计师第一版平面图虽然打掉了原有两个阳台的非承重墙,但是却在中间做了门,而且客厅区域的电视柜和餐边柜都不在一个墙上,视觉上会觉得有点割裂。

经过多轮沟通,设计师最后一版平面图,将阳台全部打通,囊括进客厅,除了多功能房被我留白,没有做任何柜子家私之外,其他都会最终落地基本保持一致。

由于多功能房和阳台之间没有区隔,因此形成了一个洄游动线,视觉上会显宽敞。另外从卫生间洗完澡之后,可以直接从多功能房进入阳台晾晒,无需经过客厅,也保留了一定的隐私性。
玄关


这是大门外。由于长辈希望大门是彩钢和金灿灿,而当时在本地建材市场看大门的时候,大都是锌合金,所以奔赴广州工厂选门,最后这个颜色和款式,综合了长辈的需求和我的审美把关。打开大门往里看是一个次净衣区。

门内的功能区是鞋柜、洞洞板、镜子、挂衣架,分别放鞋、放包/雨伞/帽子、整衣冠、放常穿的外套。

半高鞋柜4平,底下镂空放常用鞋子。台上放绿植。当时参观同户型邻居家的时候,大都是做到顶鞋柜,我们家不想牺牲采光,所以只做了半高。

最喜欢玄关的洞洞板,收纳能力max,也符合我们家庭的行为习惯,在玄关处完成进出门的穿搭准备,有效提高整洁度。不然可以想象,包包、外套就会堆在鞋柜上或餐桌上。
餐厅

玄关进来之后,就是一个11.5米的长厅,餐边柜和电视柜一体,视觉上会更宽敞一些。

从客厅的角度看餐厅,餐边柜有一部分区域镂空,以便餐桌可以往里伸缩,让过道更宽敞,目前过道是1米左右。这也是吸取了参观邻居家的经验教训,一些邻居家在此处摆放了大圆桌,让过道变得比较窄,不仅视觉上空间变小,而且进出过道也不是这么宽敞。

入住之后,发现餐边柜没有设计好,高度50cm,深度50cm,导致大一点的电饭煲都放不上去。大家可以吸取我的教训,高度做到60-70cm+,深度做到60-70cm+,以便容纳更多大一点的小家电。 另外,由于我们家摆放了不少养生壶、热水器等,水蒸气都会往顶板和背板走,其实我蛮担心受潮的,所以贴了一些透明防潮垫。大家也可以吸取我的教训,在餐边柜中间区域将板材改成石英石或大理石,防止受潮。

因为光线还可以,所以酒柜灯带和餐边柜灯带都没有做。

从厨房门口的角度看餐厅,已经放得满满当当了。
厨房

厨房的门洞只有1.5米,当时做门的老板娘建议做两轨推拉门就好,但我考虑到厨房使用率这么高,过道宽敞点比较好,所以做了三轨推拉门。所以供应商只能给我们提建议,最后拍板还是我们自己。

进出过道从75cm提升到100cm,足足提升了25cm,多花了1000多,但是多了25cm,也还值得吧?

厨房门正对着餐厅,冰箱放在了外面,因为这个户型多厨房不大,只有5.8平方,又做了电器高柜,实在没有多余的空间放冰箱了。

洗碗机放这个位置,是因为水槽的下方位置不足以放洗碗机了,装修总是有遗憾的。

因为要装蒸烤箱、消毒柜,还有微波炉,所以做了一个电器高柜。这里犯了一个和餐边柜同样的错误,这个放电磁炉的地方,因为我们经常煲汤,水蒸气往上冲,顶板一摸都是水,非常担心受潮,买了防潮垫贴上,没有餐边柜这么稳,老掉。

这是水槽,可以看到我用了很多洞洞板,左边是为了遮挡燃气表,右边是为了遮挡热水器的管道,同时还可以收纳放一些工具,还是挺实用的。
客厅

2022年选砖的时候,很少素色砖,就算有也大都是灰色系的,为了选到暖色系的素色砖,花了2个多月的时间,现在看来,也是值得的。

客厅和阳台是1500*750的砖,其他区域是1200*600的砖,其实美缝选好,小砖也能有“大”的效果。

从沙发角度看满墙柜,电视柜区域为后续有机会换75寸电视留了位置。其实一开始,并不想太多开放格,但是左边区域本来是一个垭口,为了让满墙柜子视觉效果有更好地延伸,所以做了薄柜,刚好能放一些书,累计收纳空间22平。

酒柜的玻璃考虑到暖黄系和一定的隐私性,没有选老板推荐的透明色、黑灰色,而是茶色。茶色系的还有茶几、公卫浴室柜颜色,稍微点缀一下。
阳台

阳台全长10米,没有隔断,一边作为晾晒区和花卉区,一边做为休闲运动区。

从晾晒区的角度看休闲活动区,右边这棵树原本是水管。因为封窗包阳台了,所以裸露在此很奇怪,于是考虑到所处位置恰是花卉区,就自己买了麻绳和热熔胶,包了一天,快夸我哈哈!

从客厅的角度看晾晒区和花卉区,这个可移动的茶台很好用哟,因为不喜欢传统的大茶几,觉得特别占位置,所以购置了这种可移动茶台,颜色也是和家里风格比较搭配的奶茶色,搭配宜家小推车,也能增加有效收纳。


在休闲运动区做运动的时刻,一般会做瑜伽、转呼啦圈、跳绳等。
走廊过道


客餐厅、阳台、过道都做了平顶,房门选的是实木门,也是白色的,与柜子和墙体比较搭。门把手标配黑色,我自费更换成金色,和暖色系比较搭。不是专业设计师,所以只能从我有限的审美品味里,去减少出错的概率。
卫生间

这是公卫,做了干湿分离,方便多人的时候使用。

这款浴室柜的颜色也是奶茶色哦,搭配茶玻,还蛮喜欢的,嘻嘻。

湿区里面普普通通,拍照技术比较渣,大家勉强看看。开放商原有的窗户,除了大阳台的落地窗,为了控制预算,都没有更换,所以没法实现“奶油风”的效果哈哈哈。

为了利用好门后空间,家政工具都上墙挂在这里了,也充分发挥了“公共”二字哈哈。

这款收纳盒可以放生理用品,也可以放香薰,一举多得。

咨询了爸妈的意见,公卫设计了蹲卫,我另外增加了喷枪,方便冲洗。
主卧

这里是主卧,爸妈住的,不包括主卫,有24.2平,相对比较宽敞的。

因此衣帽间安排上了,这里都是放妈咪的衣服,总计10平。

靠近床这边的衣柜放爸比的衣服,累计5平。

全屋衣柜都是一致的外观配色,白色柜体+金色拉手,简单自然。

考虑到长辈身体不佳,床头柜我特定选了这种收纳空间超强的款式,可以放药和养生壶,而且配色和床、床品、瓷砖、柜子在一起,也比较协调。

床头另一侧放置了书桌,从旧家带过来的,颜色也还不会太出挑,所以也就睁一只眼闭一只眼了。本来打算重新购置书桌的,老人家不舍得老物件,也就顺他们意了吧。

主卫给长辈购置了智能马桶、安排了扶手,设计了淋浴房隔断。

但是,实际入住后,发现应该用推拉门,不应该用平移门,因为平移门太占位置了,打开来会碰到智能马桶边上,所以我还得粘防撞贴。

从淋浴房的角度看干区,给长辈也安排了智能毛巾架,但他们没习惯用,估计是还没到梅雨天气哈哈。

浴室柜的镜柜一直延伸到墙体上,一方面视觉上更敞亮,另一方面收纳空间更大。
男孩房




简单朴素的男孩房,5平的衣柜、亚克力床头柜、书桌(也是旧家搬过来的)。

妈咪在每个窗台都放了绿植,看起来就很开心,哈哈~
女孩房


女孩房也是一样朴素自然的设计,四个房间的窗帘都是一层纱帘、一层布帘,唯一不一样的是纱帘各有特色。男孩房是金刚纱、主卧是祥云纱、女孩房是米兰条流金纱,多功能房是珍珠纱。

书桌是宜家买的普通款,桌上用品也都是白色系,看起来比较明亮。
多功能房

这个是多功能房,窗帘比较长,垂感好看多了,明明和其他三个房间用的布帘一摸一样,但就是好看多了。目前留白放了一些物品,也会在这里运动。
问答
简单介绍一下自己吧!你最庆幸,这次装修做的哪个决定?
做了60平方的柜子,足够的收纳空间,使得家里可以保持一定的整洁度。尤其是满墙电视柜和餐边柜,视觉上会比较宽敞。
家里有哪些地方是你感到不满意,需要改进的? 餐边柜区域、厨房电器区域没有做石英石或大理石材质,导致我老是担心电器水蒸气会弥散四周,损坏板材,导致受潮霉变。
家里有哪些单品特别想推荐给大家? 电器!!蒸烤箱、洗碗机、消毒柜、抽油烟机、灶台、轨道插座、普通的开关插座都挺好的。
作为过来人,你有什么装修心得或教训想跟大家分享? 即便做了很多功课,也可能会踩坑,所以我们要放平心态,少踩坑就是赚了。 装修不是一步到位的作业,入住之后发现问题,在生活中去解决,也是很有意思的过程呢~期待入住一年后再来反馈哦~