
▲ 点击“火柴设计联盟”,关注设计互动平台 每天更新,喜欢的可以点赞关注转发哦!
滑到文章底部获取免费资料
《电影院设计》┆『上海阳光广场影城』效果图JPG┃设计施工图DWG+PDF┃52MB〖火柴设计联盟〗第 2259 期
▼ - 部分作品阅览 -
1.项目概况
新影联阳光影城由北京新影联公司投资上千万元打造而成,是亚运村多厅电影城。阳光影城位于朝阳区阳光广场北门,占地1300 m²,按照五星级影城标准设计建造。豪华的室内装潢,发烧级的观影环境,体贴入微的服务——处处彰显着时尚、现代的气息。



阳光影城由5个豪华放映厅组成,共计495个观众坐席。美国JBL高保真音箱,SRD、DTS数码环绕立体声系统,高亮度超大进口银幕,德国产放映镜头,内地先进的电影放映系统——在影城的每一个位置,观众都能充分感受到震撼的视听冲击力。


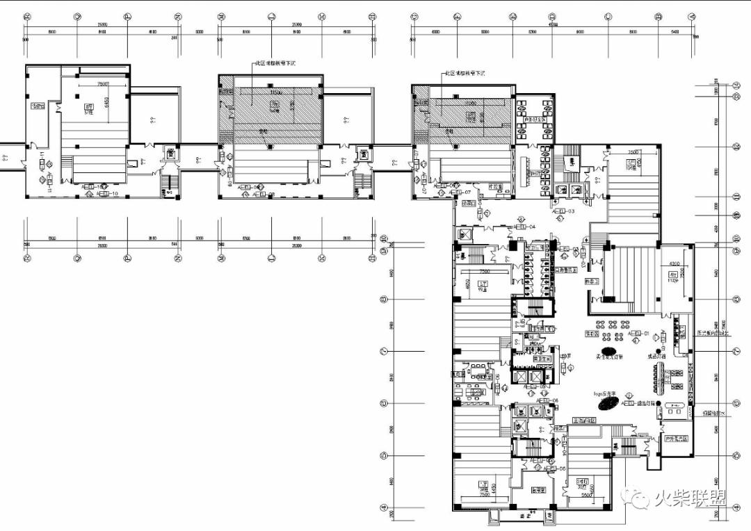
2.资料截图

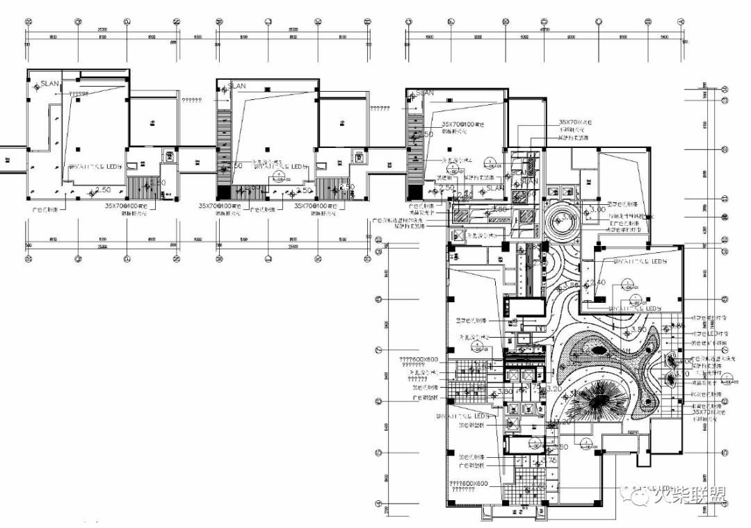
3.概念及效果图












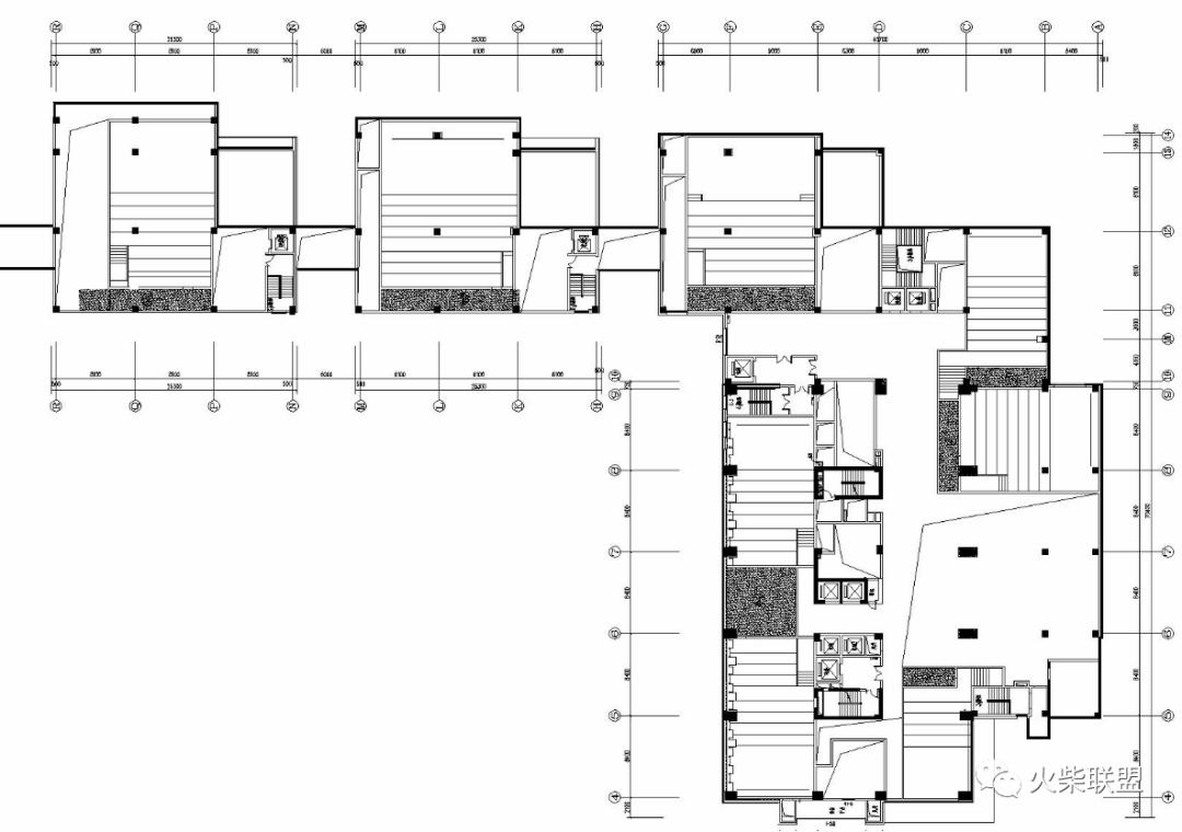
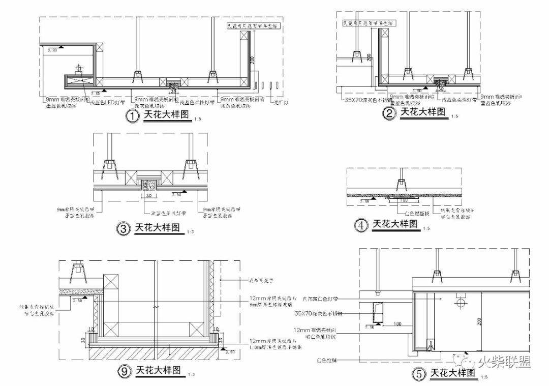
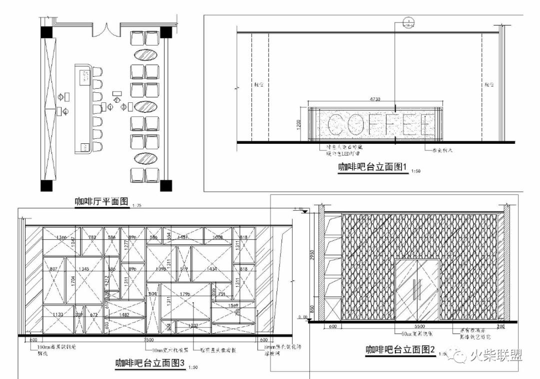
4.施工图样图


















【免费获取方式】
关注转发加评论后私信“2259” 即可获取此套完整版资料
免责声明:
以上图片及资料内容来源于网络,由我方整理,版权归原作者及其公司所有;
本资料仅供学习研究之用,不得用作于商业用途,若此图库侵犯到您的权益,请与我们联系删除;
本文章版权归本头条号所有,未经同意不得随意转载 ,若 恶意侵权将追究其法律责任