术语和定义:
1、空气净化:降低室内空气中的微生物、颗粒物等使其达到无害化的技术或方法。
2、洁净手术部(室):采取一定空气洁净技术,使空气菌落数和尘埃粒子数等指标达到相应洁净度等级标准的手术部(室)。
3、自然通风:利用建筑物内外空气的密度差引起的热压或风压,促使空气流动而进行的通风换气。
4、集中空调通风系统:为使房间或封闭空间空气温度、湿度、洁净度和气流速度等参数达到设定的要求,集中处理、输送、分配的所有设备、管道及附件、仪器仪表的总和。
5、空气净化消毒装置:去除集中空调通风系统送风中微生物、颗粒物和气态污染物的装置。
空气净化管理要求:
洁净手术部(室)和其他洁净场所(如洁净骨髓移植病房),新建与改建验收时、更换高效过滤器后、日常监测时,空气中的细菌菌落总数应符合GB50333的要求。

非洁净手术部(室)、非洁净骨髓移植病房、产房、导管室、新生儿室、器官移植病房、烧伤病房、重症监护病房、血液病病区空气中的细菌菌落总数≤4CFu /(15min·直径9cm平皿)。
儿科病房、母婴同室、妇产科检查室、人流室、治疗室、注射室、换药室、输血科、消毒供应中心、血液透析中心(室)、急诊室、化验室、各类普通病室、感染疾病科门诊及其病房空气中的细菌菌落总数≤4CFu/(5min·直径9cm平皿)。
空气净化方法:
通风:
1.自然通风:应根据季节、室外风力和气温,适时进行通风。
2机械通风:
工作原理:通过安装通风设备,利用风机、排风扇等运转产生的动力,使空气流动。
通风方式:
1.机械送风与自然排风适用于污染源分散及室内空气污染不严重的场所。机械送风口宜远离门窗。
2.自然送风与机械排风适用于室内空气污染较重的场所。室内排风口宜远离门,宜安置于门对侧墙面上。
3.机械送风与机械排风适用于卫生条件要求较高的场所。根据通风的需要设定换气次数或保持室内的正压或负压。
注意事项:
1)应充分考虑房间的功能要求、相邻房间的卫生条件和室内外的环境因素,选择通风方式及室内的正负压。
2)应定期对机械通风设备进行清洁.遇污染及时清洁与消毒。
空气洁净技术:
设计要求:洁净手术部(室)和其他洁净场所的设计应遵循GB50333的要求。
空气洁净技术维护与保养要求:
空气处理机组、新风机组应定期检查,保持清洁。
1、新风机组粗效滤网宜每2d清洁一次;粗效过滤器宜1月~2月更换一次;中效过滤器宜每周位查,3个月更换一次;亚高效过滤器宜每年更换。发现污染和堵塞及时更换。
2、末端高效过滤器宜每年检查一次,当阻力超过设计初阻力160Pa或已经使用3年以上时宜更换。
3、排风机组中的中效过滤器宜每年更换,发现污染和堵塞及时更换。
4、定期检查回风口过滤网,宜每周清洁一次,每年更换一次。如遇特殊污染,及时更换,并用消毒剂擦拭回风口内表面。
5、设专门维护管理人员,遵循设备的使用说明进行保养与维护;并制定运行手册,有检查和记录。
紫外线消毒:
1、适用范围:适用于无人状态下室内空气的消毒。
2、消毒方法:紫外线灯采取悬吊式或移动式直接照射。安装时紫外线灯(30w紫外线灯,在1.0m处的强度>70μW/cm2)应≥1.5W/m3,照射时间≥30min。
3、注意事项:
1)应保持紫外线灯表面清洁,每周用75%~80%(体积比)乙醇棉球擦拭一次。发现灯管表面有灰尘、油污时,应及时擦拭。
2)紫外线灯消毒室内空气时,房间内应保持清洁干燥,减少尘埃和水雾。温度<20℃或>40℃时,或相对湿度>60%时,应适当延长照射时间。
循环风紫外线空气消毒器:
1、适用范围:适用于有人状态下的室内空气消毒。
2、消毒原理:消毒器由高强度紫外线灯和过滤系统组成,可以有效杀灭进入消毒器窄气中的微生物,并有效地滤除空气中的尘埃粒子。
3、使用方法:应遵循卫生部消毒产品卫生许可批件批准的产品使用说明,在规定的空间内正确安装使用。
4、注意事项:
4.1消毒时应关闭门窗。
4.2进风口、出风口不应有物品覆盖或遮挡。
4.3用湿布清洁机器时,须先切断电源。
4.4消毒器的检修与维护应遵循产品的使用说明。
4.5消毒器应取得卫生部消毒产品卫生许可批件。
静电吸附式空气消毒器:
1、适用范围:适用于有人状态下室内空气的净化。
2、消毒原理:采用静电吸附和过滤材料,消除空气中的尘埃和微生物。
3、使用方法:应遵循卫生部消毒产品卫生许可批件批准的产品使用说明,在规定的空间内正确安装使用。
4、注意事项:
4.1消毒时应关闭门窗。
4.2进风口、出风口不应有物品覆盖或遮挡。
4.3消毒器的循环风量(m3/h)应大干房间体积的8倍以上。
4.4消毒器应取得卫生部消毒产品卫生许可批件。
4.5消毒器的检修与维护遵循产品的使用说明。
超低容量喷雾法:
1、适用范围:适用于无人状态下的室内空气消毒。
2、消毒原理:将消毒液雾化成20μm以下的微小粒子,在空气中均匀喷雾,使之与空气中微生物颗粒充分接触,以杀灭空气中的微生物。
3、消毒方法:采用3%过氧化氢、5000mg/L过氧乙酸、500mg/L二氧化氯等消毒液,按照20mL/m3~30mL/m3的用量加入到电动超低容量喷雾器中,接通电源,即可进行喷雾消毒。消毒前关好门窗,喷雾时按先上后下、先左后右、由里向外,先表面后空间,循序渐进的顺序依次均匀喷雾。作用时间:过氧化氢、二氧化氯为30min~60min,过氧乙酸为lh。消毒完毕,打开门窗彻底通风。
4、注意事项:
4.1喷雾时消毒人员应作好个人防护。佩戴防护手套、口罩,必要时戴防毒面罩,穿防护服。
4.2喷雾前应将室内易腐蚀的仪器设备,如监护仪、显示器等物品盖好。
薰蒸法:
1、适用范围:适用于无人状态下的室内空气消毒。
2、消毒原理:利用化学消毒剂具有的挥发性,在一定空间内通过加热或其他方法使其挥发达到空气消毒。
3、消毒方法:采用O.5%~1.O%(5000mg/L~10000mg/L)过氧乙酸水溶液(1g/m3)或二氧化氯(10mg/m3~20mg/m3),加热蒸发或加激活剂;或采用臭氧(20mg/m3)熏蒸消毒。消毒剂用量、消毒时间、操作方法和注意事项等应遵循产品的使用说明。消毒前应关闭门窗,消毒完毕,打开门窗彻底通风。
手术部(室)可选用下列方法净化空气:
a)安装空气净化消毒装置的集中空调通风系统;
b)空气洁净技术;
c)循环风紫外线空气消毒器或静电吸附式空气消毒器或其他获得卫生部消毒产品卫生许可批件的空气消毒器;
d)紫外线灯照射消毒;
e)能使消毒后空气中的细菌总数≤4CFU/(15min·直径9cm平皿)、获得卫生部消毒产品卫生许可批件的其他空气消毒产品。
产房、导管室、新生儿室、器官移植病房、烧伤病房、重症监护病房、血液病病区等可选用下列方法净化空气:
a)通风;
b)安装空气净化消毒装置的集中空凋通风系统;
c)空气洁净技术;
d)循环风紫外线空气消毒器或静电吸附式空气消毒器或其他获得卫生部消毒产品卫生许可批件的空气消毒器;
e)紫外线灯照射消毒;
f)能使消毒后空气中的细菌总数≤4CFU/(15min·直径9cm平皿)、获得卫生部消毒产品卫生许可批件的其他空气消毒产品。
儿科病房、母婴同室、妇产科检查室、人流室、注射室、治疗室、换药室、输血科、消毒供应中心、血液透析中心(室)、急诊室、化验室、各类普通病室、感染疾病科门诊及其病房等可选用下列方法净化空气:
a)通风;
b)集中空调通风系统;
c)循环风紫外线空气消毒器或静电吸附式空气消毒器或其他获得卫生部消毒产品卫生许可批件的空气消毒器;
d)紫外线灯照射消毒;
e)化学消毒;
f)能使消毒后空气中的细菌总数≤4CFU/(5min·直径9cm平皿)、获得卫生部消毒产品卫生许可批件的其他空气消毒产品。
不同情况下空气净化方法:
有人情况下可选用下列方法:
a)普通病房首选自然通风;自然通风不良,宜采取机械通风;
b)集中空调通风系统;
c)循环风紫外线空气消毒器或静电吸附式空气消毒器或其他获得卫生部消毒产品卫生许可批件的空气消毒器;
d)空气洁净技术;
e)获得卫生部消毒产品卫生许可批件、对人体健康无损害的其他空气消毒产品。
无人情况下可采用以下方法:
a)可选用上述的空气净化方法;
b)紫外线灯照射消毒;
c)化学消毒;
d)其他获得卫生部消毒产品卫生许可批件、适宜于超低容量喷雾消毒的消毒剂进行喷雾消毒,其使用方法、注意事项等遵循产品的使用说明。
呼吸道传染病患者所处场所可选用以下方法:
a)受客观条件限制的医院可采用通风,包括自然通风和机械通风,宜采用机械排风;
b)负压隔离病房;
c)安装空气净化消毒装置的集中空调通风系统;
d)使用获得卫生部消毒产品卫生许可批件的空气净化设备,其操作方法、注意事项等应遵循产品的使用说明。
普通患者出院或死亡后病室可选用以下方法:
a)通风;
h)紫外线灯照射消毒;
c)使用获得卫生部消毒产品卫生许可批件的空气净化设备。其操作方法、注意事项等应遵循产品的使用说明。
呼吸道传染病患者出院或死亡后病室可选用以下方法:
a)紫外线灯照射消毒;
b)化学消毒;
c)使用获得卫生部消毒产品卫生许可批件的空气净化设备,操作方法、注意事项等应遵循产品的使用说明。
空气净化效果的监测:
1.监测部门:医院应对感染高风险部门如手术部(室)、产房、导管室、层流洁净病房、骨髓移植病房、器官移植病房、重症监护病房、新生儿室、母婴同室、血液透析中心(室)、烧伤病房的空气净化与消毒质量进行监测。
2.监测频度:医院应对感染高风险部门每季度进行监测;洁净手术部(室)及其他洁净场所.新建与改建验收时以及更换高效过滤器后应进行监测;遇医院感染暴发怀疑与空气污染有关时随时进行监测,并进行相应致病微生物的检测。
监测方法及结果判定:
1.洁净手术部(室)及其他洁净场所,根据洁净房间总数,合理安排每次监测的房间数量,保证每个洁净房间能每年至少监测一次,其监测方法及结果的判定应符合GB50333的要求。
2.未采用洁净技术净化空气的部门,其监测方法及结果的判定应符合GB15982(医院消毒卫生标准)的要求。
医学实验室设计与建设:
医学实验室的设计与施工规范:
《实验室生物安全通用要求》 GB/T19489-2008
《生物安全实验室建筑技术规范》 GB/T50346-2011
《微生物实验室和生物医学实验室通用安全准则》 WS233-2017
《洁净厂房设计规范》 GB50073-2013
《洁净室施工及验收规范》 JGJ50591-2010
《民用建筑电气设计规范》 JGJ16-2016
《建筑电气工程施工质量验收规范》 GB50303-2015
《建筑给水排水设计规范》 GB50015-2003(09版)
《建筑给水排水及采暖工程施工质量验收规范》 GB50242-2016
《民用建筑供暖通风与空气调节设计规范》 GB50736-2012
《通风与空调工程施工质量验收规范》 GB50243-2016
《建筑装饰装修工程质量验收规范》 GB50210-2018
医学实验室的设计原则:
第一:选择专业设计施工单位。
第二:方案设计按照相关规范及《临床实验室管理办法》,根据本单位实际情况,可参照以下几点:
A:符合同级实验室的要求,功能分区科学;
B:根据实际房屋布局,实验流程合理,人流物流分开;
C:布局流程合理,符合特殊实验室规范;
D:充分考虑医院的发展前景,预留实验空间。
医学实验室的面积规划要求:
三级甲等医院>1500m2,其它三级医院>1000m2;
二级甲等医院>500m2,其它二级医院>300m2;
一级医院独立用房应达50m2以上。




生物安全实验室的主要环境参数:

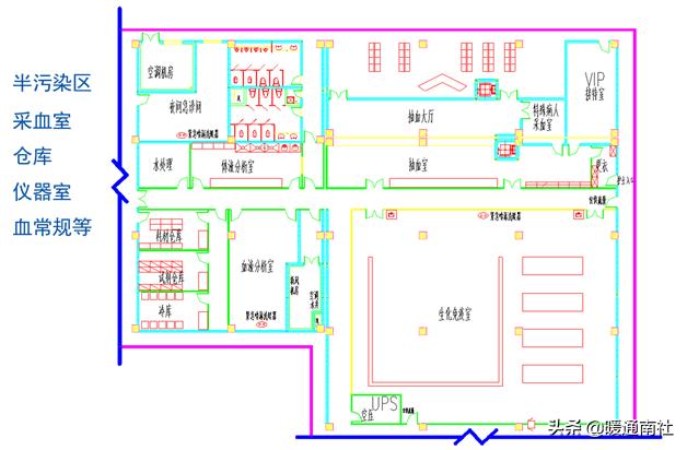
HIV实验室平面示意图:

HIV实验室洁净系统设计:

为了保证洁净实验室内空气中尘埃粒子的数量满足国家相关要求,送风通常采用三级过滤的形式(初效过滤、中效过滤、高效过滤),在实验室内部采用上送下侧回的形式以保证实验室洁净度的要求。
HIV实验室送回、风原理图:

实验室通风系统要求防腐性好、噪音低,运行经济可靠。
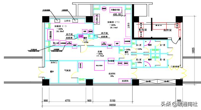
PCR实验室:

PCR实验室送、排风原理图:

室外,室外空气不流向室内。
P3实验室示意图:

医学实验室的施工:
当前主要使用的施工工艺及主材:
装修材料:地面通常为自流平涂料+PVC卷材粘贴,以达到实验室地面对平整、耐磨、防水、耐酸碱的要求,墙体通常采用洁净夹芯彩钢板,彩钢板与底板连接处、彩钢板阴阳角处接缝用圆弧铝连接并用金属密封胶密封,以满足洁净,密封要求。
通风设备及主材:通常采用玻璃钢风机+无机玻璃钢风管及 各种风阀(防火阀、止回阀、手动电动调节阀等),以满足实验室耐酸碱、耐腐蚀的要求。
电气设备及主材:吊顶内嵌*管双**净化荧光灯,满足实验室内照度要求;紫外杀菌灯,保证实验室内洁净环境。
弱电系统:门禁系统,保证实验室内部与外部的隔离;电话、网络系统,保证实验室内外部数据传输;各种传感器,测量室内的各项环境指标,通过系统软件,达到实验室自动化控制的目的。
给排水主材:给水通常采用PPR管,具有无毒卫生、保温节能、使用寿命长的特点;排水通常采用UPVC螺旋管,耐腐蚀,减少噪声。
医学实验台的一般要求:
台面应防水,耐腐蚀、耐高温。
实验室中的橱柜和实验台应牢固,橱柜、实验台彼此之间保持一定距离,以便于清洁。
一般选用C-Frame结构+实芯理化板。

医学实验家俱的主要种类:
实验台:
全钢结构实验台,钢制框架加钢制柜体组合而成,外形美观,承重性好。钢木结构实验台,钢制框架加木制柜体组合而成,外形美观,承重性好。

通风柜:
立体式全钢制独特设计,电动控制阀控制风量。

医学实验室的设备要求:
产品应符合NSF-49标准Class TypaB2要求;主箱体采用SUS304不锈钢,垂直单向流型,回流空气经高效过滤器过滤后100%排放;
主过滤器是采用进口滤纸制作的ULPA超高效过滤器,过滤效率对0.12~0.2μm微粒为99.999%,提供更大的安全保障;安全玻璃的移门上下开启灵活、平稳、任意定位,并可方便的将其关闭灭菌;采用紫外线灯进行物理灭菌。
医学实验室的安全设备:

本文来源于互联网,暖通南社整理编辑。