
酒店前台
个人是从事室内设计行业,因为朋友引荐,有缘接触到该项目,从构想到开业,整整4个月,项目顺利完工开业!
该酒店位于重庆欢乐谷华悦中心A座,业主方是第一次投资酒店行业,算是工作之余的一份细水长流的生意。(这也是我目前遥不可及的梦哇)找到我时,因为不了解设计行业,其实已经花了3000元找了装修公司设计了平面方案,但调整了6次平面方案,他们并没有满意的方案,当我看了那家设计方案时,整个平面也是平淡,没有考虑设备,功能这块,属于摆放家具的那种。3000大洋打水漂了。在现场实际考察沟通后,把我设计上的想法,和一些设计酒店的实际的案例说过后,基本上确定了设计,因为之前在南坪做过一家这样的酒店,所以在整体把控上有很多的优势 , 跟业主方分析了该项目地理位置,入住人群和项目总投资预算等综合考虑后,基本上确定整体的风格定位和房间分配。
成本 利润分析
1成本 租金 整层楼为26间独立的公寓楼形式,均为不同的业主购买,甲方通过物业,沟通到整层楼的二十多位业主,以50每平米的价格租过来开酒店,租期10年。(听说这二十位业主来来回回沟通了好多次,不容易啊)这对于业主来说,不用出几万的装修费,和房屋管理精力,每月清水纯收入1500,还是很有吸引力的,毕竟即使是自己装了,以目前的市场,单间公寓顶天也就这个价!!! 都是共赢的局面,何乐不为呢!
2成本 设计费 我的设计一直比较亲民,这类项目, 35一平米,整个设计费也就是3.5W,占到不到项目投资的 百分之3,通过设计优化,整体把控,给业主方创造的价值远远大于这指出比例。
3成本装修 基础装修 (人工 辅材)500一平 大概 45万 ,主材(砖 地板 洁具门 等)费用和基础装修差不多,一共45万,设备设施(热水系统,消防改造 智能门锁 办公电脑 电视等)差不多40万, 还有就是开办费(大致就是广告招牌 员工工资 卫生 物管协调杂费差不多15万 这样整体算下来 共计160w 。
利润分析 大致定价200一间客房 25间客房 一天是5000 ,理论上一个月是15万, 实际每个月按照入住率百分之50-60计算,差不多是七八万,一年是90万 ,理论2年 回本,考虑到刚开始运营入住率不高情况,预计在2-3年回本,之后的7年时间,基本就是坐在前台等收钱了,真好!!
整体设计方案

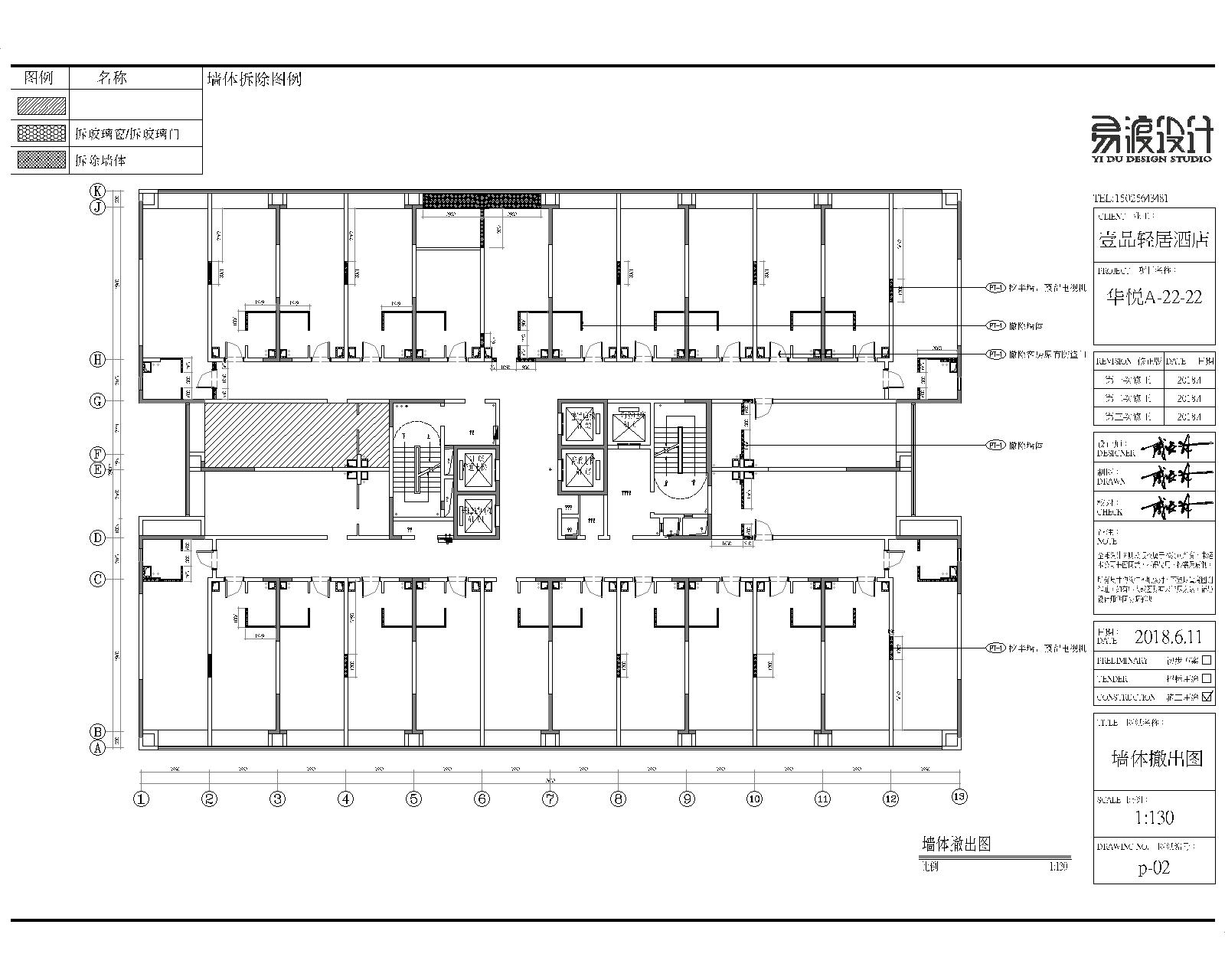
原始结构

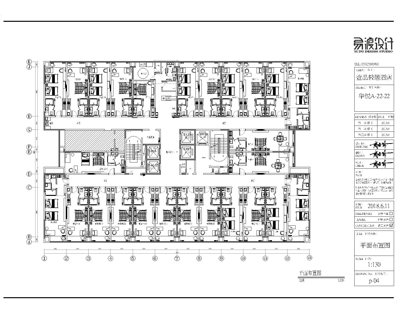
平面设计方案

酒店前台设计

完工实景照

客房单间设计方案

单间完工实景

标间完工实景

单间设计效果图

单间完工实景

酒店窗外的欢乐谷摩天轮
整个项目设计到完工都是比较顺利的,开业后的用户体验评价也是相对比较满意的,

携程用户评价

用户评价

用户评价
最后 附上一张今天的订房情况,因为暑假的原因,来欢乐谷耍的人多,基本满房!
