室内设计概念方案设计 (室内设计概念方案演讲)

室内设计概念方案资料怎么写,室内设计概念方案ppt免费模板

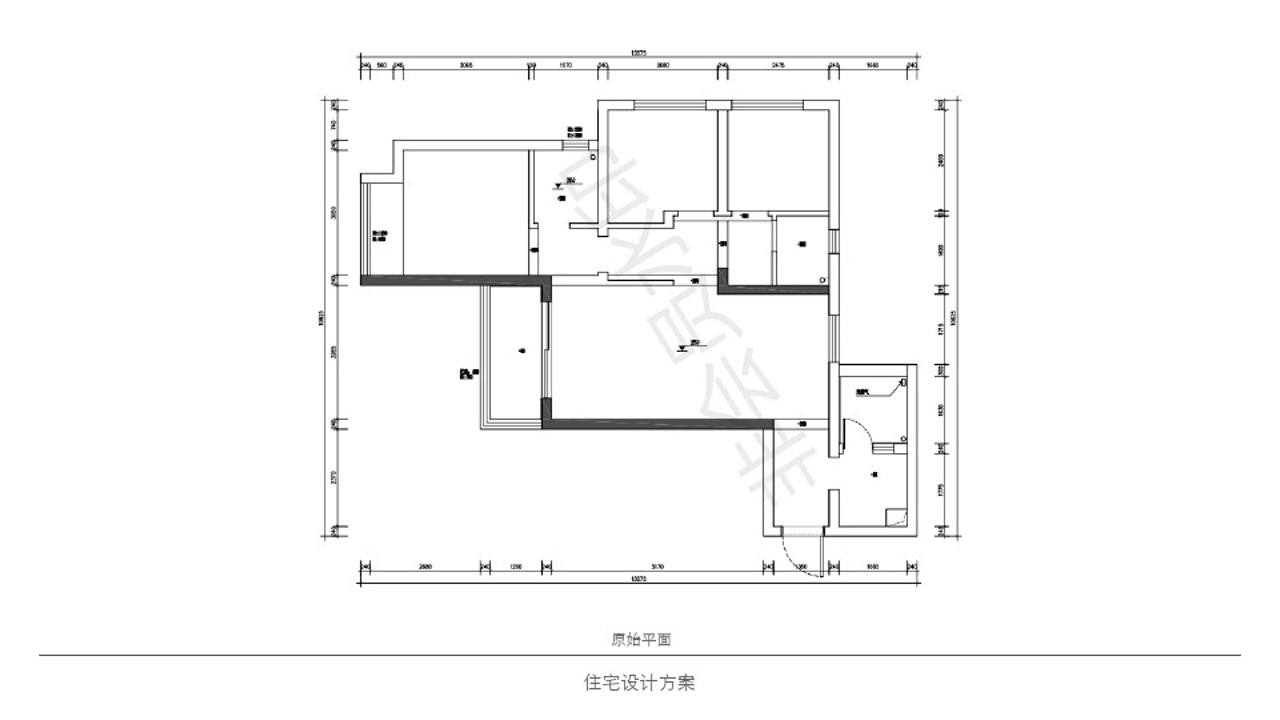
本文为室内设计概念方案,住宅设计方案,风格为北欧·自然。一起看看吧。文末有福利哦~

室内设计概念方案资料怎么写,室内设计概念方案ppt免费模板

室内设计概念方案资料怎么写,室内设计概念方案ppt免费模板

室内设计概念方案资料怎么写,室内设计概念方案ppt免费模板

室内设计概念方案资料怎么写,室内设计概念方案ppt免费模板

室内设计概念方案资料怎么写,室内设计概念方案ppt免费模板

室内设计概念方案资料怎么写,室内设计概念方案ppt免费模板

室内设计概念方案资料怎么写,室内设计概念方案ppt免费模板

室内设计概念方案资料怎么写,室内设计概念方案ppt免费模板

室内设计概念方案资料怎么写,室内设计概念方案ppt免费模板

需要全套室内设计资料以及室内设计软件安装包大全的同学请私信小编回复“资料”自动领取哦~