项目名称:科威特四季酒店Dai Forni餐厅客户:M.H Al-Shaya Co.地点:科威特,科威特市面积:500平方米室内设计:Kokaistudios主创设计师:Filippo Gabbiani, Andrea Destefanis设计团队:Sherry G, Kasia Gorecka, Mirei Lim, Ada Sun, Shannon Guo摄影师:Seth Powers
Kokaistudios非常荣幸地宣布与四季酒店集团合作的最新项目:Dai Forni高级意大利美食餐厅隆重开幕!餐厅坐落在全新修建的科威特四季酒店顶层,堪称布尔吉阿尔萨亚大楼的一颗璀璨之星。 Kokaistudios与四季酒店集团在此前已经有过合作,负责打造了京都四季酒店全日餐厅。这一次,四季酒店团队邀请 Kokaistudios 构思出一个高雅的餐饮空间,将意式的清新气息和美妙味觉带到科威特。
▼餐厅概览

设计流程的起点是搜寻整个意大利,从而在其深厚的美食传统中选择具体的地理位置和美食风格。很快我们锁定了地中海地区尤其是西西里岛的口感、风味和食材;西西里一直是中东和欧洲文化汇聚之地。Dai Forni将呈现一种新兴的区域性美食文化趋势,而非国家美食;餐厅的设计和菜品就是这一趋势最好的证明。
▼入口公共区域

餐厅的入口处迎面一道宽大的绿色植物墙,采用多种当地的沙漠植物拼插种植,别具一格,精心营造出一处令人备感惬意绿洲空间;一道砂岩地板铺就的走廊延伸至主餐区,以火为主题的廊柱比邻而立,与以水为主题的Sintoho餐厅形成对比;主餐区的中央设有意大利手工锻制的玫瑰铜色餐台,华而不妖。
▼绿色植物墙与焰火柱比邻而立

▼手工锻制的玫瑰铜色餐台

▼从用餐区望向入口走廊的焰火柱

入口长廊的左侧是前用餐区,挑高12米的天花令空间更显开阔大气,整座城市和远方波斯湾的壮美风光尽收眼底。我们在窗前安装了独家定制的金属网帘,在漫射灯光系统的照耀下,闪耀着柔和的光彩。由于白天日照强烈、气温极高,我们创造了一种复杂的激光窗帘系统,将热量隔绝在外,保持室内凉爽。
▼用餐区12米的挑高带来城市和波斯湾的壮观美景

入口走廊的右边的显眼位置是三个巨大的在澳大利亚定制的铜制火炉。 作为燃料的木材选自匈牙利, 炉内现烤的披萨和面包带有一股独特的清香。我们还专门设计了三个半圆席座,席座背面采用西西里岛熔岩墙装饰,以供宾客近距离参观厨师的工作场景。
▼铜制烧木火炉

半圆席座和定制设计的枝形吊灯的灵感均来源于传统的西西里岛编织篮,我们还将这一想法扩展至两个内部相连的私人用餐室,私人用餐室的墙面由粗绳编织而成,与雕刻复杂图案的可丽耐大理石门和日光屏形成鲜明的对比。雕刻图案的灵感来自当地的窗花图案,事实上这也是西西里岛传统的花边纹样。
▼主用餐空间

▼半圆席座的灵感源于传统的西西里岛编织篮

▼私人用餐室

▼粗绳墙面与雕刻精致的可丽耐大理石门形成鲜明对比

餐厅的设计聚焦于火,而卫生间则可以提神放松,墙面采用手绘蓝白意大利瓷砖,还安装了瀑布视频装置,该装置由上海Flatmind视频设计公司设计。
▼洗手间

餐厅与毗邻的亚洲Sintoho餐厅共用户外用餐区;该用餐区同样由Kokaistudios操刀设计;为了延续绿洲这一理念,我们定制设计了一个巨大的水晶雕塑充当中央水景,为这一餐区画龙点睛。
▼带有中央水景雕塑的户外用餐区

通过与意大利及澳大利亚等全球著名的工匠合作、结合精妙的设计方法、以及专注于多重感官的吸引力,我们创造的项目既植根于中东文化,同时又真实展现了地中海和西西里岛的饮食文化。在此项目中,Kokaistudios 进一步将强烈的建筑手法带入到室内设计中,并创新地运用材料和灯光营造人与空间之间柔和中有惊喜的微妙感觉。各类手工打造的细节以最精细的状态呈现出来,与空间的昼夜光景水乳交融,让空间整体呈现出强大的表现力。
▼绿墙细部

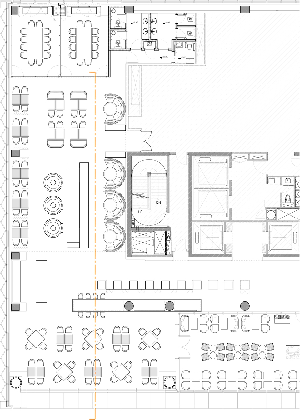
▼平面图

▼剖面图
