黄浦城央,历来新房供应就不算多。
这两年的复兴珑御、翠湖天地、绿地海珀外滩、绿城外滩兰庭……出一盘火一盘!
说实话,黄浦的地都是从“旧改”里腾出来的,稍微一加盘点,未来竟然还有诸多新房供应。
最新消息!
黄浦区人民广场
苏州河新地标
「海玥黄浦源」预计9月份入市
产品为约92-662㎡超高层住宅&联排、双拼、独栋别墅
预计首推380套房源
售楼处已开放

新昌城地处黄浦静安交汇处,南临人民广场,北临苏州河,地理位置得天厚。地铁1号线新闸路站、13号线自然博物馆站、黄河路美食街、南京东路步行街、游艇码头、雕塑公园等都近在咫尺,是上海建工倾力打造的市中心品质小区。
新昌城由1、6、7号三个地块组成,分两期开发,项目一期(6号地块)就是大家所熟知的上海滩新昌城。

新昌城地块示意图

上海滩新昌城实景图
海玥黄浦源包括1号、7号两个地块,超高层+低密别墅的产品组合,将重塑板块天际线,成为区域内的新地标。

效果图

效果图
1号地块:
1号地块位于6号地块(上海滩新昌城)以北,东至新桥路,南至新闸路,西至成都北路,北至南苏州路及九子公园,是项目距离苏州河最近的地块。
总用地面积:26438㎡;总建筑面积:201656㎡
其中地上建筑面积:146743.8㎡,地下建筑面积:54912.2㎡。
四幢住宅:
· 1#49层,165米;
· 2#44层,142.8米;
· 3#45层,145.65米;
· 4#16层,53.70米。

1号地块将建4栋16-50层的高层产品,其中1#楼建筑高度达165米(浦西顶豪海泰北外滩约160米,华侨城苏河湾双子塔约150米,陆家嘴汤臣一品约153米)。



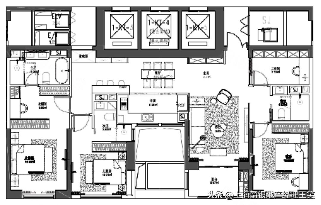
1号地块主力户型为建面约93-577㎡高层,户型图爆料如下((户型图为过程稿,仅供参考,最终以开发商发布为准)):
▼ 建面约93㎡1房

▼ 建面约186㎡3房

▼ 建面约193㎡3房

▼ 建面约215㎡3房

▼ 建面约233㎡3房

▼ 建面约275㎡4房

▼ 建面约278㎡4房

▼ 建面约389㎡5房

▼ 建面约396㎡4房

▼建面约577㎡6房

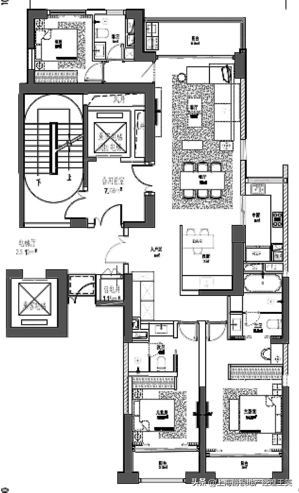
7号地块:
7号地块位于6号地块(上海滩新昌城)以南,东至新昌路,南至北京西路,西至成都北路,北至山海关路,距离人民广场直线距离仅约500米。

总用地面积:46089㎡;总建筑面积:178560㎡
其中地上建筑面积:60275㎡,地下建筑面积:118285㎡。

和1号地块相比,7号地块的容积率只有约1.3,限高12米。地上规划大多为2-3层。
地下空间建设层数不大于三层,地下一层建设范围不大于4.35万平方米。
未来的主力产品为建面约238-650㎡联排、双拼和独栋别墅。


而且7号地块有非常多的优秀历史建筑,比如浦行别墅、陇西里、新余里、裕洪里、承德坊、道达里等,人文底蕴深厚。

最新爆料效果图:








7号地块效果图
周边配套
交通方面,项目紧邻地铁1号线、13号线及南北高架,公共出行或自驾都十分便捷。

实景图
商业方面,项目周边有人民广场、南京东路、南京西路等高端集中商圈。

实景图
教育方面,项目周边有上海市黄浦区曹光彪小学、上海市格致初级中学等知名院校。

实景图
医疗方面,周边有上海市长征医院、上海市静安区北站医院、上海市静安区中心医院等。

实景图
免责声明:本宣传资料为要约邀请,其内容经常发生更新,并不构成要约。买卖双方的权利义务以双方签订的《商品房买卖合同》及附件等协议为准。同时本公司对宣传资料享有修改的权利,敬请留意最新资料。本宣传资料部分素材源于网络,其著作权归原作者所有;如果原作者表明其身份并要求本公司停止使用该素材的,请及时与本公司联系。
【个人介绍】
2009年-2014年 中原地产 客户经理
2014年-2017年 链家地产 三星经理
2017年-至今 爵银地产 店长

王笑 爵银地产店长
本人从事房产工作12年有余,具有丰富的房产知识和实践经验,希望我的专业可以在您买房的道路上帮助到您,欢迎关注本人公众号:wangxiao 170921 有任何房产问题咨询或房源推荐 尽请电话联系:13122839333(微信同步)
因为专业 所以信任
承诺:一手房免佣金
##买房 #学区房 #租房 # 地铁 #二手房
#浦东租房##北蔡二手房##北蔡二手房##北蔡房产##大华锦绣华城#
优质房源好房推荐 #凯利海华府 #陆家嘴锦绣前城 #仁恒公园世纪 #新房 #新房推荐 #大华斐勒公园 #宝华海尚郡领 #乾景雅园 #仁恒公园世纪 #古北御庭 #花木绿城 #锦绣兰庭